Какие бывают стандартные размеры санузлов и минимальные согласно снип
Размер, как ни крути, имеет значение… особенно если речь зашла о том, какими должны быть размеры санузла. В законодательстве всех стран существуют четкие стандарты, регламентирующие площадь ванной и туалета.
В этой статье мы расскажем какие существуют стандартные размеры санузла, обсудим минимальные возможные габариты, и подскажем, как правильно определиться с площадью санитарного помещения в будущем доме.
Размеры – СНиП и DIN
Действующий технический регламент, отраженный в СНиП и DIN 18022, четко определяет размеры санузла для жилых помещений:
- минимальная высота пол/потолок – 2500 мм;
- глубина – не менее 1200 мм;
- в мансарде расстояние от унитаза до ската крыши – 1050 мм;
- минимальная ширина санузла – 800 мм.
- перед ванной и душем должно быть не менее 700 мм, перед унитазом 600 мм свободного пространства;
- биде устанавливается на 250 мм от унитаза, если иное не предусмотрено моделью;
- по бокам от сантехнической точки должно оставаться 250 мм свободного места.

Памятка о стандартах размещения сантехники
Типовые санузлы в жилых домах
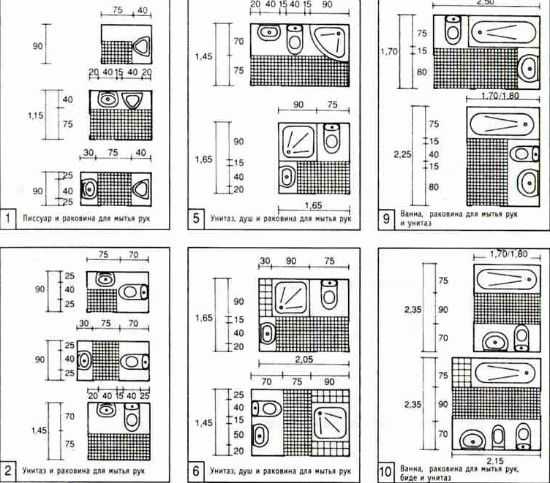
Стандартные размеры туалетов в типовых многоквартирных домах 1200*800 мм, 1500*800 мм, и улучшенной планировки — 100*1500 мм, в который вмещается раковина или узкая стиральная машина.

Минимальные размеры санузла, разрешенные при строительстве типовых многоквартирных жилых домов
Что касается ванной комнаты, то ее средний размер 1650-2000*1200-2500 м. Совмещенное помещение в хрущевке 3,3 – 3,8 м2.

Стандартные размеры с эргономичной планировкой (лист 1)
В новостройках эконом класса уборные уже делают несколько больше – от 4 кв.м, а в улучшенных сериях домов встречаются комнаты и 5-6 кв. м. В элитных квартирах площадь редко бывает меньше 7 кв.м. Оптимальные размеры санузла в частном доме от 9 кв.м, здесь уже можно организовать полноценный оазис релакса.

Стандартные помещения с эргономичной планировкой (лист 2)
Минимальный санузел
Самые маленькие уборные размером в 1,8-2,0 м.кв. встречаются в малогабаритных квартирах. Но даже такие площади можно оформить с должным комфортом.

На фото малогабаритный санузел 1800*1200 мм с душевой кабиной (до и после ремонта)
Конечно, придется отказаться от ванны в пользу дешевой кабины или панели, но при правильной расстановке сантехники можно поместить даже узкую стиральную машину.

Узкий мини санузел, размеры 1700*1200 м, единый материал для пола и стен оптически раздвигает границы помещения
В совмещенном помещении маленькой площади 2,2 м.кв. уже можно разместить небольшую ванну криволинейной формы. Душевая кабина хороша, когда в доме проживают молодые люди, а вот для детей и людей пожилого возраста ванна просто необходима.

Фото совместного малогабаритного санузла
Как выбрать размер
Когда появляется возможность самостоятельно задать размеры санузла без каких-либо ограничений по площади, многие люди, набившие шишки в узких и тесных типовых помещениях, начинают мечтать о большом пространстве, где не придется экономить каждый сантиметр. Сразу оговоримся: огромный санузел – это сплошное расточительство, поэтому здесь необходимо искать золотую середину.
Если следовать законам эргономики, то для душевой кабины требуется площадь 1,7-2,5 м.кв., для комфортной ванны 2,7- 3,5 кв.м, для туалета 1,2-1,8 м.кв. для раковины около 1 м. Таким образом, оптимальная площадь уборной для семьи из 4-6 человек 7-9 м.кв. Лучше, если это будет прямоугольное помещение: ширина санузла — 2,5 м, а длина — 3,5 м.
Для грамотной планировки санузла полезно знать:
- высота стандартной ванны с ножками — 640 мм, без — 480-510 мм, размеры ванн 750-800×1600 мм, 750-800×1700 мм, угловые модели — 1500×1500 мм и 1600×1600 мм;
- душевые кабины — 800×800, 900×900 и 1000×1000 мм, для маленьких помещений рекомендуется выбрать душевую панель с поддоном;
- полотенцесушитель, чтобы до него было легко дотянуться, должен быть на 500-700 мм удален от ванны или душа;
- в зависимости от модели размеры унитазов могут отличаться — 440×650, 400х600, 360×650;
- биде — 370х540 и 400×600 мм;
- минимальный размер умывальника около 400 мм в ширину.

Комфортный санузел в частном доме площадью 7 м.кв.
Важно знать
Размеры уборных для людей с ограниченными возможностями рассчитываются исходя из габаритов инвалидной коляски. Так, минимальный размер ванной должен быть не менее 2,3 кв. м, туалет с умывальником от 1,6 м.кв., без умывальника допускается 1,2 м.кв., для инвалидов колясочников ширина санузла – 1650 мм, глубина – 1800 мм.
setroom.ru
Стандартные и минимальные габариты санузла, выбор оптимального размера
При покупке нового жилья на размеры санузла мало кто обращает внимание. А ведь это помещение — одно из самых часто используемых в квартире/доме. Поэтому очень важно, чтобы санузел был достаточной площади для того, чтобы в нем можно было поместить необходимые сантехнические приборы, бытовую технику, хотя бы минимум мебели, и при этом пользоваться им было комфортно.
В данной статье мы рассмотрим нормы, по которым сооружают ванные комнаты, их минимальные и типовые размеры.
Как правильно выбрать размер будущего санузла, оптимальные размеры
Чтобы ванная комната была функциональной и удобной в использовании для каждого члена семьи, следует знать оптимальные размеры санузлов в жилых домах:
- ширина помещения — минимум 80 см;
- высота — около 250 см;
- глубина — минимум 120 см.
Сняв размеры санузла совмещенного, можно рационально использовать его площадь при расстановке сантехники. К унитазу следует обеспечить подход не менее 60 см и по 25 см слева и справа от него. Для доступа к раковине оставляют 70 см, комфортная высота ее расположения — 80-90 см. Свободный подход к ванной или душевой кабине составляет 70-120 см.

Правила монтажа сантехники
Размеры санузла в частном доме, как правило, не настолько ограничены как в городской квартире, поэтому позволяют поместить любую сантехнику. А вот для малогабаритных ванных комнат во многоэтажных домах лучше выбирать компактные модели.
Типовые размеры санузлов
Рассмотрим варианты планировки помещений при стандартных размерах санузла.
Маленькие помещения 2х2 м, как и 1,5х2 м — минимальная площадь, которая необходима человеку. Если ванная комната и туалет раздельные, имеет смыл объединить их и расширить полезное пространство.
На заметку: такой тип перепланировки, не предусматривающий перенос труб, согласовывается по упрощенной схеме.
Примеры планировки мини-санузлов площадью 2 кв. метра и 3 м2
Ванная комната площадью от 4 кв. м. до 6 кв. м. уже имеет достаточно места для комплектации стиральной машиной, небольшим шкафчиком для вещей. В зависимости от расположения двери, сантехнику можно расставить либо по периметру комнаты, либо по противоположным сторонам.

Планировка санузлов средних размеров в панельном доме
В помещении площадью 7 кв. м. поместиться необходимая сантехническая и бытовая техника. Если в квартире проживает много людей, можно установить две раковины, или второй резервуар для купания.
Совет: большую ванную целесообразно разделить на функциональные зоны.
Варианты планировки санузла 7 кв. м.
Если ванная комната узкая и длинная, то резервуар для купания устанавливается в самой глубине помещения. Унитаз, раковину и биде лучше установить вдоль стен в той последовательности, в которой они наиболее часто используются.
Способы планировки узкой ванной комнаты
Минимальные размеры санузлов
Ванные комнаты и туалеты в квартирах разной площади и домах разных типов отличаются площадью и конфигурацией. Определяет минимальные размеры санузла СНиП (полное название «Санитарные нормы и правила») для жилых помещений.
Минимальные размеры раздельного туалета, укомплектованного унитазом и раковиной, зависят от способа открывания двери в помещении. Размер дверного проема ванной и туалета — 75х210 см, ширина двери составляет 60-70 см.
Если дверь открывается наружу, то для удобного пользования будет достаточно пространства 0,9х1,15 м. Если дверь открывает внутрь помещения, забирая часть его площади, то минимальные габариты туалета — 0,9х1,45 м.

Минимальные размеры туалета
Малогабаритный санузел в хрущевке может быть оснащен умывальником, душевым поддоном и унитазом. Минимальные размеры такого совмещенного помещения — 1,65х2 м, либо 1,45х2,2 м. Если туалет расположен отдельно, размеры ванной комнаты могут составлять 1,35х1,65 м.
Минимальные размеры совместного санузла с душевой кабиной
Если гигиеническое помещение укомплектовано резервуаром-ванной, минимальная ширина санузла, в зависимости от расположения сантехники, уже составит 2,1х2,1 м, либо 2,35х1,7 м (2,35х2,5 м).

Минимальные габариты санузла с резервуаром-ванной
Важно: при строительстве новых зданий обязательно берутся за основу минимальные размеры санузла, регламентированные СНиП.Итог
Габариты ванной комнаты имеют большое значение, особенно если в доме/квартире проживает большая семья. Зная минимальные размеры санузла и способы организации пространства, можно даже маленький санузел сделать комфортным.
remonttool.ru
Размеры туалета с раковиной — Все о канализации
Как правильно подобрать площадь санузла согласно снип
Хоть санузел и не жилая комната, но его габариты играют немалое значение. Чем больше площадь, тем больше у вас возможностей для удобной расстановки сантехники и мебели. Однако в некоторых случаях площадь квартиры или дома не позволяет тратить лишние метры, и мы пытаемся выиграть их за счет размера санузла. Но есть же еще и нормативы СНиП, диктующие минимальный метраж уборных и ванн.
В этой статье мы поговорим об таких нормативах, а также о том, как выбрать оптимальную площадь.
Как определяется размер
При выборе параметров мы должны отталкиваться от нормативов по снип, в которых регламентирована минимальная площадь и стандартные размеры санузла. Также следует учитывать комфортное расстояние между сантехникой. Все необходимые цифры приведены ниже.
Минимальные размеры санузла
Строго говоря, для общих случаев законодательно утверждено положение только для уборных: минимальная ширина санузла 80 см, а высота 120 см. Высота потолка внутри должна быть от 250 см, а в коридоре перед уборной 210 см. Для мансардных квартир существует дополнительное правило: расстояние от плоскости крыши до унитаза должно быть не менее 105 см.
И отдельно существуют минимальные габариты санузла для квартир и домов, где проживают инвалиды. Ванная или совмещенный санузел должны быть площадью от 2,2х2,2 м, а уборная от 1,6х2,2 м. Также необходимо сказать, что нормы СНиП обязательны к соблюдению в многоквартирных домах, а в индивидуальной застройке можно попытаться правила обойти.

Размеры санузла, совмещенного. Правильное расстояние от унитаза до скоса крыши мансарды
Типовые параметры уборных и ванных комнат
Также, согласно нормативам СНиП, существуют следующие типовые размеры санузлов в панельном доме и в хрущевке :
- Уборная с унитазом и умывальником – 1х1,5 м 2 .
- Ванная с умывальником – 1,5х2 м 2 .
- Совместный санузел – 1,98х1,73 м 2 , 2,5х1,5 м 2 .
- С душевой кабиной вместо ванной – 1,4х1,6 м 2 .
Эти параметры даны для типовых многоквартирных домов, а размер санузла в частном доме вы можете округлить в большую сторону: 4 кв м вместо 3,8 кв м, 3 м 2 вместо 2,24 и т.д.
Обратите внимание: нарушение типовых габаритов в большую сторону никак не ограничивается. То есть вы спокойно можете делать большой санузел площадью 6 кв м, 7 кв м, 8 кв м и т. д. Нужно только помнить о правильном расстоянии сантехники от коммуникаций.

Размеры санузла, СНиП. В частных домах от них можно отклоняться
Подбор оптимальных габаритов
Как упомянуто выше, если вы обустраиваете уборную или ванную комнату в частном доме, то не так сильно привязаны к нормативам, как владельцы квартир. Однако при выборе размера санузла в жилых домах все-таки стоит учитывать некоторые нюансы. Их соблюдение сделает использование помещения комфортным. Рекомендованные расстояния между сантехникой:
- От ванны или душа до другой сантехники должно оставаться не менее 70 см.
- Если умывальников два, то на расстояние между сливами закладывается от 65 см. Перед умывальником – от 70 см, между ним и примыкающей стеной – 20 см.
- Свободное место перед унитазом – от 60 см, в стороны до другой сантехники или стен – от 40 см.
- Ширина двери – от 55 см
Обратите внимание: определяясь с размером помещения, предварительные расчеты размеров делаем с учетом данных, приведенных в списке. Так мы получим минимальный размер уборной. А далее, если будет на то возможность и желание, вы можете увеличить размер помещения на столько, насколько понадобится.

Ширина санузла должна рассчитываться исходя из расстояния между сантехникой
Оптимальный размер санузла, какой он? Расчет максимальной площади санузла в панельном доме и частном, а также хрущевке, обзор типовых габаритов согласно снип
Какая допустима минимальная площадь санузла и максимальная согласно снип? Есть ли отличия в размерах санузлов для частных домов и жилых? Обзор типовых размеров, а также малогабаритных санузлов
Источник: freshremont.com
Какие бывают стандартные размеры санузлов и минимальные согласно снип
Размер, как ни крути, имеет значение… особенно если речь зашла о том, какими должны быть размеры санузла. В законодательстве всех стран существуют четкие стандарты, регламентирующие площадь ванной и туалета.
В этой статье мы расскажем какие существуют стандартные размеры санузла, обсудим минимальные возможные габариты, и подскажем, как правильно определиться с площадью санитарного помещения в будущем доме.
Размеры – СНиП и DIN
Действующий технический регламент, отраженный в СНиП и DIN 18022, четко определяет размеры санузла для жилых помещений:
- минимальная высота пол/потолок – 2500 мм;
- глубина – не менее 1200 мм;
- в мансарде расстояние от унитаза до ската крыши – 1050 мм;
- минимальная ширина санузла – 800 мм.
Важно: Двери должны открываться исключительно наружу, а выход только в прихожую и коридор, в жилые комнаты и на кухню выход из ванной и туалета запрещен. Высота потолков в коридоре при выходе не должна быть менее 2100 мм.
СНиП так же регулирует стандартные размеры санузла, совмещенного туалета с ванной, и установку сантехники в нем:
- перед ванной и душем должно быть не менее 700 мм, перед унитазом 600 мм свободного пространства;
- биде устанавливается на 250 мм от унитаза, если иное не предусмотрено моделью;
- по бокам от сантехнической точки должно оставаться 250 мм свободного места.

Памятка о стандартах размещения сантехники
Типовые санузлы в жилых домах
Стандартные размеры туалетов в типовых многоквартирных домах 1200*800 мм, 1500*800 мм, и улучшенной планировки — 100*1500 мм, в который вмещается раковина или узкая стиральная машина.

Минимальные размеры санузла, разрешенные при строительстве типовых многоквартирных жилых домов
Что касается ванной комнаты, то ее средний размер 1650-2000*1200-2500 м. Совмещенное помещение в хрущевке 3,3 – 3,8 м 2 .

Стандартные размеры с эргономичной планировкой (лист 1)
В новостройках эконом класса уборные уже делают несколько больше – от 4 кв.м, а в улучшенных сериях домов встречаются комнаты и 5-6 кв. м. В элитных квартирах площадь редко бывает меньше 7 кв.м. Оптимальные размеры санузла в частном доме от 9 кв.м, здесь уже можно организовать полноценный оазис релакса.

Стандартные помещения с эргономичной планировкой (лист 2)
Минимальный санузел
Самые маленькие уборные размером в 1,8-2,0 м.кв. встречаются в малогабаритных квартирах. Но даже такие площади можно оформить с должным комфортом.

На фото малогабаритный санузел 1800*1200 мм с душевой кабиной (до и после ремонта)
Конечно, придется отказаться от ванны в пользу дешевой кабины или панели, но при правильной расстановке сантехники можно поместить даже узкую стиральную машину.

Узкий мини санузел, размеры 1700*1200 м, единый материал для пола и стен оптически раздвигает границы помещения
В совмещенном помещении маленькой площади 2,2 м.кв. уже можно разместить небольшую ванну криволинейной формы. Душевая кабина хороша, когда в доме проживают молодые люди, а вот для детей и людей пожилого возраста ванна просто необходима.

Фото совместного малогабаритного санузла
Как выбрать размер
Когда появляется возможность самостоятельно задать размеры санузла без каких-либо ограничений по площади, многие люди, набившие шишки в узких и тесных типовых помещениях, начинают мечтать о большом пространстве, где не придется экономить каждый сантиметр. Сразу оговоримся: огромный санузел – это сплошное расточительство, поэтому здесь необходимо искать золотую середину.
Если следовать законам эргономики, то для душевой кабины требуется площадь 1,7-2,5 м.кв., для комфортной ванны 2,7- 3,5 кв.м, для туалета 1,2-1,8 м.кв. для раковины около 1 м. Таким образом, оптимальная площадь уборной для семьи из 4-6 человек 7-9 м.кв. Лучше, если это будет прямоугольное помещение: ширина санузла — 2,5 м, а длина — 3,5 м.
Для грамотной планировки санузла полезно знать:
- высота стандартной ванны с ножками — 640 мм, без — 480-510 мм, размеры ванн 750-800×1600 мм, 750-800×1700 мм, угловые модели — 1500×1500 мм и 1600×1600 мм;
- душевые кабины — 800×800, 900×900 и 1000×1000 мм, для маленьких помещений рекомендуется выбрать душевую панель с поддоном;
- полотенцесушитель, чтобы до него было легко дотянуться, должен быть на 500-700 мм удален от ванны или душа;
- в зависимости от модели размеры унитазов могут отличаться — 440×650, 400х600, 360×650;
- биде — 370х540 и 400×600 мм;
- минимальный размер умывальника около 400 мм в ширину.

Комфортный санузел в частном доме площадью 7 м.кв.
Важно знать
Размеры уборных для людей с ограниченными возможностями рассчитываются исходя из габаритов инвалидной коляски. Так, минимальный размер ванной должен быть не менее 2,3 кв. м, туалет с умывальником от 1,6 м.кв., без умывальника допускается 1,2 м.кв., для инвалидов колясочников ширина санузла – 1650 мм, глубина – 1800 мм.
Какие минимальные размеры санузла? Обзор стандартных размеров санузлов, совмещенных и раздельных, выбор площади туалета и ванной в квартире и частном доме
Как правильно выбрать размер санузла в частном доме, в хрущевке или панельном доме? Какие согласно снип минимальные размеры санузла? Обзор ванных и туалетов разной площади, советы по оптимальной планировке
Источник: house-lab.ru
Стандартные и минимальные габариты санузла, выбор оптимального размера
При покупке нового жилья на размеры санузла мало кто обращает внимание. А ведь это помещение — одно из самых часто используемых в квартире/доме. Поэтому очень важно, чтобы санузел был достаточной площади для того, чтобы в нем можно было поместить необходимые сантехнические приборы, бытовую технику, хотя бы минимум мебели, и при этом пользоваться им было комфортно.
В данной статье мы рассмотрим нормы, по которым сооружают ванные комнаты, их минимальные и типовые размеры.
Как правильно выбрать размер будущего санузла, оптимальные размеры
Чтобы ванная комната была функциональной и удобной в использовании для каждого члена семьи, следует знать оптимальные размеры санузлов в жилых домах:
- ширина помещения — минимум 80 см;
- высота — около 250 см;
- глубина — минимум 120 см.
Сняв размеры санузла совмещенного, можно рационально использовать его площадь при расстановке сантехники. К унитазу следует обеспечить подход не менее 60 см и по 25 см слева и справа от него. Для доступа к раковине оставляют 70 см, комфортная высота ее расположения — 80-90 см. Свободный подход к ванной или душевой кабине составляет 70-120 см.
На заметку: по негласному правилу, часто используемые предметы в ванной должны находиться в пределах досягаемости руки.

Правила монтажа сантехники
Размеры санузла в частном доме, как правило, не настолько ограничены как в городской квартире, поэтому позволяют поместить любую сантехнику. А вот для малогабаритных ванных комнат во многоэтажных домах лучше выбирать компактные модели.
Типовые размеры санузлов
Рассмотрим варианты планировки помещений при стандартных размерах санузла.
Маленькие помещения 2х2 м, как и 1,5х2 м — минимальная площадь, которая необходима человеку. Если ванная комната и туалет раздельные, имеет смыл объединить их и расширить полезное пространство.
На заметку: такой тип перепланировки, не предусматривающий перенос труб, согласовывается по упрощенной схеме.

Примеры планировки мини-санузлов площадью 2 кв. метра и 3 м2
Ванная комната площадью от 4 кв. м. до 6 кв. м. уже имеет достаточно места для комплектации стиральной машиной, небольшим шкафчиком для вещей. В зависимости от расположения двери, сантехнику можно расставить либо по периметру комнаты, либо по противоположным сторонам.

Планировка санузлов средних размеров в панельном доме
В помещении площадью 7 кв. м. поместиться необходимая сантехническая и бытовая техника. Если в квартире проживает много людей, можно установить две раковины, или второй резервуар для купания.
Совет: большую ванную целесообразно разделить на функциональные зоны.

Варианты планировки санузла 7 кв. м.
Если ванная комната узкая и длинная, то резервуар для купания устанавливается в самой глубине помещения. Унитаз, раковину и биде лучше установить вдоль стен в той последовательности, в которой они наиболее часто используются.
Способы планировки узкой ванной комнаты
Минимальные размеры санузлов
Ванные комнаты и туалеты в квартирах разной площади и домах разных типов отличаются площадью и конфигурацией. Определяет минимальные размеры санузла СНиП (полное название «Санитарные нормы и правила») для жилых помещений.
Минимальные размеры раздельного туалета, укомплектованного унитазом и раковиной, зависят от способа открывания двери в помещении. Размер дверного проема ванной и туалета — 75х210 см, ширина двери составляет 60-70 см.
Если дверь открывается наружу, то для удобного пользования будет достаточно пространства 0,9х1,15 м. Если дверь открывает внутрь помещения, забирая часть его площади, то минимальные габариты туалета — 0,9х1,45 м.

Минимальные размеры туалета
Малогабаритный санузел в хрущевке может быть оснащен умывальником, душевым поддоном и унитазом. Минимальные размеры такого совмещенного помещения — 1,65х2 м, либо 1,45х2,2 м. Если туалет расположен отдельно, размеры ванной комнаты могут составлять 1,35х1,65 м.
Минимальные размеры совместного санузла с душевой кабиной
Если гигиеническое помещение укомплектовано резервуаром-ванной, минимальная ширина санузла, в зависимости от расположения сантехники, уже составит 2,1х2,1 м, либо 2,35х1,7 м (2,35х2,5 м).

Минимальные габариты санузла с резервуаром-ванной
Габариты ванной комнаты имеют большое значение, особенно если в доме/квартире проживает большая семья. Зная минимальные размеры санузла и способы организации пространства, можно даже маленький санузел сделать комфортным.
Минимальные размеры санузла и стандартные согласно снип, расчет площади санузла в хрущевке, в частном и панельном доме, выбор оптимального размера
Какой может быть минимальная площадь санузла в жилом доме и частном? Как правильно выбрать размер для санузла согласно снип? Фото ванных комнат и туалетов разной площади, советы по выбору оптимального размера
Источник: v-procese.ru
Размеры санузла: какими должны быть стандартные параметры
Одним из крайне важных параметров планировки квартиры являются минимальные размеры санузла. Невзирая на, казалось бы, незначительность этого момента – а многие весьма легкомысленного относятся к площади сантехнических помещений – площадь санузла крайне важна.
И в первую очередь — для возможности создания рационального интерьера в этом помещении.

Размер санузла и планировка квартиры
Итак, давайте представим себе, что в нашем распоряжении находится помещение с черновой отделкой (а то — и вовсе без нее). В этом случае первое, с чем нам придется столкнуться – это планировка интерьера.

И не последнюю роль в формировании итогового результата играет именно санузел – размеры которого и будут определять:
- Как именно будут размещены сантехнические приборы (ванная унитаз, биде, умывальник)
- Как следует проложить коммуникации
- Какие способы отделки будут оптимальны (нужно ли скрывать коммуникации и проводку под обшивкой)
К примеру, если санузел маленький, то выгадать место можно будет за счет установки сидячей ванны или же душевой кабины, или – установить комбинированный унитаз с биде. В любом случае, размеры и конфигурация помещения, в котором будет размещаться санузел, очень важны.

Планировка совмещенного санузла
Обратите внимание! Промер габаритов санузла необходимо осуществлять на этапе планирования ремонта, иначе велик риск того, что необходимые сантехнические приборы просто не поместятся в комнату, а если и поместятся – то пользоваться ими будет крайне неудобно.
Нормативное регулирование размеров санузла
Минимальная площадь санузла, конфигурация помещения, а также другие параметры, связанные с линейными размерами санузлов, регулируются целым перечнем нормативно-правовых документов. Для Российской Федерации это в первую очередь «Санитарные нормы и правила» (СНиП), которые определяют как размеры санузлов в общественных зданиях различного назначения, так и минимально допустимые габаритные размеры помещений данного типа для жилых домов.
Вот почему, приступая к перепланировке своей квартиры, необходимо очень внимательно изучить нормативно-правовую базу в данной области, иначе велик риск, что перепланировка будет признана не соответствующей СНиП и как следствие – незаконной.

Размещение сантехники в санузле
Для Украины, Беларуси и других государств нормы СНИП, касающиеся габаритов санузлов, могут отличаться от принятых в РФ.
Также некоторые отличия имеют нормативные габариты санузла для ряда отдельных регионов и населенных пунктов.
Отдельная категория ограничений касается размещения санузлов в квартирах. Как правило, БТИ отказывают в регистрации перепланировок, вследствие которых санузел размещают над жилой зоной или кухней.
Исключение составляют только двухуровневые квартиры большой площади, однако в любом случае каждую перепланировку ванной в панельном доме необходимо рассматривать отдельно.
Единственный случай, когда возведение санузла или его перепланировку можно проводить «без оглядки» на СНИП – это перепланировка санузла в частном доме. Если вы не подключаете санузел к стояку канализации и водоснабжения, необходимость в строгом следовании нормам отсутствует. Впрочем, иметь их в виду все же следует – но уже из чисто практических соображений.
Минимальные размеры
Как правило, стандартные и большие санузлы не представляют особой сложности в планировке. А вот санузел малогабаритный, ввиду острого дефицита площади, требует к себе пристального внимания. В малогабаритные ванные комнаты достаточно сложно уместить всю необходимую современном человеку сантехнику – и при этом не нарушить санитарные нормы, не говоря уже о соблюдении хоть минимального уровня комфорта.

Итак, каким же должен быть минимальный размер санузла?
Минимальные габариты туалета в жилом помещении составляют:
- Минимальная глубина санузла– 1,2 м
- Минимальная ширина санузла- 0,8 м
- Высота потолка в санузле – не менее 2,5 м
- Расстояние от унитаза до наклонной плоскости крыши (если санузел расположен в мансарде) – 1,05 – 1,1 м
- Высота потолка в коридоре на подходе к санузлу – не менее 2,1 м.
Последний параметр особенно важно учитывать тем, кто планирует обустройство антресоли в коридоре – а чаще всего в качестве наиболее подходящего места выбирают именно участок коридора между кухней и туалетом.
Для совмещенного санузла столь строгие габаритные ограничения отсутствуют, поэтому при перепланировке следует руководствоваться здравым смыслом и соображениями удобства.
Кроме габаритов, важно еще и размещение дверей санузла. Согласно СНиП, двери санузла должны открываться только наружу. Вход в санузел ни в коем случае не должен располагаться в жилой зоне или в кухне – только в прихожей!
Ограничения по размещению сантехники
Отдельные габаритные ограничения касаются размещения сантехнических приборов в санузле.
И если в предыдущих разделах мы упоминали ограничения, с которыми вы могли столкнуться только в том случае, если у вас очень маленький санузел, то здесь нужно быть внимательным всем:

- Расстояние между унитазом и биде — не менее 0,25 м (это не касается комбинированных моделей)
- Перед ванной или душевой кабиной – не менее 0,7м свободного пространства (лучше 1 – 1,2м)
- Перед унитазом – не менее 0,6 м свободного пространства
- С каждой стороны унитаза – не менее 0,25 м
- Перед умывальником не менее 0,7 м, а если умывальник не выступает из стены, а утоплен в нишу – 0,9 м.
Санузлы для лиц с ограниченными возможностями
Упомянув о наличии нормативов, отдельно регулирующих габаритные размеры сантехнических помещений в общественных зданиях, нельзя не упомянуть о том, что особые требования выдвигаются к санузлам для инвалидов.
Так, согласно пункта 4.36СНиП 2.08.02-89 «Общественные здания» в каждой уборной общественных зданий должен быть как минимум один санузел для инвалидов – размеры этого санузла должны находиться в следующих пределах:
- Минимальная ширина кабинки – 1,65 м
- Минимальная глубина – 1,8 м
Двери кабинок такого специализированного санузла должны открываться только наружу. Дополнительное оборудование для удобства использования санузла лицами с особыми потребностями СНиП не регламентирует, однако его установка является крайне желательной.

Санузел для инвалидов
Естественно, такой санузел желательно располагать в местах, максимально удобных для доступа маломобильных категорий граждан, в первую очередь – инвалидов-колясочников.
Что же касается жилых зданий, то для них характерны следующие требования:
- Санузел с установленным умывальником – не менее 1,6х2,2 м
- Совмещенный санузел – 2,2х2,2, м
Как видите, по отношению к габаритным размерам санузла существует значительное количество ограничений, причем не только со стороны СНиП, но и со стороны удобства использования. И перед тем, как приступать к строительству, перепланировке или капитальному ремонту (особенно – если у вас малогабаритный санузел) необходимо пристально изучить все эти ограничения. Тогда и с узакониванием проблем не будет, и пользоваться санузлом будет комфортно.
Размеры санузла: какими должны быть стандартная минимальная площадь
416) Размеры санузла: какими должны быть стандартная минимальная площадь (ширина, длина), как преобразить очень маленькую ванную комнату и туалет, идеи для малогабаритных помещений, также варианты для инвалидов.
Источник: eto-vannaya.club
Маленькие раковины в туалет

Обладатели совмещенных санузлов терпят множество неудобств, но такая планировка обладает и определенными плюсами. Например, можно проводить все гигиенические процедуры в одном месте, а не метаться между туалетом и ванной комнатой.

Возможность помыть руки сразу после туалета, не трогая дверные ручки и выключатели, – это большое преимущество. В раздельных санузлах часто недостает места для установки полноценной раковины, но производители сантехники придумали изящное и практичное решение этой проблемы – маленькие раковины, предназначенные специально для туалета.

Об особенностях и разновидностях данного сантехнического прибора мы подробно расскажем вам в сегодняшней статье.

Особенности
Главная особенность таких раковин – это миниатюрные размеры, позволяющие размещать их даже в самых крошечных помещениях. Благодаря продуманной конструкции и лаконичному дизайну, мини-рукомойник можно установить практически везде, не нарушая эргономичности санузла.
Маленькие раковины для туалета различаются по нескольким ключевым параметрам: размеры, форма, способ установки, материал изготовления. У покупателей есть выбор среди сотен моделей, поэтому каждый, кто озадачится вопросом покупки такой раковины, обязательно найдет подходящий вариант.

Специально для миниатюрных умывальников в туалет разрабатывается сантехническое оборудование – краны, смесители и т.д., которое отличается более компактными, по сравнению с обычным, габаритами.

Выбирая маленькую раковину для туалета, в первую очередь нужно определиться с ее размером. Исходить нужно из площади санузла и наличия в нем свободного места. Существует линейка размеров для таких раковин, но есть и дизайнерские модели, обладающие нестандартными габаритами.

Обычно размер сантехприбора определяют по трем параметрам: длина, ширина и высота.

Длина умывальников для туалета очень невелика, ведь они предназначаются исключительно для мытья рук, поэтому в больших чашах необходимости нет. Самые длинные мини-раковину – 45-сантиметровые, а самые короткие имеют длину около 20 см. Миниатюрные модели, как правило, пользуются большей популярностью: чаще всего покупатели приобретают раковины длиной 23 см.

Ширина, или глубина раковины – это один из важнейших критериев, так как именно от него зависит, насколько комфортно вам будет пользоваться данным сантехническим прибором. Самые крупногабаритные модели трудно назвать компактными, так как их ширина составляет 65 см. А самые узкие умывальники имеют ширину всего 18 см.

Высота раковины обычно не слишком важна для покупателей, так как она практически не влияет на полезное пространство, которое занимает этот сантехприбор. Высота представленных на рынке моделей колеблется от 7 до 62 см, при этом обычно учитывается и высота пьедестала, на который устанавливается чаша. Самым большим спросом пользуются мини-раковины стандартной высоты – 18 см.

Мини-варианты
Самые крошечные раковины для туалета не очень функциональны – в них можно только помыть руки и сполоснуть губку для уборки, но большего и не требуется, ведь для всего остального есть большая, полноценная раковина в ванной комнате. Поэтому между удобством и компактностью большинство покупателей выбирают последнее.
Меньше всего места занимают угловые умывальники, а также модели нестандартной формы – круглые, овальные и т.п. За счет того, что у таких раковин нет углов, к ним можно подойти с любой стороны, поэтому место для монтажа выбрать значительно легче.

Вот несколько вариантов миниатюрных умывальников:
- угловая раковина Melana MLN-8010A, 23x23x13 см;
- круглая раковина Scarabeo IN-OUT 25 8019, 24.5×24.5×14 см;
- прямоугольная раковина Hidra LOFT LO20, 32x20x12 см;
- полукруглая раковина Melana MLN-7947A, 40.5×22.5×13 см.

Подвесные раковины
Так как в условиях дефицита свободного места важен каждый сантиметр пространства, конструкция маленьких раковин для туалета предусматривает такой монтаж, при котором «съедалось» бы как можно меньше места. Поэтому наибольшей популярностью пользуются подвесные модели, для установки которых не нужна тумба или пьедестал.

Подвесные мини-умывальники фиксируются к стене при помощи металлических кронштейнов. Однако при таком способе установки все подведенные к раковине трубки и шланги остаются на виду поэтому, если не спрятать коммуникации за фальш-стену, выглядеть такая конструкция будет не очень эстетично. Плюсом подвесных раковин является то, что они совершенно не мешают проводить уборку в туалете.
Угловые модели
Обладатели самых тесных санузлов, как правило, выбирают угловые раковины. Такие модели подходят и для нестандартных помещений, например, очень длинных или узких туалетов. Треугольные раковины также отлично подходят для санузлов, в которых есть ниши и простенки.
При покупке углового мини-умывальника, нужно учесть множество деталей. Так, он не должен мешать открытию-закрытию туалетной двери и, соответственно, входу-выходу из помещения. Смеситель должен быть максимально компактным и невысоким, иначе струя воды будет разбрызгиваться по всему помещению.
Маленькая раковина в туалет (41 фото): модели, мини варианты, угловые, с тумбочкой
Маленькие раковины в туалет будут прекрасным решением. Они дополнят интерьер и сделают пребывание в доме гигиеничнее и удобнее. На какие мини варианты обратить внимание и что учесть при выборе угловой раковины или раковины с тумбой?
Источник: www.o-vannoy.ru
vse-o-kanalizacii.ru
Какие минимальные размеры санузла? Обзор стандартных размеров санузлов, совмещенных и раздельных, выбор площади туалета и ванной в квартире и частном доме
Размер, как ни крути, имеет значение… особенно если речь зашла о том, какими должны быть размеры санузла. В законодательстве всех стран существуют четкие стандарты, регламентирующие площадь ванной и туалета.
Содержание:
В этой статье мы расскажем какие существуют стандартные размеры санузла, обсудим минимальные возможные габариты, и подскажем, как правильно определиться с площадью санитарного помещения в будущем доме.
Размеры – СНиП и DIN
Действующий технический регламент, отраженный в СНиП и DIN 18022, четко определяет размеры санузла для жилых помещений:
- минимальная высота пол/потолок – 2500 мм;
- глубина – не менее 1200 мм;
- в мансарде расстояние от унитаза до ската крыши – 1050 мм;
- минимальная ширина санузла – 800 мм.
СНиП так же регулирует стандартные размеры санузла, совмещенного туалета с ванной, и установку сантехники в нем:
- перед ванной и душем должно быть не менее 700 мм, перед унитазом 600 мм свободного пространства;
- биде устанавливается на 250 мм от унитаза, если иное не предусмотрено моделью;
- по бокам от сантехнической точки должно оставаться 250 мм свободного места.

Памятка о стандартах размещения сантехники
Типовые санузлы в жилых домах
Стандартные размеры туалетов в типовых многоквартирных домах 1200*800 мм, 1500*800 мм, и улучшенной планировки — 100*1500 мм, в который вмещается раковина или узкая стиральная машина.

Минимальные размеры санузла, разрешенные при строительстве типовых многоквартирных жилых домов
Что касается ванной комнаты, то ее средний размер 1650-2000*1200-2500 м. Совмещенное помещение в хрущевке 3,3 – 3,8 м2.

Стандартные размеры с эргономичной планировкой (лист 1)
В новостройках эконом класса уборные уже делают несколько больше – от 4 кв.м, а в улучшенных сериях домов встречаются комнаты и 5-6 кв. м. В элитных квартирах площадь редко бывает меньше 7 кв.м. Оптимальные размеры санузла в частном доме от 9 кв.м, здесь уже можно организовать полноценный оазис релакса.

Стандартные помещения с эргономичной планировкой (лист 2)
Минимальный санузел
Самые маленькие уборные размером в 1,8-2,0 м.кв. встречаются в малогабаритных квартирах. Но даже такие площади можно оформить с должным комфортом.

На фото малогабаритный санузел 1800*1200 мм с душевой кабиной (до и после ремонта)
Конечно, придется отказаться от ванны в пользу дешевой кабины или панели, но при правильной расстановке сантехники можно поместить даже узкую стиральную машину.

Узкий мини санузел, размеры 1700*1200 м, единый материал для пола и стен оптически раздвигает границы помещения
В совмещенном помещении маленькой площади 2,2 м.кв. уже можно разместить небольшую ванну криволинейной формы. Душевая кабина хороша, когда в доме проживают молодые люди, а вот для детей и людей пожилого возраста ванна просто необходима.

Фото совместного малогабаритного санузла
Как выбрать размер
Когда появляется возможность самостоятельно задать размеры санузла без каких-либо ограничений по площади, многие люди, набившие шишки в узких и тесных типовых помещениях, начинают мечтать о большом пространстве, где не придется экономить каждый сантиметр. Сразу оговоримся: огромный санузел – это сплошное расточительство, поэтому здесь необходимо искать золотую середину.
Если следовать законам эргономики, то для душевой кабины требуется площадь 1,7-2,5 м.кв., для комфортной ванны 2,7- 3,5 кв.м, для туалета 1,2-1,8 м.кв. для раковины около 1 м. Таким образом, оптимальная площадь уборной для семьи из 4-6 человек 7-9 м.кв. Лучше, если это будет прямоугольное помещение: ширина санузла — 2,5 м, а длина — 3,5 м.
Для грамотной планировки санузла полезно знать:
- высота стандартной ванны с ножками — 640 мм, без — 480-510 мм, размеры ванн 750-800×1600 мм, 750-800×1700 мм, угловые модели — 1500×1500 мм и 1600×1600 мм;
- душевые кабины — 800×800, 900×900 и 1000×1000 мм, для маленьких помещений рекомендуется выбрать душевую панель с поддоном;
- полотенцесушитель, чтобы до него было легко дотянуться, должен быть на 500-700 мм удален от ванны или душа;
- в зависимости от модели размеры унитазов могут отличаться — 440×650, 400х600, 360×650;
- биде — 370х540 и 400×600 мм;
- минимальный размер умывальника около 400 мм в ширину.

Комфортный санузел в частном доме площадью 7 м.кв.
Важно знать
Размеры уборных для людей с ограниченными возможностями рассчитываются исходя из габаритов инвалидной коляски. Так, минимальный размер ванной должен быть не менее 2,3 кв. м, туалет с умывальником от 1,6 м.кв., без умывальника допускается 1,2 м.кв., для инвалидов колясочников ширина санузла – 1650 мм, глубина – 1800 мм.
Похожие статьиlux-standart.ru
Размеры туалета и санузла: стандартная и минимальная ширина
. Совершая покупку квартиры, мало кто обращает внимание на его площадь туалета. А ведь эта комната одна из часто пользуемых в квартире. Я расскажу вам о том, какими должны быть оптимальные размеры туалета для удобства вашей семьи.
Принятые стандарты размера туалета и ванной
Существуют квартиры различных типов. Каждая квартира в зависимости от типа планировки имеет свои габариты ванной.
Существуют стандарты минимальных габаритов санузлов, эти стандарты определяются «Санитарными нормами и правилами» (СНиП).
Наименьшие габариты раздельных санузлов, оснащенного унитазом и раковиной, рассчитываются в соответствии с методом открывания дверей. Общепринятые замеры двери: 75х210 см с шириной около 60 см. Минимальная площадь комнаты, с дверью открывающейся наружу составляет 0,9х 1,15 м. Для санузла с дверью, открывающейся внутрь, нужны большие размеры, так как она занимает дополнительное место, габариты такого туалета должны быть не менее 0,9х 1,45 м.
Минимальные габариты стандартного санузлаСтандартный — в хрущёвке в основном укомплектован раковиной, душевой и унитазом. Наименьшие площадь — 1,65х 2 м, либо 1,45х 2,2 м. Если санузел раздельный, площадь ванной составляют 1,35х1,65 м. Если же помещение оснащено резервуаром – ванной, с учётом расположения сантехники, кабинки для душа, нормы составляют 2,1х2,1 м, либо 2,35х1,7 м (2,35х2,5 м).
При постройке жилых помещений, обязательно должны учитываться стандарты габаритов санузлов в соответствии с СНиП.
Важно не только размеры унитаза, но и его способность выдерживать вес до 500 кгТиповые габариты в жилых домах
Рассмотрим типовые параметры разных санузлов:
- В многоквартирных домах есть два типа постройки уборной: обычная и обновлённая. Отличие их состоит в том, что в обновленной планировке площадь туалета позволяет вместить раковину и стиралку. Соответственно площадь обычного туалета 1200*800 мм, 1500*800 мм и обновлённого 100*1500 мм. Если же ванная, совмещенная, то минимальное место составляет 1650-2000*1200-2500 м.
- В домах хрущевской постройки совмещенных построек 3,3 – 3,8 м2.
- Размеры уборных в постройках нового панельного типа от 4 кв.м.
- Улучшенные новостройки имеют площади санузлов 5-6 кв. м.
- Если речь идёт об индивидуальном строительстве, частном доме, то для масштабов санузла ограничений нет.
Заниматься перепланировкой следует только при помощи специалистовКак выбрать оптимальный размер санузла
Главное в этом деле найти середину и сделать свой санузел оптимальных масштабов. Ведь в такой комнате, как в этой, очень много сантехники и техники необходимой для повседневной жизни. Чтобы всё это рационально вместить, не выделяя на туалет большую часть жилья, нужно взять к сведению все факторы и особенности.
Для каждого оптимальные размеры санузла могут быть абсолютно разными, но самое главное – это найти золотую серединуВо первых нужно учесть, сколько места понадобится для унитаза, душевой и ванны.
Также стоит подумать о наличии сантехники и учесть их замеры
Учитывая эти данные можно сказать, что для семьи, допустим из 4 человек, будет достаточно 8 кв. метров санузла.
Средние размеры сантехники:
- унитаз, в основном 40 х 65 см;
- габариты обыкновенной ванны 80 х 160 см, с высотой 64 см учитывая ножки;
- ванна углового типа 150 х 150 см;
- средние замеры душевых 80 х 80 см, 90 х 90 см, 100 х 100 см;
- если вы хотите биде, то вам придётся выделить 40 х 60 см;
- ширина средней раковины для умывания 50–60 см.

Еще необходимо учитывать все особенности оптимальных габаритов санузлов для людей с инвалидностью
В основном мы говорим о минимальных размерах уборной, если есть законное разрешение о перепланировке, то вы можете сделать туалет и 9 кв. м.
Если вы решили сделать планировку своей ванной комнаты, то отнеситесь к этому серьёзно.
Нужно учесть все особенности планирования такой комнаты, чтобы в итоге в ней вместились все необходимые для вас коммуникации.
Есть несколько решений для планировки маленькой комнатушки. Для экономии пространства вы можете использовать ниши. Ниши — это как бы отверстия в стене, где может разместиться, к примеру, стиральная машина. Такое решение поможет вам сэкономить пространство квартиры не ущемляя себя в бытовых удобствах.
В начале планирования необходимо учесть все факторы заранее, потому что в дальнейшем может не влезть сантехника и коммуникацииЕсли же вы решились на перепланировку, то такие меры проводятся только с разрешением коммунальных служб. Если вы решите сделать перепланировку без помощи специалиста, это может привести к обвалу стены.
bezkovrov.com
какими должны быть стандартная минимальная площадь
Одним из крайне важных параметров планировки квартиры являются минимальные размеры санузла. Невзирая на, казалось бы, незначительность этого момента – а многие весьма легкомысленного относятся к площади сантехнических помещений – площадь санузла крайне важна.
И в первую очередь – для возможности создания рационального интерьера в этом помещении.

Размеры санузла
Размер санузла и планировка квартиры
Итак, давайте представим себе, что в нашем распоряжении находится помещение с черновой отделкой (а то – и вовсе без нее). В этом случае первое, с чем нам придется столкнуться – это планировка интерьера.

Маленький санузел
И не последнюю роль в формировании итогового результата играет именно санузел – размеры которого и будут определять:
- Как именно будут размещены сантехнические приборы (ванная унитаз, биде, умывальник)
- Как следует проложить коммуникации
- Какие способы отделки будут оптимальны (нужно ли скрывать коммуникации и проводку под обшивкой)
К примеру, если санузел маленький, то выгадать место можно будет за счет установки сидячей ванны или же душевой кабины, или – установить комбинированный унитаз с биде. В любом случае, размеры и конфигурация помещения, в котором будет размещаться санузел, очень важны.

Планировка совмещенного санузла
Обратите внимание! Промер габаритов санузла необходимо осуществлять на этапе планирования ремонта, иначе велик риск того, что необходимые сантехнические приборы просто не поместятся в комнату, а если и поместятся – то пользоваться ими будет крайне неудобно.
Нормативное регулирование размеров санузла
Минимальная площадь санузла, конфигурация помещения, а также другие параметры, связанные с линейными размерами санузлов, регулируются целым перечнем нормативно-правовых документов. Для Российской Федерации это в первую очередь «Санитарные нормы и правила» (СНиП), которые определяют как размеры санузлов в общественных зданиях различного назначения, так и минимально допустимые габаритные размеры помещений данного типа для жилых домов.
Вот почему, приступая к перепланировке своей квартиры, необходимо очень внимательно изучить нормативно-правовую базу в данной области, иначе велик риск, что перепланировка будет признана не соответствующей СНиП и как следствие – незаконной.

Размещение сантехники в санузле
Обратите внимание!
Для Украины, Беларуси и других государств нормы СНИП, касающиеся габаритов санузлов, могут отличаться от принятых в РФ.
Также некоторые отличия имеют нормативные габариты санузла для ряда отдельных регионов и населенных пунктов.
Отдельная категория ограничений касается размещения санузлов в квартирах. Как правило, БТИ отказывают в регистрации перепланировок, вследствие которых санузел размещают над жилой зоной или кухней.
Исключение составляют только двухуровневые квартиры большой площади, однако в любом случае каждую перепланировку ванной в панельном доме необходимо рассматривать отдельно.
Единственный случай, когда возведение санузла или его перепланировку можно проводить «без оглядки» на СНИП – это перепланировка санузла в частном доме. Если вы не подключаете санузел к стояку канализации и водоснабжения, необходимость в строгом следовании нормам отсутствует. Впрочем, иметь их в виду все же следует – но уже из чисто практических соображений.
Минимальные размеры
Как правило, стандартные и большие санузлы не представляют особой сложности в планировке. А вот санузел малогабаритный, ввиду острого дефицита площади, требует к себе пристального внимания. В малогабаритные ванные комнаты достаточно сложно уместить всю необходимую современном человеку сантехнику – и при этом не нарушить санитарные нормы, не говоря уже о соблюдении хоть минимального уровня комфорта.

Малогабаритный санузел
Итак, каким же должен быть минимальный размер санузла?
Минимальные габариты туалета в жилом помещении составляют:
- Минимальная глубина санузла– 1,2 м
- Минимальная ширина санузла- 0,8 м
- Высота потолка в санузле – не менее 2,5 м
- Расстояние от унитаза до наклонной плоскости крыши (если санузел расположен в мансарде) – 1,05 – 1,1 м
- Высота потолка в коридоре на подходе к санузлу – не менее 2,1 м.
Последний параметр особенно важно учитывать тем, кто планирует обустройство антресоли в коридоре – а чаще всего в качестве наиболее подходящего места выбирают именно участок коридора между кухней и туалетом.
Для совмещенного санузла столь строгие габаритные ограничения отсутствуют, поэтому при перепланировке следует руководствоваться здравым смыслом и соображениями удобства.
Кроме габаритов, важно еще и размещение дверей санузла. Согласно СНиП, двери санузла должны открываться только наружу. Вход в санузел ни в коем случае не должен располагаться в жилой зоне или в кухне – только в прихожей!
Ограничения по размещению сантехники
Отдельные габаритные ограничения касаются размещения сантехнических приборов в санузле.
И если в предыдущих разделах мы упоминали ограничения, с которыми вы могли столкнуться только в том случае, если у вас очень маленький санузел, то здесь нужно быть внимательным всем:

Размещение раковины
- Расстояние между унитазом и биде – не менее 0,25 м (это не касается комбинированных моделей)
- Перед ванной или душевой кабиной – не менее 0,7м свободного пространства (лучше 1 – 1,2м)
- Перед унитазом – не менее 0,6 м свободного пространства
- С каждой стороны унитаза – не менее 0,25 м
- Перед умывальником не менее 0,7 м, а если умывальник не выступает из стены, а утоплен в нишу – 0,9 м.
Санузлы для лиц с ограниченными возможностями
Упомянув о наличии нормативов, отдельно регулирующих габаритные размеры сантехнических помещений в общественных зданиях, нельзя не упомянуть о том, что особые требования выдвигаются к санузлам для инвалидов.
Так, согласно пункта 4.36СНиП 2.08.02-89 “Общественные здания” в каждой уборной общественных зданий должен быть как минимум один санузел для инвалидов – размеры этого санузла должны находиться в следующих пределах:
- Минимальная ширина кабинки – 1,65 м
- Минимальная глубина – 1,8 м
Двери кабинок такого специализированного санузла должны открываться только наружу. Дополнительное оборудование для удобства использования санузла лицами с особыми потребностями СНиП не регламентирует, однако его установка является крайне желательной.

Санузел для инвалидов
Естественно, такой санузел желательно располагать в местах, максимально удобных для доступа маломобильных категорий граждан, в первую очередь – инвалидов-колясочников.
Что же касается жилых зданий, то для них характерны следующие требования:
- Санузел с установленным умывальником – не менее 1,6х2,2 м
- Совмещенный санузел – 2,2х2,2, м
Как видите, по отношению к габаритным размерам санузла существует значительное количество ограничений, причем не только со стороны СНиП, но и со стороны удобства использования. И перед тем, как приступать к строительству, перепланировке или капитальному ремонту (особенно – если у вас малогабаритный санузел) необходимо пристально изучить все эти ограничения. Тогда и с узакониванием проблем не будет, и пользоваться санузлом будет комфортно.
eto-vannaya.club
Размеры ванной комнаты
Обустройство ванной комнаты не может быть выполнено без учета ее размеров. Эти параметры напрямую влияют на выбор типа сантехоборудования, без которого невозможна нормальная эксплуатация этого помещения.

Размеры ванной комнаты

Дизайн проект ванной комнаты

Размеры санузлов
Содержание материала
Нормативно-правовая база
Линейные размеры жилых и подсобных помещений регулируются внушительным перечнем таких нормативных актов, как ГОСТы и СНиПы. В соответствии с ними осуществляется планировка типовых квартир. Любое изменение в расположении стен и перегородок должно быть согласовано в соответствующих инстанциях, первая из которых – БТИ.

Перепланировка ванной

Схема перепланировки маленькой ванной комнаты

Размещение сантехники в ванной комнате по СНиП
Далеко не всегда владелец типовой квартиры получает разрешение на реализацию планировки, необходимой для улучшения комфортабельности помещений. Это нужно учитывать при покупке жилья и в первую очередь обращать внимание на размеры ванной и санузла. Они отражены на плане квартиры, где также указано расположение инженерных коммуникаций.

Кадастровый паспорт: образец

На картинки план квартиры
Согласно нормативам, минимальные размеры ванных комнат могут быть следующими:
- высота потолков не менее 2,5 м;
- ширина помещения не менее 0,8 м;
- глубина (длина) ванной комнаты не менее 1,2 м.
Размеры совмещенных санузлов имеют свою градацию: маленькие (198-173 см), средние (250х150 см), большие (290х200 см). Эти стандарты определены для «хрущевок» и панельных многоквартирных домов. Архитектурная планировка этих зданий может включать не полноценные ванные комнаты или совмещенные санузлы с установленными в них ваннами, а санузлы с душевыми кабинами. Стандартные размеры таких помещений 140х150 см.

Как посчитать площадь ванной комнаты

Проект ванной комнаты площадью 3,1 кв.м

Проект ванной комнаты площадью 3,3 кв.м

При правильной организации пространства, нестандартная планировка ванной комнаты очень удобна

Проект ванной комнаты площадью 4,6 кв.м

Проект ванной комнаты площадью 6,25 кв.м
Поскольку габариты ванных в типовых квартирах оставляют желать лучшего, непросто создать условия для комфортной эксплуатации этих комнат. Кроме того, необходимо учитывать рекомендованные нормативами расстояния между сантехоборудованием.
| Оборудование | Расстояния |
|---|---|
| От унитаза до биде | Не менее 35 см |
| От унитаза до стояка | Не более 20 см |
| От стены до душевой кабины | Не более 30 см |
| Свободное пространство перед унитазом | Не менее 60 см |

Размеры оборудования ванной комнаты

Оптимальные размеры для умывания и вытирания полотенцем
Эргономика ванной комнаты
Для того чтобы эксплуатация ванной была комфортной и безопасной, нужно суметь правильно расположить мебель и сантехнику. В небольших помещениях сделать это непросто, поэтому рекомендуется предварительно выполнить все необходимые замеры.
Потребуется узнать расстояние от стен до точек подключения сантехоборудования и линейные размеры помещения. Все эти данные нужно внести в импровизированный чертежик. Далее выясняют габариты сантехники и мебели, которые планируют установить, и находят для них наиболее удобное местоположение.
Ванная комната входит в категорию помещений повышенной опасности. Это связано с регулярным использованием воды, вследствие чего образуется избыточная влажность воздуха, стен и пола. Это нужно учитывать и, если среди домочадцев есть люди с ограниченной способностью к самостоятельному передвижению, ванную необходимо оборудовать специальными поручнями.

Поручень над ванной

Поручни для ванной для инвалидов

Требования к уборным для инвалидов
Разместить вещи в небольших помещениях поможет антресоль. Ее сооружают под потолком в непосредственной близости от санузла. Для этого существуют рекомендованные нормы потолков вблизи санузлов: не менее 210 см.

Антресоль

Встроенная антресоль для ванной

Мебель для ванных комнат
Планировка ванной комнаты
Если помещение совмещенного санузла имеет форму узкого вытянутого прямоугольника, наиболее удобным будет следующее расположение сантехники:
- купель устанавливают в самом дальнем углу в глубине помещения;
- другое сантехоборудование (унитаз, биде, раковину для умывания) устанавливают вдоль стены с инженерными коммуникациями.

Планировка ванной 6 кв.м

Пример планировки ванной прямоугольной формы

Нестандартная планировка, на схеме душевой уголок и ванна

Ванная комната с эркером, планировка и размеры

Планировка ванной комнаты с отдельно стоящей купелью
Для большего удобства эксплуатации совмещенного санузла, сантехническое оборудование размещают в той последовательности, которая соответствует частоте использования. При оборудовании ванной комнаты необходимо учесть, как открывается дверь: внутрь и наружу. В первом варианте значительная часть полезной площади будет потеряна. Поэтому рекомендуется переустановить дверь.
При правильном способе организации пространства можно и малогабаритную ванную сделать уютной и комфортабельной. Для размещения всех необходимых для принятия водных процедур принадлежностей, рекомендуется использовать навесные шкафы, современные полотенцесушители, наборы крючков и аксессуаров на вакуумных присосках.

Дизайн маленькой ванной комнаты

На плане показано рекомендованное размещение сантехники и мебели

Размещение душевого уголка, раковины и биде в ванной комнате
В хрущевках часто встречаются совмещенные малогабаритные санузлы. Для того чтобы разместить все необходимое оборудование максимально удобно, потребуется перенос точек подключения сантехники. Для этого наращивают трубы, используя современные строительные материалы: металлопластиковые трубы и фитинги, полипропиленовые, медные.

Ванная комната в хрущевке — фото
Чаще всего в переносе нуждается раковина. При стандартной планировке она расположена у одной из стен помещения. Наиболее удобное местоположение – в одном из углов ванной комнаты. Если размеры помещения не позволяют установить биде, можно выбрать один из видов унитаза с функцией биде. Многообразие моделей современных ванн позволит выбрать ту купель, которая наиболее удачно впишется в габариты и дизайн ванной комнаты.

Ванна в форме капли удачно вписывается в интерьер, позволяя освободить место под биде или унитаз

Идея расположения сантехники в маленькой ванной комнате
Вывод
Проще всего обустроить ванную в частном доме, так как его владелец может выбрать наиболее удобные для него размеры этой комнаты. В типовых многоквартирных домах потребуется выполнить серию расчетов, которые помогут определиться с выбором сантехоборудования и мебели.

Ванная комната в частном доме
Видео – Планировка и дизайн ванной комнаты
vanna-expert.ru
