Планировка дома 9×9 метров — каталог
Каталог проектов домов 9 на 9
Внизу готовые проекты домов 9 на 9 — каталог, по которым, возможно уже построены дома.
Компактные с первого взгляда, проекты домов 9 на 9 метров, на самом деле, имеют огромное пространство для реализации задуманных дизайнерских идей. Они рационально впишутся в небольшой участок земли, предоставив владельцам возможность организовать и благоустроить придомовую территорию.
Все дома отвечают технологическим нормам и требованиям, имеют планировку, максимально адаптированную для комфортного проживания.
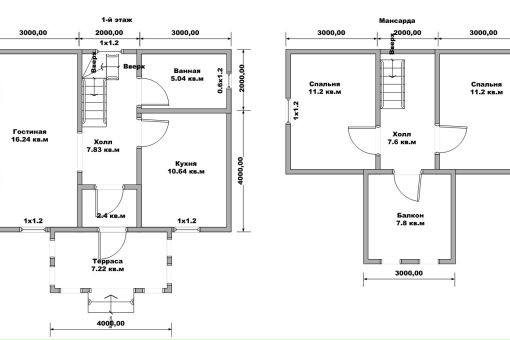
Одноэтажный проект 9 на 9
Одноэтажный проект дома 9 на 9 с отличной планировкой и площадью 81 квадратный метр – это просторное жилище для большой семьи. Запроектированный по одному из нижеприведенных вариантов дом обеспечивает высокое качество, надежность, экономичность строительных работ и дальнейшей эксплуатации.К нему можно пристроить гараж, террасу, веранду, добавить погреб или чердак.
Двухэтажный проект дома 9 на 9
Двухэтажный проект дома 9 на 9 для постоянного проживания, внешний вид которого дает понять о его строительной целостности и эргономичности, подойдет даже для строительства в городской среде. Применение качественных отделочных материалов, хорошее функциональное зонирование внутреннего пространства, надежные системы гидро- и теплоизоляции сделают его более комфортным и уютным.
Дом 9 на 9 с мансардой
Разрабатывая проект дома 9 на 9 с мансардой, проектировщик уделяет особое внимание системам защиты от внешних воздействий, уровню освещения, ограничению потерь тепла. Именно на этих нюансах основывается устройство мансардного этажа.
Жилое здание с мансардой – наиболее эффективное решение, предоставляющее возможность получения дополнительной полезной площади. При оформлении мансарды окнами различных размеров и конфигураций, нестандартными решениями отделки, декоративными элементами, она может стать самой любимой комнатой всех членов семьи!
Дом 9×8 из бруса двухэтажный, проект коттеджа 150 кв м, стоимость.

(нажмите на проект для увеличения)
Вместительный и уютный коттедж общей площадью 144 кв.м, выполненный из профилированного бруса разного профиля и сечения. Перед вами проект коттеджа 150 кв м с отличной планировкой, оптимальных размеров для комфортного проживания семьи из 4-6 человек. Жилой дом 9×8 в два этажа брусом, каждый этаж включает в себя 18 рядов бруса. То есть каждый этаж равен по площади и стены ровные от пола до потолка, что позволяет использовать максимум полезной площади частного дома. Проект дома включает в себя гостиную, большую кухню, с/у,кладовку, второй этаж полностью брусовой и имеет помещения для отдыха и сна. Деревянный загородный коттедж получил красивый фасад, благодаря террасе и балкону-лоджии, которые так же служат летом местом для отдыха на открытом воздухе. Большое количество окон позволяют проникать в дом солнечному свету и увеличивает пространство внутри. А высокие потолки, не менее 2500см, не будут давить жильцам на голову.
- Проект: Д-41
- Размеры: 9×8
- Цена брус 100х150 мм: 1.108.000 руб
- Цена брус 150х150 мм: 1.161.000 руб
- Цена
брус 150х200 мм: 000.000 руб - Цена сруб «под усадку» 150х150 мм: 000.000 руб
| Фундамент: | В базовом варианте дом устанавливается на столбчатый фундамент. Возможен вариант фундамента: свайно-винтовой и ленточный (рассчитывается отдельно) |
|---|---|
| Обвязка | Брус 100х150 мм на ребро |
| Половые лаги: | Брус 100х150 мм, через 90-100 см.![]() |
| Стены 1-го этажа: | Строганный профилированный брус 95х145 (145х145мм, 190х145мм), на джутовом полотне, перегородки – строганный профилированный брус 95х145 мм, без утеплителя. |
| Джут: | Межвенцовый утеплитель «джут», джутовое волокно прокладывается между рядами бруса |
| Тип рубки: | Тип рубки стен сруба «в тёплый угол»(шип-паз) |
| Стены 2-го этажа: | Строганный профилированный брус 95х145мм |
| Фронтоны: | Брусовые: строганный профилированный брус 95х145мм (145х145мм 190х145мм) |
| Дом полуторный: | Дом в два этажа брусом. Весь дом брусовой 1 и 2 этаж, все перегородки и фронтоны из профилированного бруса |
| Утепление: | Пол и потолок 1 и 2 этажей на 100мм, утеплитель «ursa» (или аналоги), с прокладкой пароизоляционной плёнки. |
| Окна: | Деревянные с двойным остеклением, с фурнитурой, обналиченные, размером 1,0х1,2 м.![]() |
| Двери: | Входная – металлическая. Филенчатые, обналиченные, без фурнитуры, размером 2х0,8 м. |
| Стропила: | Стропила из доски 40х100(150мм) с шагом не более 0,9м. |
| Кровля: | Ондулин (на выбор: красный, зеленый, коричневый). |
| Обрешётка: | Обрезная доска 40х100мм, обрешетка выполняется из необрезной доски 20 мм с шагом не более 400мм |
| Пол: | Двойной: черновой – необрезная доска 20 мм, чистовой – шпунтованная доска 36 мм, с парогидроизоляцией изоспан и утеплением «ursa» (100 мм). |
| Высота: | Высота первого этажа – 2,5 м. (18 венцов), второй этаж – 2,5 м.(18 венцов) |
| Потолки: | Потолки подшиваются сухой вагонкой, сорт B |
| Лестница: | Лестница деревянная на второй этаж одномаршевая(двухмаршевая) с перилами |
| Карнизы: | Карнизы, поднебесники подшиваются вагонкой.![]() |
| Наличники: | Наличники на оконные или дверные проёмы с двух сторон |
| Углы внутри: | На все стыки потолка,стен и пола прибивается плинтус |
| Углы снаружи: | Углы стен снаружи прикрываются наличниками |
Подробнее о комплектации сруба «под усадку»
Дополнительные услуги:
Двойная обвязка
Ройки(обсада) в дверные и оконные проёмы
Антисептирование нижней обвязки и черновых полов
Покраска дома снаружи в один слой
Пароизоляция под кровлю
Сборка на деревянные нагеля
Сухой брус камерной сушки
Замена кровли (ондулин) на металлочерепицу, профнастил.
Подробнее смотрите
Смотрите перечень материалов, применяемых в строительстве
Смотрите подробно ответы на часто задаваемые вопросы по строительству
Собственное производство профилированного бруса
Еще одно предприятие региона получило значительный экономический эффект от участия в нацпроекте «Производительность труда»
На 70% сократить незавершенное производство и на 13% увеличить производительность труда помог национальный проект «Производительность труда» компании «НаДО» (Отрадный).
За счет применения принципов и инструментов бережливого производства сотрудникам предприятия совместно со специалистами Регионального центра компетенций в сфере производительности труда Самарской области (РЦК) удалось достичь таких результатов за полгода.
Более 18 лет ООО «НаДО» успешно производит и реализует натуральные наполнители и начинки для пищевых продуктов. Специалисты компании постоянно обмениваются опытом с лучшими российскими и зарубежными технологами, оперативно внедряя в собственное производство результаты передовых исследований и технических разработок. Но даже выстроенные процессы должны периодически анализироваться и корректироваться. Именно поэтому предприятие стало участником нацпроекта и на производственном участке по изготовлению фруктово-ягодных (клубничных) наполнителей стартовал первый пилотный проект.
За шесть месяцев рабочей группе на пилотном потоке удалось оптимизировать производственные процессы, что сказалось повышением эффективности труда.
Так, например, для сокращения потерь рабочего времени проведена перепланировка участка переборки ягоды. Равномерно распределена загрузка операторов, перебирающих ягоды. Некоторые несложные операции совмещены.
«За счет снижения потолков нам удалось добиться более быстрого нагрева специальной комнаты для размораживания ягод. Теперь процесс дефростации проходит значительно быстрее, — рассказал руководитель проекта РЦК Артур Ханнанов. — Также мы применили систему грузооборота «FIFO» — принцип «Первым пришел — первым ушел». Он означает, что груз, первым пришедший на склад, первым и отгружается».
Запуск процесса непрерывных улучшений — первая достигнутая цель. Следующий этап — внедрение бережливого производства на всех производственных участках компании.
Национальный проект «Производительность труда», инициированный президентом РФ Владимиром Путиным, помогает предприятиям получать значительный экономический эффект, благодаря которому улучшаются условия труда и растут доходы работников.
Губернатор Самарской области Дмитрий Азаров неоднократно подчеркивал, что рост производительности труда на местных предприятиях — ключевой элемент опережающего экономического развития региона и важная часть Стратегии лидерства, разработанной по инициативе главы региона при участии жителей.
По итогам 2021 года Самарская область стала лидером в реализации нацпроекта «Производительность труда» и вошла в ТОП-5 в сфере организации работы региональных центров компетенций. В настоящее время в нацпроекте участвуют 116 предприятий региона. На 87 предприятиях благодаря внедрению принципов бережливого производства удалось повысить выработку и оптимизировать другие производственные процессы.
После наводнения. На что пошли в Германии ради ″Золота Рейна″ (фото) | Информация о Германии и советы туристам | DW
Герольштайн • «Райнгольд» — это слово заставляет биться чаще не только сердца любителей оперы, но и фанатов железнодорожной романтики, ведь «Золото Рейна» — это не только часть вагнеровского цикла «Кольцо нибелунга» — «Das Rheingold», но и легендарный пассажирский поезд класса «люкс» — «Rheingold», не менее знаменитый, чем «Красная стрела» в России или «Восточный экспресс»… в романе Агаты Кристи.
История поездов «Райнгольд» берет свое начало в конце 1920-х годов. Составленные из специально сконструированных пульмановских вагонов, до начала Второй мировой войны они курсировали между Нидерландами и Швейцарией (некоторое время — до Милана в Италии). Часть маршрута проходила по территории Германии вдоль Рейна — по местам, где происходят события средневековой эпической поэмы «Песнь о Нибелунгах», и на дне которого, если верить легенде, до сих пор где-то лежит клад — то самое золото, которое коварный Хаген утопил в этой реке.
Тот самый «Райнгольд». Фотографии
Поезд «Райнгольд» в Обервезеле на Среднем Рейне в 1960-х годах
Первый рейс нового «Золота Рейна» между Амстердамом и Базелем в мае 1962 года
Один из вагонов первого класса состава «Райнгольд»
Рекламная фотография поезда «Райнгольд» 1977 года
В панорамном вагоне — Ангела Меркель. Специальный рейс во время предвыборной кампании 2009 года
Вагон-ресторан в поезде «Райнгольд»
После войны Германская федеральная железная дорога (Deutsche Bundesbahn) запустила свой новый «Райнгольд».
В 1951-1962 годах на этом маршруте использовались стандартные вагоны трех классов, но затем были разработаны специальные кондиционированные — только первого класса, включая двухэтажный панорамный вагон, из которого можно было очень хорошо любоваться, например, живописными ландшафтами и романтическими замками Среднего Рейна.
«Золото Рейна» — роскошь и скорость
В общей сложности было заказано пять таких составов класса «люкс» — тем самым было положено начало возрождению железнодорожной легенды. Для эксплуатации новому «Золоту Рейна» потребовалось специальное техническое исключение, так как скорость пассажирских поездов на трассах Федеративной Республики времен развитого экономического чуда была ограничена 140 километрами в час. Машинисты «Райнгольда» имели право разгоняться до 160-ти!
Из расписания движения Deutsche Bahn эти поезда исчезли в 1987 году. Некоторые вагоны были модернизированы и переделаны для эксплуатации в составах EuroCity и Intercity. Некоторые стали музейными экспонатами или начали использоваться для специальных туристических рейсов.
Именно они изображены на фотографиях агентства dpa, сделанных в прошлые январские выходные.
«Райнгольд» — музейный поезд для романтиков
Поездки в вагонах «Райнгольд» в Германии сейчас предлагает туристическая фирма AKE Eisenbahntouristik, владеющая пятью такими историческими составами. В результате разрушительного наводнения, случившегося в регионе Айфель летом прошлого года, эти поезда оказались в ловушке — были отрезаны от железнодорожной сети Deutsche Bahn на стоянке в городе Герольштайн.
Стихийное бедствие привело тогда к остановке движения по Айфельской трассе (Eifelbahn) между Триром и Кельном — были разрушены мосты, размыты участки полотна, нарушены системы коммуникации. Восстановительные работы ведутся до сих пор, но еще далеки от завершения.
Остановка во время перегона вагонов «Райнгольд» в Айфеле
Необычное событие не могло не привлечь к себе внимание
После наводнения в Айфеле
Чтобы вызволить исторические составы из ловушки — ведь уже на подходе весна и начало нового сезона, было решено использовать старую железнодорожную ветку — так называемую Поперечную айфельскую трассу (Eifelquerbahn), выведенную из эксплуатации десять лет назад.
Трасса за эти годы уже успела местами зарасти, так что пришлось полотно расчистить, вырубить кусты и молодые деревья вдоль дороги, проверить состояние рельсов, мостов и провести другие работы для временной реактивации участка.
Ветка, проходящая по горному региону, к тому же изобилует подъемами и спусками, так что осуществлять перегон в Кайзерзеш, где начинается ближайшая действующая дорога, пришлось осторожно и медленно, за раз — лишь по несколько вагонов. Необычная акция, конечно же, привлекла интерес любителей железнодорожной истории и просто зевак.
В ближайшие дни вслед за вызволением из Герольштайна «Золота Рейна» Deutsche Bahn перегонит по этому маршруту пять своих дизельных локомотивов, которые также вынужденно простояли в Герольштайне целых полгода. Реактивировать старую трассу на постоянной основе пока не собираются, но власти сейчас рассматривают обращения местных жителей по этому поводу. Такого рода требования в Германии сейчас звучат достаточно регулярно и в самых разных регионах.
В ходе борьбы с изменением земного климата немцам предлагают более активно пользоваться общественным транспортом — и возвращение в эксплуатацию многочисленных железнодорожных веток, от которых концерн Deutsche Bahn отказался из-за нерентабельности, все чаще возвращается на повестку.
Смотрите также:
Вормс — город нибелунгов
Где это золото?
Чтобы прослушать все «Кольцо нибелунга», то есть цикл из четырех опер, созданных Рихардом Вагнером на основе «Песни о Нибелунгах», мифологии и саг, нужно около 16 часов. Для осмотра города Вормса, в котором происходят основные его события с участием Зигфрида, Кримхильды, Брунгильды и Хагена, на фотографии как раз погружающего сокровище нибелунгов в Рейн, потребуется меньше времени…
Вормс — город нибелунгов
Легенда
Впрочем, торопиться в Вормсе некуда. Небольшой город, основанный в IX веке на месте поселения еще древнеримских времен, живет тихой и размеренной жизнью.
Ощущение нынешней глубокой немецкой провинциальности на его улицах чередуется с ненавязчивыми напоминаниями о средневековых персонажах, получивших бессмертие в одном из наиболее известных эпических произведений человечества.Вормс — город нибелунгов
«Память мира»
Сюжет «Песни о Нибелунгах», записанной неизвестным автором в XII-XIII веках, разворачивается в этих и других местах вдоль Рейна в V столетии. В башнях городской стены Вормса сейчас находится музей с интерактивной экспозицией, в который мы еще заглянем. В 2009 году этот героический эпос был включен ЮНЕСКО в программу «Память мира» — список мирового нематериального культурно-исторического наследия.
Вормс — город нибелунгов
Множественное число
Нибелунги и бургунды в Вормсе — на каждом шагу и углу. Вот, например, Кольцо Нибелунгов (Nibelungenring). Его можно пройти неспешным темпом минут за 15. Хватит как раз, чтобы прослушать одну увертюру из Вагнера.
На этой улице с оживленным движением находится вполне реальная школа Нибелунгов (Nibelungen-Realschule), построенная в архитектурном стиле нибелунгов…Вормс — город нибелунгов
Имена на карте
Предварительно изучив карту города или просто без всякого плана прогуливаясь по нему, можно по названиям улиц составить почти весь список основных героев эпоса, а многие площади, улицы, дворики и дорожки охраняют современные пластиковые драконы разных боевых раскрасок. По всему городу на деньги спонсоров их расставлено более трех десятков, тщетно ожидающих своих Зигфридов.
Вормс — город нибелунгов
Кровь дракона
Среди многочисленных современных памятников по мотивам древнего эпоса в Вормсе особо выделяется эта зеркальная капля с зеленым листом, установленная около городского театрально-культурного центра. Как гласит легенда, лист, упавший между плеч Зигфрида, когда рыцарь купался в крови убитого им дракона, оставил это место уязвимым, остальная же его кожа ороговела, став непробиваемой.

Вормс — город нибелунгов
Гордость и смерть
Через много лет Зигфрид, муж Кримхильды, был убит Хагеном, когда наклонился испить воды во время охоты. Он вероломно поразил его копьем в то самое место на спине. Хаген, вассал бургундского короля Гунтера, отомстил Зигфриду за слезы своей королевы Брюнхильды после ссоры двух королев около входа в Вормсский собор, когда тайное стало явным — то, что первым Брюнхильдой овладел не Гунтер, а Зигфрид…
Вормс — город нибелунгов
Любовь и ненависть
Как известно из эпоса, Зигфрид под покровом ночи и плаща-невидимки помог Гунтеру после неудавшейся брачной ночи завладеть непобедимой девой, в результате лишившейся своей магической силы и ставшей обычной женщиной. В память о тайной победе над Брюнхильдой Зигфрид взял ее кольцо и пояс, позже ставшие доказательствами в так называемом споре двух королев.
Вормс — город нибелунгов
Знаменитые ступени
Брюнхильда считала Зигфрида, рыцаря родом из Ксантена, вассалом своего мужа — бургундского короля Гунтера, чего не могла стерпеть Кримхильда, заявившая Брюнхильде, что она сама — такая же королева.
Спор обострился около этого входа в собор — за право вступить в него первой. Кримхильда соперницу не пропустила, а позже в подтверждение своих слов предъявила кольцо и пояс.Вормс — город нибелунгов
Романский собор
Древний Вормсский собор, наряду с храмами в Шпайере и Майнце входящий в число важнейших памятников романской архитектуры в Германии, ежегодно оказывается в центре театрального Фестиваля Нибелунгов (Nibelungenfestspiele Worms), проходящего перед ним на сцене под открытым небом.
Вормс — город нибелунгов
Зигфрид под открытым небом
Фестиваль Нибелунгов впервые прошел в Вормсе в 1937 году. До 1939 года в программе значились спектакли, поставленные по драме Фридриха Геббеля «Нибелунги». Попытки возобновить его в первые десятилетия после Второй мировой войны длительного успеха не имели. Нынешний фестиваль ведет свою историю с 2002 года. Один из спектаклей первых лет — «Женщины Зигфрида», поставленный Дитером Веделем.

Вормс — город нибелунгов
Историческое место
Сейчас Фестиваль Нибелунгов проходит в городе каждое лето в июле или августе. В этой сцене из спектакля 2006 года Зигфрид борется с саксонцами. С момента возобновления фестиваля его спектакли перед исторической кулисой — Вормсским сбором — увидело более 230 тысяч посетителей и миллионы телезрителей.
Вормс — город нибелунгов
В соборе
Вормсский собор, которому мы посвятим отдельный более подробный фоторепортаж, был не только местом ссоры двух королев, но и некоторых других сцен героического эпоса. На этом рисунке работы швейцарского и английского художника Иоганна Генриха Фюссли 1805 года Кримхильда около тела Зигфрида обвиняет Хагена и Гунтера в его убийстве.
Вормс — город нибелунгов
«Я не могу иначе»
На площади между храмом и ратушей установлен фонтан Зигфрида. Не отходя далеко от собора, отметим, что Вормс, провинциальный ныне городок, когда-то был местом важных исторических событий.
Его сделал своей зимний резиденцией Карл Великий. Здесь был заключен Вормсский конкордат. Мартин Лютер произнес на рейхстаге свои знаменитые слова: «На том стою. Я не могу иначе. Да поможет мне Бог. Аминь».Вормс — город нибелунгов
Смычок и меч
Помимо основных действующих лиц важную роль в «Песне о Нибелунгах» играет рыцарь и музыкант-шпильман Фолькер из Альцая, ныне приветствующий туристов с фасада ратуши. В бою смычком своей скрипки он мог орудовать не хуже, чем мечом.
Вормс — город нибелунгов
Стиль нибелунгов
Художественные граффити в Вормсе тоже напоминают об эпосе. На стене этого дома дракон, охраняющий золото Рейна, изображен на фоне монументальной «Башни Нибелунгов». Ее возвели перед въездом на мост через реку в 1897-1900 годах по проекту вормсского зодчего Карла Хофмана, создавшего местный архитектурный стиль нибелунгов — смесь неороманского стиля и модерна.
Вормс — город нибелунгов
Башня на Рейне
Так эта 53-метровая башня выглядит на самом деле.
Путь через мост на 444-м рейнском километре, который она символически охраняет, лежит в Дармштадт и Франкфурт-на-Майне. Внешне башня напоминает бывшие Майнцские ворота средневековой городской стены. В 1899 году главный архитектор города Карл Хофман получил орден Святого Станислава из рук посетившего Вормс Николая II.Вормс — город нибелунгов
Вокзал и эпос
Вормсский вокзал, в Княжеском павильоне которого принимали русского царя и многих других коронованных особ, приезжавших в эти исторические места, также возведен в стиле нибелунгов. Один из его порталов украшают резные изображения битв, описанных в средневековом эпосе. В этом же стиле в городе также были построены водонапорная башня, лазарет, портовое управление и еще несколько зданий.
Вормс — город нибелунгов
Мегалит на погребальном холме
В начале XIII века об эпосе стали постепенно забывать. В конце XV века император Максимилиан, женатый на бургундской принцессе, распорядился записать песню для потомков.
В свою очередь, его отец Фридрих III предпринял попытку отыскать останки легендарного драконоборца, выделив деньги на двести землекопов. Символическую «Могилу Зигфрида» с многотонным мегалитом открыли в Вормсе в 2003 году.Вормс — город нибелунгов
Перед музеем
«Могила Зигфрида» находится около Музея Нибелунгов под присмотром этой хранительницы. Слева от нее в стене проделан небольшой низкий ход, которым в средние века пользовались рыбаки, возвращавшиеся с уловом, чтобы не было необходимости открывать для них большие ворота. По всей видимости, через него прошел в город Мартин Лютер, прибывший на рейхстаг.
Вормс — город нибелунгов
По следам Лютера
Вероятно, через этот ход в стене в 1521 году прошел в город Мартин Лютер. Мы последуем его примеру, направляясь в музей. Кстати, Мартину Лютеру и Реформации в городе посвящен большой монумент, около которого мы еще побываем, но в другом репортаже из Вормса.
Вормс — город нибелунгов
Старая стена
Музей Нибелунгов, открытый в 2001 году, расположен в двух башнях XII века и современной пристройке.
Из одной в другую с внутренней стороны стены ведет боевой ход, где около бойниц установлены репродукции панорам Вормса разных столетий. Осматривать музей следует обязательно с аудиогидом, чтобы получить как можно больше впечатлений от увлекательной интерактивной экспозиции.Вормс — город нибелунгов
Все о нибелунгах
В первой башне рассказывается о возникновении эпоса, историческом контексте, а также его превращении в легенду общегерманского значения — национальный миф. На гигантском веретене истории здесь находится более тысячи светящихся изображений. Во второй башне слово берет рассказчик легенды, а также говорится о повседневной и культурной жизни Средневековья, нашедших свое отражение в эпосе.
Вормс — город нибелунгов
P.S.
Много воды утекло в Рейне со времен, когда Хаген в тайном месте погрузил в него загадочное сокровище — сто телег, наполненных золотом и драгоценностями. Много поколений пыталось его найти.
Впрочем, на самом деле, заново его обнаружили еще в 1755 году, когда была найдена рукопись забытого эпоса — настоящий клад нибелунгов.Автор: Максим Нелюбин
Главные достопримечательности Белгорода
Сергей Тиняков
в восторге от Белгорода
Профиль автораВ Белгород я попал случайно: приехал в гости к родственникам в Орел, быстро заскучал и вспомнил, что хотел посмотреть Белгород.
Я слышал о городе много положительных отзывов. Друзья и знакомые рассказывали о чистых улицах, огромном музее-диораме, хороших ресторанах и низких ценах. Я отправился в небольшое путешествие в Белгород, который находится всего в 3 часах пути от Орла. Здесь оказалось по-европейски комфортно и спокойно.
Для статьи я составил маршрут длиной 5,9 километра. Он проходит через главные достопримечательности города: филармонию в необычном здании и драмтеатр, литературный и художественный музеи, солнечные часы и смотровую площадку с огромным памятником князю Владимиру.
Что вы увидите
Как добраться до Белгорода
На самолете из Москвы в Белгород летают авиакомпаниями «Россия», S7, Utair и Red Wings. Время в пути всего 1,5 часа. На февраль 2022 года самый дешевый билет в одну сторону стоит 2280 Р.
Из Санкт-Петербурга прямые рейсы есть только у Pegas Fly. Билет в одну сторону на февраль 2022 года стоит от 4304 Р. Лететь 2 часа. Еще прямые перелеты в Белгород есть из Волгограда, Екатеринбурга, Казани, Калининграда, Краснодара, Минеральных Вод, Сочи и Сургута.
Расписание рейсов на сайте аэропорта Белгорода
Аэропорт расположен в черте города — до центра от него всего 7,5 километра. На сайте аэропорта пишут, что приехать в город можно на троллейбусах № 1 и 4, которые идут до железнодорожного вокзала, и на автобусах № 15, 17 и 25. На самом деле вариантов значительно больше: на «Яндекс-картах» указаны и другие маршруты. Время в пути — 30—40 минут. Проезд стоит 25 Р при оплате наличными и 20 Р — по банковской карте.
Поездка на такси займет 15 минут и обойдется в 150 Р.
Где отдохнуть за рубежом в 2022 году?
Укажите свои предпочтения, и мы подберем подходящие вам страны, в которые пускают российских туристов
ВыбратьНа поезде. Из Москвы в Белгород добираются на «Ласточках» за 7,5 часа или на фирменном ночном поезде № 071В «Белогорье» за 9,5 часа. Билет на «Ласточку» на февраль 2022 года в экономкласс стоит от 961 Р, в бизнес — от 2575 Р. Место в плацкарте обойдется в 2537 Р, в купе — 3496 Р. Перед покупкой билетов проверьте станцию отправления: «Ласточки» идут с Курского вокзала, а обычные поезда, в том числе и «Белогорье», — с Восточного вокзала, который открыли в мае 2021 года.
Из Санкт-Петербурга в Белгород ходят три состава. Самый быстрый — двухэтажный поезд № 28У — отправляется с Московского вокзала вечером и идет 17 часов. Билет в сидячий вагон стоит 1499 Р, в купе — 2715 Р, плацкартных и мягких вагонов нет. Если хотите поехать в плацкарте или СВ, выбирайте поезда № 81А или 119А, но, на мой взгляд, это не имеет смысла, так как едут они дольше, а цены выше: плацкартный вагон — 2610 Р, купе — 3462 Р, СВ — 6854 Р.
Я ездил в Белгород из Орла на «Ласточке». Ехать недолго — чуть больше 3 часов, поэтому я решил сэкономить и взял места со скидкой. Они расположены рядом с туалетами. По моему опыту, никакого дискомфорта это не создает, а места стоят на 200 Р дешевле: за билет я заплатил 736 Р.
От железнодорожного вокзала до начальной точки маршрута — филармонии — можно дойти пешком за 10—15 минут.
Автобусы из Москвы в Белгород отправляются от автостанции рядом с метро «Варшавская» или «Новоясеневская» и с автовокзала «Саларьево». Билет в одну сторону стоит 1000 Р. Время в пути — 10—11 часов. Автовокзал в Белгороде находится рядом с аэропортом.
«Ласточка», которая отправляется в Москву с железнодорожного вокзала БелгородаМаршрут
Ежегодно в филармонии проводят несколько музыкальных фестивалей. Самый известный — BelgorodMusicFest, на него съезжаются исполнители со всего мира. В 2020 году гостем фестиваля стал режиссер и музыкант Эмир Кустурица.
Состоится ли мероприятие в 2022 году, организаторы пока не сообщают.
Билет на концерт органной музыки или местного хора стоит от 550 Р, на выступление симфонического оркестра — от 400 Р, на лекцию о духовной музыке — 300 Р. Посмотреть всю афишу и купить билеты можно на сайте филармонии. Я был в Белгороде всего полтора дня, поэтому на концерт сходить не успел.
Еще по филармонии водят экскурсии: рассказывают об истории учреждения, показывают сцену, костюмерные комнаты и музыкальные инструменты, знакомят с артистами. Осмотр завершают небольшим концертом. В кассе филармонии мне сказали, что пока экскурсии приостановили из-за коронавирусных ограничений, и посоветовали узнавать об их начале в марте 2022 года.
У филармонии есть программа лояльности со скидками на билеты от 5%Литературный музей расположен в здании 19 века, которое раньше принадлежало местному купцу Василию Селиванову. Дом был центром большой усадьбы, она занимала целый квартал. В разное время в нем располагались гимназия, ресторан, клуб железнодорожников, коммунальные квартиры и офисы.
Литературный музей переехал сюда в 1999 году.
Сайт литературного музея
Основная экспозиция рассказывает о знаменитых белгородцах: философе и публицисте Николае Страхове, писателе и журналисте Арнольде Гессене, актере Михаиле Щепкине. Взрослый билет на такую экспозицию стоит 49 Р.
В музее много временных выставок. Например, до 16 марта 2022 года работает экспозиция «Лето с Чеховым», посвященная писателю и его родному Таганрогу. Билет для взрослого на временную выставку стоит 36 Р.
Для пенсионеров и людей с инвалидностью цена на все экспозиции одинаковая — 25 Р. Дошкольники, школьники и студенты не из Белгородской области могут бесплатно посетить музей во вторую и четвертую среду месяца.
На экскурсию надо записываться заранее по телефону +7 4722 27-39-61 или на сайте музея. Экскурсия по основной экспозиции длится 1,5 часа, по временной — 45 минут. Если группа больше 15 человек, взрослые посетители основной выставки платят 36 Р, временной — 25 Р.
Для групп менее 15 человек цена фиксированная: 551 Р на основной экспозиции и 365 Р на временной, независимо от количества участников.
Еще в музее проводят развлекательные программы с мастер-классами для детей, а для взрослых — костюмированные балы в стиле 19 века, на которых знакомят с правилами этикета и обучают танцам. Билет на детское мероприятие стоит 122 Р, на бал — 484 Р. Их продают на сайте музея.
Здание музея — единственная в Белгороде городская усадьба в классическом стиле. Музей работает со вторника по воскресенье с 10:00 до 19:00, в среду — с 11:00 до 20:00Музей средневекового военного дела находится на улице Князя Трубецкого — на первом этаже обычной многоэтажки. Его основали местные энтузиасты из клуба «Хранители», которые занимаются исторической реконструкцией. Экспонаты музея — средневековые доспехи, оружие и одежду — они создают своими руками и сами проводят экскурсии.
Группа музея во «Вконтакте»
Экспонаты можно не только осмотреть, но и проверить в деле: надеть доспехи и одежду, выстрелить из лука, бросить копье.
Экскурсоводы расскажут о средневековом быте, культуре и военном деле, развеют исторические мифы. Например, есть мнение, что в доспехах воин был очень неповоротливым и не мог сам слезть с коня. Но исследования показали, что это не так. Доспехи подгоняли по фигуре, и рыцарь мог свободно двигаться и даже выполнять какие-то акробатические упражнения. В подтверждение на экскурсии показывают, что в боевой перчатке можно взять ручку и написать текст.
На «Трипэдвайзоре» туристы жалуются на небольшие размеры помещения, в котором расположен музей, и плохую вентиляцию, но считают, что ради интересной экскурсии с этим можно смириться, и советуют провести здесь не меньше двух часов.
В музей можно попасть только по предварительной записи и в составе экскурсионной группы. Договариваются о посещении по телефону +7 919 282-19-13. Для групп от пяти посетителей билет стоит 250 Р с человека. Если посетителей меньше, стоимость обсуждают индивидуально.
В музее включают средневековую музыку.
Источник: сообщество Музея средневекового военного дела во «Вконтакте» Многие доспехи можно примерить. Источник: сообщество Музея средневекового военного дела во «Вконтакте»Смоленский собор — один из старейших храмов в Белгородской области. Его построили в 18 веке в честь иконы Смоленской Богоматери. Во время Великой Отечественной войны собор сильно пострадал от обстрелов. Затем его дважды хотели взорвать, а в 1980-х годах — переделать под органный зал. Здание вернули церкви в 1991 году.
Сейчас здесь регулярно проводят службы, работает библиотека и воскресная школа. Собор открыт ежедневно с 07:00 до 19:00, в воскресенье и праздники — с 06:00 до 19:00. Вход бесплатный. Расписание богослужений есть на сайте собора.
Рядом с собором есть тихий сквер со скамейками, в котором приятно отдохнуть во время прогулки по городуСолнечные часы создали по образу часов, которые в средние века устанавливали на городских площадях. В путеводителях пишут, что они определяют время с погрешностью в 10 минут, но на самом деле разница больше из-за отличия солнечного времени от поясного.
Еще положение тени стрелки трудно рассмотреть из-за местных жителей и туристов, которых всегда много рядом с часами. Вечером здесь включают подсветку и проецируют на циферблат карту звездного неба.
Солнечные часы находятся на пешеходной улице 50-летия Белгородской области. Там есть еще одна интересная скульптура — дворник и кот Васька. Ее, как и часы, создал местный мастер Тарас Костенко. Белгород регулярно входит в рейтинги самых благоустроенных и комфортных для жизни городов России, а памятник отмечает вклад дворников в это.
По Белгороду и правда приятно гулять: в городе много зелени, ровные и широкие тротуары со съездами для детских и инвалидных колясок, в центре — мало машин, отреставрированные фасады домов и единый дизайн-код для вывесок.
Я пришел к часам в пасмурный день, поэтому тень от стрелки не увидел Местные назначают у памятника встречи, а туристы гладят кота: считается, что это приносит удачуСоборная площадь — главная площадь в Белгороде.
Здесь проходят праздники, ярмарки и концерты, зимой устанавливают елку. Площадь выложена плиткой, в центре находится медный круг с картой области, а по периметру — металлические гербы ее районов и городских округов. В Белгороде кованые изделия встречаются и в других местах: я видел необычные прямоугольные люки с гербом и названием города на Гражданском проспекте.
На площади находится несколько достопримечательностей: драмтеатр, часовня в честь князя Владимира, мемориальный комплекс «Вечный огонь» и здание областного правительства. В 2013 году на площади установили стелу «Город воинской славы», а памятник Ленину, который стоял на ее месте, перенесли на Народный бульвар.
Белгородский драмтеатр назвали в честь знаменитого актера Михаила Щепкина. В репертуаре театра российские и зарубежные классические постановки, современные и детские спектакли по произведениям Николая Лескова, Уильяма Шекспира и даже Захара Прилепина.
Афиша на сайте драмтеатра
Билеты на премьерные спектакли стоят 500—1000 Р, на вечерние — 250—500 Р, на детские — 200 Р.
Посещение выступлений на малой сцене и в фойе обойдется в 500 Р. План зрительного зала и режим работы кассы есть на сайте театра. Местные говорят, что билеты лучше покупать за несколько месяцев, потому что они разлетаются моментально, особенно на детские представления.
На третьем этаже театра есть небольшой музей. В нем представлены костюмы, эскизы декораций, театральная мебель, фотографии и программки. Отдельный стенд посвящен жизни и творчеству Михаила Щепкина. Договориться об экскурсии можно по телефону +7 951 139-11-35. Цену обсуждают индивидуально — в зависимости от количества участников. Еще по музею есть виртуальный тур.
Вид на Соборную площадь из окна гостиницы «Белгород», в которой я жил. Просторный номер с современным ремонтом обошелся в 2800 Р за сутки Раньше на месте театра стоял Рождество-Богородицкий женский монастырь, который разрушили в середине 20 века. Сегодня о его существовании напоминает часовня в честь князя ВладимираВ художественном музее представлено советское искусство 20 века: живопись, графика, скульптура, декоративно-прикладное творчество.
Я не большой поклонник искусства, но белгородский музей мне понравился. В понедельник днем я был единственным посетителем. К счастью, сотрудницы не ходили за мной по пятам, как это часто бывает в других музеях, и я смог не спеша все посмотреть.
На входе в музей стоит баннер, который предлагает воспользоваться аудиогидом, но ссылка ведет на несуществующий ресурс, поэтому я запустил приложение izi.travel. Пользоваться им удобно: я подходил к картине или скульптуре, искал ее в путеводителе и запускал аудиодорожку.
Среди авторов работ есть Андрей Васнецов — внук известного русского художника Виктора Васнецова, Дмитрий Налбандян — автор парадных портретов первых лиц советского государства, Гуго Манизер — сын знаменитого советского скульптора Матвея Манизера, который оформлял станции метро «Партизанская» и «Площадь Революции» в Москве. О других памятниках, созданных Манизером-старшим, я рассказывал в статьях про Самару и Элисту.
Билеты на выставки продают отдельно.
Для взрослых вход на постоянную экспозицию стоит 41 Р, в выставочный зал — 84 Р, на временные выставки на первом и третьем этажах — по 19 Р. Экскурсия обойдется в 36 Р с человека, но для этого надо собрать группу более 15 посетителей. Для студентов, школьников и дошкольников действуют скидки. Все цены есть на сайте музея, там же продают билеты и записывают на экскурсии. Музей открыт с 10:00 до 19:00, в четверг — с 11:00 до 20:00. Вторник — выходной.
стоит посещение постоянной экспозиции художественного музея
При музее работает художественный салон. Там продают картины, керамику, кукол ручной работы, украшения, сумки, сувенирные тарелки и кружки с символикой Белгорода. Брелок стоит 150 Р, тарелка — 250 Р, подвеска — 300 Р, кукла — 500 Р, картина — от 5000 Р.
Музей-диорама «Курская битва. Белгородское направление» рассказывает о крупнейшем танковом сражении Великой Отечественной войны — битве под Прохоровкой. Чтобы передать масштаб события, художники использовали передний план площадью 550 м² с макетом местности, настоящим вооружением и военной техникой и фоновую картину площадью 1000 м² — это в три раза больше экрана в кинотеатре IMAX.
На сайте музея пишут, что белгородская диорама — крупнейшая в Европе. По версии пользователей «Трипэдвайзора», это городская достопримечательность № 1.
Сайт музея-диорамы
Летом 2020 года диораму закрыли на ремонт. Строители заменили коммуникации, а художники приступили к реставрации живописного полотна. Музей обещают оснастить современными технологиями: мультимедиапроекторами, дополненной реальностью и интерактивными пространствами.
Диораму планировали открыть 9 мая 2021 года, но в сентябре, когда я был в Белгороде, она еще не работала. Я осмотрел здание снаружи и погулял по музею военной техники под открытым небом. Это бесплатно.
Другие экспонаты постоянной выставки «На белгородском направлении» — произведения изобразительного искусства, фотографии, документы, личные вещи участников войны — перевезли в здание на улице Мичурина. В отзывах туристы пишут, что экспозиция совсем небольшая, на осмотр хватит 10 минут.
В здании работают и временные выставки.
Например, до 10 февраля 2022 года действует экспозиция «Крылья Родины», которая рассказывает об эволюции военной формы военно-воздушных сил.
Билет в музей для взрослых стоит 73 Р, для школьников и студентов — 47 Р, для дошкольников — 8 Р. Экскурсии проводят для групп от 10 человек. Музей открыт с 10:00 до 19:00, есть перерыв с 14:00 до 15:00. В четверг работает с 11:00 до 20:00, а перерыв — с 15:00 до 16:00. Понедельник — выходной.
73 Рстоит билет в музей-диораму
В сентябре 2021 года у входа в здание диорамы стояла большая табличка с надписью «Ремонт» Рядом с диорамой выставлены пушки, самоходные орудия, гаубицы, танки, «Катюша», полевая кухня и самолетПарк Победы посвящен Великой Отечественной войне: здесь установлены бюсты героев Советского Союза, памятник Георгию Жукову и стела в честь награждения Белгорода орденом Отечественной войны первой степени.
По парку приятно гулять: он ухоженный и чистый. Там есть пешеходные и велодорожки, скамейки, детская площадка и светомузыкальный фонтан со скульптурой льва — символом Белгорода.
Летом в парке выступают артисты филармонии и проводят танцевальные вечера. Вдоль реки Везёлки оборудована набережная с деревянным настилом, местами для отдыха и спусками к воде.
С 15 апреля по 15 октября у реки работает прокат лодок. Горожан и туристов катают с 11:00 и до захода солнца. Получасовая поездка стоит 250 Р. Лодка вмещает троих взрослых и одного ребенка. Еще можно арендовать велосипед: взрослый стоит 150 Р в час, детский — 100 Р.
В теплое время года по выходным на набережной устраивают бесплатные киносеансы. В репертуаре советская классика: «Старики-разбойники», «Девчата», «Любовь и голуби». В 2021 году показы прошли в рамках фестиваля «Белгородское лето».
В парке есть свободная библиотека, ее полки сделаны в форме слова «Читай». Можно взять понравившуюся книгу или оставить своюПамятник князю Владимиру стоит на Харьковской горе в северной части города. Его установили в честь 1000-летия крещения Руси и 55-летия освобождения Белгорода от немецких войск.
В правой руке князь держит крест, а в левой — щит, тем самым благословляя и защищая город. Белгородский монумент — крупнейший в мире памятник князю Владимиру, его высота — 22 метра. Это больше, чем у аналогичного монумента в Киеве.
Правила въезда на Украину для россиян в 2022 году
Рядом с памятником есть смотровая площадка с отличным видом на город. Туристов там мало — можно сделать фотографии, ни на что не отвлекаясь. Наверху ветрено, поэтому даже в теплую погоду советую брать с собой куртку.
Из центра к монументу и смотровой площадке я дошел по проспекту Ватутина. Дорога все время в гору, по пути есть тротуары, а к памятнику ведет пешеходный мост. Подъем несложный, но если вы с детской коляской, рекомендую поехать на троллейбусе № М8 или на такси. Поездка через «Яндекс-гоу» займет 5 минут и будет стоить 100 Р.
Владимира считают основателем Белгорода, но документальных подтверждений этому нет В солнечную погоду Белгород оправдывает свое название: фасады многих зданий выкрашены в светлые тонаДетали
Где поесть.
По дороге от железнодорожного вокзала я зашел в ресторан Forest Grill. Заказал средиземноморский суп с креветками и семгой за 480 Р, бедро индейки с грибами и яблочным кремом за 520 Р, картофель фри за 160 Р и чай с сосновыми шишками за 450 Р. Полное меню есть в инстаграме заведения. Обед получился дорогим, но стоил того: вкус блюд был просто потрясающий. Даже хлеб я съел с удовольствием: ломтики слегка обжарили на гриле.
А вот от обслуживания впечатления неоднозначные. Официант хорошо ориентировался в меню, но работал не спеша: через 20 минут ожидания счета я не выдержал и расплатился в баре.
Чай подают с шишками и вареньемВ сетевом кафе «Старик Хинкалыч» рядом с Соборной площадью подают грузинскую кухню. Салат с помидорами и домашней брынзой стоит 245 Р, харчо с говядиной — 185 Р, долма — 320 Р. Полное меню можно посмотреть на сайте сети или в группе во «Вконтакте». Еще там публикуют новости и информацию о скидках. Интерьер оформлен надписями на грузинском языке и картинами с национальными сюжетами.
Заведение открыто с 10:00 и подойдет для завтрака.
Я заказал классические грузинские блюда: ассорти хинкали с разными начинками и хачапури по-аджарски.. Цены низкие: хинкали стоят 35—45 Р за штуку, мини-хачапури — 140 Р. Еще я взял чай за 150 Р, его подают в глиняном чайнике с глиняными чашками. Через открытую кухню я наблюдал, как повара замешивают тесто и готовят начинку для хинкали. Правда, делали они это без масок и перчаток. Заказ принесли через 10 минут. Еда мне понравилась, особенно впечатлили хинкали с грибами.
Начинку можно определить по форме хвостика: треугольник — с сыром, ромб — с бараниной и зеленью, овал — с вишней и творогом, восьмерка — с грибамиРаковарня Red Rak находится на втором месте в списке лучших ресторанов Белгорода по версии пользователей «Трипэдвайзора», но меня заведение разочаровало. На мой взгляд, владельцы не смогли определиться с концепцией: по обстановке это скорее пивная, но в меню представлены дорогие блюда вроде супа с раковыми шейками за 690 Р и морских гребешков в белом вине за 850 Р.
Меню написано на стене, бумажный вариант мне не предложили.
Я был в ресторане с таким же названием в Самаре — там мне понравилось гораздо больше. Как мне рассказала официантка, хозяева заведений действительно знакомы, но развивают бизнес независимо друг от друга.
В небольшом помещении было душно: вентиляция и кондиционер не работалиЧто привезти из Белгорода. Во многих сувенирных лавках продают гончарные изделия: посуду, фигурки животных и птиц, свистульки. Если хотите понаблюдать за процессом их производства, съездите на завод «Борисовская керамика» в 50 километрах от Белгорода. Экскурсии проводят только в рабочие дни — с 08:00 до 12:00 и с 13:00 до 17:00. Записаться можно по телефонам +7 47246 5-00-71, +7 47246 5-02-22 или по электронной почте [email protected].
Стоимость экскурсии для группы до пяти человек — 800 Р за всех, для группы от шести до десяти человек — 1500 Р, для группы от 11 человек — 150 Р без сувенира или 230 Р с сувениром с каждого посетителя.
Получасовой мастер-класс на гончарном круге стоит 1000 Р с человека.
При музее работает магазин. Горшок для жаркого в нем стоит 228 Р, тарелка — 95 Р, фигурка птицы — 246 Р. Полный каталог изделий есть в интернет-магазине. В Белгороде фирменный магазин «Борисовской керамики» расположен в подземном переходе через проспект Богдана Хмельницкого. Время работы — с 09:00 до 19:00, без перерыва и выходных.
Еще из Белгорода туристы везут конфеты местной фабрики «Славянка». Фирменные магазины есть рядом с Соборной площадью, на проспекте Славы и у железнодорожного вокзала. Шоколадный батончик «Степ», по вкусу похожий на «Сникерс», стоит 21 Р за штуку, конфеты «Левушка» — 344 Р за килограмм, конфеты «Чудо» — 540 Р за килограмм. Подарочный набор, посвященный Белгороду, — 400 Р.
Популярен среди туристов и бальзам «Белогорье». Напиток создан на основе 26 местных трав: зверобоя, мелиссы, душицы, чабреца, а также меда и натуральных соков. Обычно его добавляют в чай по 1—2 чайные ложки.
Бальзам продают в продуктовых магазинах. Бутылка 0,5 литра стоит 400 Р.
Траты в Белгороде за день — 2323 Р
| Обед в ресторане | 1610 Р |
| Конфеты | 300 Р |
| Экскурсия по Музею средневекового военного дела | 250 Р |
| Билет в Белгородский художественный музей | 163 Р |
Обед в ресторане
1610 Р
Экскурсия по Музею средневекового военного дела
250 Р
Билет в Белгородский художественный музей
163 Р
Мы ищем людей, которые путешествуют самостоятельно. Если вы организовывали отпуск по России, ближнему зарубежью, популярным курортам или более экзотическим местам — поделитесь с нами опытом.
Проект небольшого дома 8×9 с 2 спальнями
Описание
Просмотры сообщений: 2749
Проект небольшого дома 8х9 метров с 2 спальнями 27х30 футов Полноплановая терраса с крышей.
Планы этажей в формате PDF.
Проект дома 8×9 План первого этажа Имеет:
Во-первых, парковка автомобилей находится снаружи дома. Красивый вход с террасы перед домом. Когда мы идем от входной двери, небольшая гостиная 3,4×3,9 метра очень подходит для этого дома, она красивая и современная.Светлая Кухня с обеденным столом 3,8х3,5 метра, чистая и красивая. Ванная комната мульти размером 2,2х1,6 метра. Стиральная машина находится перед санузлом 1,6х1 метр, кладовая рядом с санузлом. В этом доме есть лестница на террасу.
Размер главной спальни 3,5х3,5 метра, в ней есть большое застекленное окно с двуспальной кроватью, письменный стол для макияжа и встроенный шкаф. Спальня 2 размером 3,5х3,3 метра с гардеробной.
Черепица:
Наконец, тип крыши Terrace сделан из бетона, который покрывает потолок из гипсокартона.Это делает дом выглядеть просто и современно.
Внешний дизайн небольшого дома 8×9:
Аналогично цвету границы крыши мы выбираем сочетание темного и светлого цветов вместе с большой стеклянной дверью и окном, чтобы дом выглядел таким красивым и современным.
:
-Автостоянка и сад
-Гостиная,
-Столовая
-Кухня
-2 Спальни, 1 ванная
-Кладовая
-Прачечная
УБЕДИТЕСЬ, ЧТО У ВАС ЕСТЬ бесплатные образцы планов
Подробнее см. в планах:
Купить план этого дома:
— Фундаментная колонна и план балки
— План этажа с подробным описанием, план фасада с размерами.
— Файл Sketchup можно использовать в метрах и футах
— Файл Autocad (Все планы компоновки)
* В комплекте файлы Autocad 2010 и Sketchup 2017
СвязанныеДизайн небольшого дома 8×9 с 2 спальнями и террасой на крыше
Описание
Просмотры сообщений: 2997
Дизайн небольшого дома 8×9 метров 27×30 футов с 2 спальнями, террасой и крышей Полные планы Планы этажей в формате PDF.
Во-первых, парковка автомобилей находится снаружи дома. Красивый вход с террасы перед домом. Когда мы идем от входной двери, небольшая гостиная 3,4×3,9 метра очень подходит для этого дома, она красивая и современная. Светлая Кухня с обеденным столом 3,8х3,5 метра, чистая и красивая. Ванная комната мульти размером 2,2х1,6 метра. Стиральная машина находится перед санузлом 1,6х1 метр, кладовая рядом с санузлом.В этом доме есть лестница на террасу.
Размер главной спальни 3,5х3,5 метра, в ней есть большое застекленное окно с двуспальной кроватью, письменный стол для макияжа и встроенный шкаф. Спальня 2 размером 3,5х3,3 метра с гардеробной.
Черепица:Наконец, тип крыши террасы изготовлен из цементной черепицы, которая покрывает потолок из гипсокартона. Это делает дом выглядеть просто и современно.
Внешний дизайн небольшого дома 8×9 : Аналогично цвету границы крыши мы выбираем сочетание темного и светлого цветов вместе с большой стеклянной дверью и окном, чтобы дом выглядел таким красивым и современным.
-Автостоянка и сад
-Гостиная,
-Столовая
-Кухня
-2 Спальни, 1 ванная
-Кладовая
-Прачечная
УБЕДИТЕСЬ, ЧТО У ВАС ЕСТЬ бесплатные образцы планов
Купить план этого дома:
Это план в формате PDF, доступный для мгновенной загрузки.
Дом с 2 спальнями и 1 ванной комнатой с мини-комнатой для стирки и сушки.
Размер здания: 27 футов в ширину, 30 футов в глубину, 8 × 9 метров
Тип крыши: Террасная крыша (цементно-бетонная или другой поддерживаемый тип)
Фундамент: Бетон или другой поддерживаемый материал
Обратный план см. в другой модели.
ПЛАНЫ ВКЛЮЧАЮТ:
План расположения фундамента, балки, колонны
Габаритный план наружной / внутренней стены
План балки крыши
План крыши
Планы фасадов
2 плана поперечного сечения
План расположения потолочного освещения
Вы покупаете файл PDF для этого плана.
Распечатайте его, когда захотите, столько раз, сколько захотите.
План печатает на бумаге формата A4.
ПОЛЬЗОВАТЕЛЬСКИЕ ПЛАНЫ:
К сожалению, в настоящее время я не могу создавать индивидуальные планы.
Эти планы были созданы мной и не были подготовлены и проверены лицензированным архитектором и/или инженером.
Я не представляю и не подразумеваю себя лицензированным архитектором и/или лицензированным инженером.
Наслаждайтесь этими планами, но используйте их по своему усмотрению.
Доставка Мгновенная загрузка
Ваши файлы будут доступны для скачивания после подтверждения оплаты. Вот как.
Я не принимаю возврат, обмен или отмену. Но, пожалуйста, свяжитесь со мной, если у вас есть какие-либо проблемы с вашим заказом.
Другое План дома:
СвязанныеПлан дома 9,2х8,5 с 3 спальнями
Просмотры сообщений: 7437
План дома 9.
2×8,5 с 3 спальнями План этажей в формате PDF
Планы дома 9,2×8,5 Планы первого этажа Имеет:
Во-первых, стоянка 1 автомобиля слева от дома 3х5,5м. Красивый выход на террасу перед домом размером 3,5х2м. Когда мы идем от входной двери, небольшая гостиная 4×3 м очень подходит для этого дома, она красивая и современная. Светлая кухня 3х3,5м с выходом на задний двор 3х1,5м. Обеденная зона 3,5х3,5м, чистая и красивая. Ванная комната мульти размером 2,2х2,1м. Стиральная машина на кухне, кладовка под лестницей.
Второй этаж: Санузел совмещенный размером 2,2х1,9м. Размер главной спальни 3,5×5,4 м, большая стеклянная дверь на балкон 3,5×1,5 м с двуспальной кроватью, столик для макияжа и шкаф, ванная комната 3,5×1,9 м. Спальни 2 размером 3х3,5м, спальня 3 размером 3х3м. Холл 2,2х2,5м
План этажа Подробные планы дома 9,2×8,5:
Краткое описание дома:
-Автостоянка и сад
-Гостиная
-Столовая
-Кухня
-3 Спальни, 3 санузла, стиральная
ПОЖАЛУЙСТА, УБЕДИТЕСЬ, ЧТО У ВАС ЕСТЬ бесплатные образцы планов
Черепица:
Наконец, вальмовая крыша сделана из цементной черепицы (или местной черепицы), которая покрывает потолок из гипсокартона.
Благодаря этому дом выглядит чистым и современным.
План дома 9,2×8,5:
Аналогично цвету границы крыши мы выбираем сочетание темного и светлого цветов вместе с большой стеклянной дверью и окном, чтобы дом выглядел таким красивым и современным.
Подробную информацию см. в планах:Купить план этого дома: @
PRO BUILD THAILANDЭто план в формате PDF, доступный для мгновенной загрузки.
Дом с 3 спальнями и 3 ванными комнатами с мини-комнатой для стирки и сушки.
ПЛАНЫ ВКЛЮЧАЮТ:
План расположения фундамента, балки, колонны
Габаритный план внешней / внутренней стены
План балки крыши
План крыши
Планы фасадов
3 плана поперечного сечения
План расположения потолочного освещения
Вы покупаете файл PDF для этого плана. Распечатайте его, когда захотите, столько раз, сколько захотите.
План печатает на бумаге формата A4.
ПОЛЬЗОВАТЕЛЬСКИЕ ПЛАНЫ:
К сожалению, в настоящее время я не могу создавать индивидуальные планы.
ОТКАЗ ОТ ОТВЕТСТВЕННОСТИ:
Эти планы были созданы мной и не были подготовлены и проверены лицензированным архитектором и/или инженером.
Я не представляю и не подразумеваю себя лицензированным архитектором и/или лицензированным инженером.
Наслаждайтесь этими планами, но используйте их по своему усмотрению.
Доставка Мгновенная загрузка
Ваши файлы будут доступны для скачивания после подтверждения оплаты. Вот как.
Я не принимаю возврат, обмен или отмену.Но, пожалуйста, свяжитесь со мной, если у вас есть какие-либо проблемы с вашим заказом.
Вы можете связаться с нами: Личный FB: Sophoat Toch
Страница в Facebook: Сэм Архитектор
Группа в Facebook: Идея дизайна дома
Загрузить больше планов на YouTube: Канал «Планы дома»
Если вы считаете, что этот план полезен для вас.
Пожалуйста, лайкните и поделитесь.
Подробнее: Лучшие проекты небольших домов 8×10 метров 26×33 футов
Купить еще Планы домов:
Небольшой жилой дом 9×7 метров 30×23 фута 2 кровати
Лучшие планы небольших домов 6×8 метров 20×27 футов
Проекты домов Планы 16×11 метров 53×36 футов
План этажа Белого дома 6×8 метров 20×27 футов
Планы одноэтажного дома 6.5×7 метров 22×30 футов
План дома 12x16M 39X53F
Планы одноэтажного дома 6×8 метров 20×27 футов
План современного дома 12×8 метров 40×27 футов
Дизайн интерьера 3D:Небольшой особняк 6×10 метров 20×33 фута 2 кровати
Планы одноэтажного дома 12×11 метров 39×36 футов
Дизайн моего дома 5×7 метров 16×23 футов
Планы одноэтажного дома 4×9 метров 13×30 футов
План дома 8x12M 26x39FПлан дома 7x15M 23x49F
Маленькие кирпичные дома 6×7 метров 20×23 фута 2 кровати
Маленькие уютные дома 6×7 метров 20×23 фута 2 кровати
План дома-бунгало 12×8 метров 40×27 футов 3 кровати
Новые проекты небольших домов 5×7 метров 16×23 футов
План одноэтажного дома 12×11 метров 39×36 футов
Вид на дом:
11 м 41×35 футов 4 кровати
План дома 12.
4×11 метров 41×35 футов 4 кровати Tiny
Дизайн дома 7×6 Односкатная крыша
Простые проекты домов с вальмовой крышей 7×6
Проекты небольших домов с двускатной крышей 7×6
Ниже показано, что вы получите после покупки этого плана:
Проверить планы других домов
СвязанныеКак читать планы этажей
Пользовательский набор планов включает большое количество деталей, включая сокращения, размеры, стили и типы материалов, высоту потолков, дизайн и многое другое.
По мере того, как наша команда дизайнеров погружается в ваше видение дома с этими деталями, домовладельцу будет полезно ознакомиться с некоторыми из наших наиболее часто используемых номенклатур, а также понять, что входит в строительство индивидуального дома. Читайте дальше, чтобы ознакомиться с различными аббревиатурами, обозначениями и легендами, которые вы найдете в индивидуальных планах этажей Kurk Homes.
- Как читать набор планов этажей
- Изучение сведений о собственности
- Высота потолков и детали
- Размеры дверей и окон
- Детали окна
- Детали стен на предварительных планах
- Детали стен на окончательных планах
- Напольное покрытие
- Шкафы, встроенные шкафы и типы раковин
- Внешние фасады
- Внутренние фасады
- Надписи на планах этажей
Как читать набор планов этажей
В разработке плана этажа есть несколько движущихся частей, поэтому умение читать набор планов может потребовать некоторой практики.Тем не менее, это важный навык, чтобы избежать сюрпризов, когда ваш дом построен по плану. Здесь мы перечислим наиболее распространенную номенклатуру в планах этажей.
Путешествие по проектированию и строительству официально «открывается», когда клиент подписывается, чтобы мы составили план его этажа.
Команда дизайнеров Kurk Homes работает рука об руку с клиентами, чтобы спроектировать уникальные индивидуальные дома, и у нас есть некоторые инструменты, которые помогут создать план на основе вашего видения. Как только начинается процесс проектирования, даже в первом представлении отмечается довольно много деталей, которые полезно распознать.
Исследование сведений о собственности
Ваш план этажа будет представлять собой 2D-чертеж здания или дома, выполненный в масштабе и обычно используемый в процессе проектирования и строительства наряду с архитектурой и строительным проектированием. Они нарисованы с вида сверху, но их также можно увидеть с вида сбоку в виде фасада. Планы этажей предоставляют основные сведения о доме, такие как площадь каждой комнаты, высота потолка, размеры окон и многое другое.
Чтобы сделать процесс максимально эффективным и приятным, мы разработали список основ, которые мы хотели бы иметь в наличии на первой встрече.В том числе:
- Подробная информация о собственности: Четкое представление о том, что потребуется для строительства дома на участке, позволит нам подготовить площадку.
Помимо понимания основ подготовки участка для функциональности предлагаемого дома, мы хотим увидеть ваше видение наряду с определением таких вещей, как отступ здания и площадь застройки. Если вы не уверены, можно ли построить вашу собственность, мы предлагаем бесплатную оценку стоимости участка. - Пограничное обследование: Пограничное обследование, в отличие от общественной платформы, ответит на многие наши вопросы; это жизненно важная часть документации, которая ускорит процесс проектирования идеального дома.При необходимости мы также можем порекомендовать проверенного сюрвейера. Чтобы говорить о том, какой дом вы себе представляете, важно знать о своей собственности следующие вещи:
- Форма и размер
- Местоположение
- Доступ
- просмотров
- Существующие конструкции или препятствия для строительства
- Физические ограничения, включая заборы и сервитуты
- Существующие улучшения? Если есть существующий дом, подлежащий ремонту или сносу, потребуется окончательное обследование имущества.
Это опрос, проведенный по завершении оригинальной сборки. - Свидетельство о высотной отметке , если собственность расположена в пойме. Чтобы узнать больше, перейдите по этой ссылке к руководству FEMA для домовладельцев.
- Топографическая съемка: «Топо» дает нам более подробную картину участка, его склонов и дренажных систем, иногда включая существующие деревья и потенциальные проблемы, которые могут повлиять на строительство.
- В некоторых муниципалитетах для получения разрешения на строительство требуется отдельное обследование деревьев.Геодезист, проводивший обследование границ, может предоставить топографическую съемку или обследование деревьев или порекомендовать кого-то, кто может это сделать.
- Руководящие принципы HOA: К ним относятся CC&R, ограничения на действия, требования соседства или правила исторического дизайна. Команда Kurk Homes хочет с самого начала хорошо ознакомиться с вашим сообществом и вашим участком.
Ваш агент по недвижимости, представители POA/HOA или муниципальная управляющая компания могут помочь вам найти необходимые документы, если у вас их еще нет. - Особенности коммунальных услуг: Дизайнеры Kurk Homes должны знать, кто будет вашим поставщиком коммунальных услуг наряду с существующими:
- Линии инженерных сетей и счетчики
- Сервитуты
- Доступ
- Места касания
- Вид с воздуха: Вид со спутника Google (ссылка) обычно достаточен для городского участка или необработанной земли.
- Заполненная предпроектная анкета: Пожалуйста, найдите время, чтобы ответить на все соответствующие вопросы.Это часть нашего упражнения «Знакомство с вами», и оно действительно помогает нам поделиться вашим видением!
- Конкретные идеи: Если вы собираете фотографии того, что вам нравится, возьмите с собой блокнот! Поделитесь с нами своими книгами идей Houzz, фотографиями из Instagram, досками Pinterest или вырезками из журнала Southern Living.
Если ваш дом должен отражать вашу индивидуальность и стиль, нам нужно посмотреть, что вам нравится. - Бюджетные ограничения: Мы понимаем, что это предварительная встреча, но у вас, скорее всего, есть бюджет на строительство дома.Лучше знать об этом с самого начала, чтобы мы могли сделать все возможное, чтобы соблюдать ваши лимиты в долларах и оправдать ваши ожидания.
Разрывы и изменения потолка отмечены пунктирными линиями или SLP (что означает наклон) для сводчатого потолка. Потолок с утопленным поддоном будет иметь пунктирную линию, указывающую на изменение высоты вверх в соответствии с формой комнаты: прямоугольной, квадратной, куполообразной, овальной, восьмиугольной или нестандартной формы, мы сделали их все.
Вам нужен специальный потолок или вы хотите увидеть больше идей и вариантов потолков?
Типы сводчатых потолков включают:
- Арочное хранилище
- Хранилище бочек
- Хранилище Собора
- Паховый прыжок (крестовый прыжок)
- Хранилище с плоским верхом
На первом изображении пример красивого цилиндрического сводчатого потолка в фойе с применением мореной сосны в виде шпунта и паза.
Как показано, бочка, спроектированная на планах дома со сводчатым потолком, имеет несколько пунктирных линий, параллельных друг другу, что указывает на закругление потолка.
Ниже представлена конструкция потолка с встраиваемыми лотками. Базовая высота потолка комнаты составляет 10 футов, а пунктирная линия прямоугольника обозначает изменение высоты потолка до 11 футов.
Этот утопленный поднос, показанный ниже, повторяет форму гостиной, создавая ощущение более просторного пространства.
Двойной лоток будет иметь два параллельных набора пунктирных фигур, один из которых симметрично вставлен в другой.Сводчатый потолок имеет пунктирную линию в центре.
На приведенных ниже планах двойная пунктирная линия на сводчатом потолке указывает на несущую балку, обтянутую кедром, сосной или гипсокартоном. На следующих планах вы можете увидеть пунктирную линию, пересекающую саму себя, чтобы обозначить пах или крест, сводчатый потолок.
CLG обозначает высоту потолка, указанную либо для всей комнаты, либо для опорной плиты (края комнаты), если потолок сводчатый или имеет лоток.
Арки, разделяющие комнаты, отмечаются той же диаграммой в футах и дюймах, что и окна и двери, причем сначала указывается ширина в футах и дюймах, а затем высота в той же последовательности.
Размеры дверей и окон
При указании на плане размеры дверей указываются сначала по ширине, затем по ширине (футы в дюймах) и по высоте (футы в дюймах).
Дверь 3080 имеет ширину 3 фута 0 дюймов и высоту 8 футов 0 дюймов. Для сравнения, дверь 2868 имеет ширину 2 фута 8 дюймов или 2 фута 8 дюймов и высоту 6 футов на 8 дюймов (6 футов 8 дюймов).Таким же образом отмечается окно; например, окно 4016 имеет ширину 4 фута и высоту 1 фут 6 дюймов.
Типы дверей
Активная дверь — это одна дверь из набора двойных дверей, которая постоянно открывается. Другой откроется, но для этого его нужно будет разблокировать сверху и снизу.
Двери со сплошным сердечником, обозначенные как S.C., представляют собой двери, ведущие на улицу или на чердак, включая порог для защиты от непогоды и замок. Дизайн двери со сплошным сердечником может быть сплошным, подходящим к межкомнатным дверям, полным облегченным (полностью стеклянная дверь), французским или «DL», что означает разделенное облегченное (появление симметричных оконных стекол или импостов на стекле двери), полуоблегченная (похоже, фиксированное окно в верхней половине двери) или голландская дверь, в которой верхняя половина и нижняя половина двери могут открываться независимо.
«Х.Х.» относится к высоте заголовка окна, высоте верхней части окна. Если отмечена высота 8 футов 8 дюймов, верхняя часть окна измеряется на уровне 8 футов 8 дюймов. SH или DH означает одно- или двустворчатое окно, управляемое либо нижней панелью, либо верхней и нижней частью для двустворчатого окна. Напротив, FX означает фиксированное или недействующее окно.
Tempered — это оконное приложение, предотвращающее разрушение при ударе.Вместо этого на окнах появится «паук», а домовладельцы будут защищены от осколков стекла. Окна, расположенные внутри дверных створок или расположенные низко над полом, требуют закалки в соответствии с нормами.
Глиняные окна представляют собой два отдельных окна, каждое из которых имеет шов, прикрепленный друг к другу. Напротив, баттированное стекло, как показано на рисунке ниже, представляет собой большие листы стекла, соединенные между собой четким силиконовым швом.
Нужно больше вдохновения для окон? Нажмите здесь, чтобы прочитать нашу статью «Окна для дома» с изображениями и определениями различных конструкций окон!
Детали стен на предварительных планах
Поскольку группа дизайнеров разрабатывает набор планов для домовладельца, стены отмечены на плане разной толщины по ширине стены.См. ниже внутренние стены 2×4, стены гаража, живые наружные стены 2×6 и водопроводные стены.
Детали стен на окончательных планах
С помощью «Легенды стены», представленной на окончательных планах, отмечается различная толщина стен. См. ниже внутренние жилые стены и стены гаража 2×4, жилые наружные стены 2×6 и внутренние водопроводные стены 2×6.
Примечания по напольным покрытиям Конц. означает бетон, недекоративный, как часть фундамента или заливки плоских конструкций.
St Conc – это окрашенный бетон. Cpt означает ковер. Плитка и Дерево выписаны. Деревянный настил типичен для приподнятых балконов. LVT — это виниловая плитка, имитирующая дерево.
Не можете решить, что выбрать? Вот статья о вариантах напольного покрытия под дерево.
Шкафы, встроенные шкафы и раковины
Фартук (также называемый фермерским домом) или встроенные кухонные и хозяйственные раковины отмечены на планах, а формы раковин для туалетных столиков отмечены как встроенные или сосуды.Шкаф обозначается тонкой коробкой, будь то раковина, бытовая техника или остров и периметр кухни. Краснодеревщик также можно отметить как меньший прямоугольник, обозначающий бельевой шкаф (шутливо называемый головным убором) над комодом. Пространство для колен под туалетным столиком отмечено как K.S. когда не хватает места для записи.
Встроенные помещения обозначаются на планах аналогичным образом рамкой с текстом, обозначающим назначение: письменный стол, скамья со шкафчиками, плавающие полки и т.
д.Детали отделки и глубина полок, количество полок и стеллажей указаны на шкафах типа 1R; 1S означает 1 штангу под 1 полкой в шкафу для верхней одежды по сравнению с 2 или более штангами и полками в шкафах в спальне.
Вид на бордюр, а также виды сбоку и сзади дома отмечены на фасадах снаружи. Вызываются детали отделки, такие как ставни из кедра, обернутые фермы и материал, а также металлические и гонтовые кровельные и каменные материалы (кирпич, сайдинг Джеймса Харди или доска и обрешетка, камень и штукатурка).
Соответствующий кирпичный выступ также известен тем, что нижняя часть фасада должна быть облицована натуральным камнем или полноразмерным кирпичом.
Внутренние фасады Более подробная информация о плане вызывается между разработкой предварительного и окончательного планов. Дизайн кухонного шкафа, тип вентиляционного отверстия, дверцы шкафа и ящики отмечены на внутренних фасадах, а также шкафы и встроенные элементы.
Это полезно для компании-производителя шкафов, чтобы сделать предварительные проекты, которые будут завершены с полевыми измерениями и точными номерами моделей приборов.
Ниже приведена легенда, которую команда дизайнеров Kurk Homes использует для обозначения определенных элементов плана этажа. Если указано «Опция», эта функция не включена в цену и задается скорее как вопрос домовладельцу, хотят ли они добавить эту функцию в дом.
Домашняя визуализация
3D? Виртуальная реальность? Дополненная реальность? Время от времени мы получаем специальные запросы на 3D-версии экстерьера или интерьера для сложной функции или общего потока, который домовладелец не может визуализировать.В последние годы были достигнуты удивительные успехи в области виртуальной и дополненной реальности. Мы, безусловно, можем достичь этих целей с дополнительными часами проектирования и услугами, чтобы обеспечить душевное спокойствие нашим домовладельцам.
Kurk Homes с гордостью предлагает построенные по индивидуальному заказу дома высочайшего качества с 20-летней гарантией на конструкции. Мы гордимся тем, что предоставляем нашим клиентам политику «никаких сюрпризов», поддерживая постоянную связь на протяжении всего процесса строительства.
Независимо от того, строите ли вы на основе существующего плана, Южного плана жизни или консультируетесь с нашей талантливой командой дизайнеров, чтобы спроектировать дом вашей мечты с нуля, мы гордимся тем, что делаем все возможное, чтобы превратить дом вашей мечты в опыт строительства мечты.
Свяжитесь с нами сегодня, чтобы обсудить строительство собственного дома!
Последнее обновление блога: 22 сентября 2021 г.
Бесплатные планы домов в формате PDF | Планы Домов Скачать бесплатно | Чертежи дома бесплатно | План дома PDF
Бесплатно Планы домов Загрузите для вашего идеального дома.
Ниже приведены различные бесплатные планы домов в формате pdf для загрузки
Бесплатно
Планы домов Скачать PdfСкачать бесплатно полные планы домов в формате pdf и скачать чертежи домов бесплатно
1) 20×45 футов План дома Скачать бесплатно План дома 20×45 футов
2) 30×50 футов. Планы домов Скачать бесплатно 30×50 футов. План дома
3) 15×30 футов.План дома Скачать бесплатно
4) 30×40 футов Лучший план дома
30х40 м. План дома с паркингом, 2-х комнатная + одна пристройка Гардеробная и санузел, Гостиная, Кухня, Столовая.
30×40 футов Лучшие планы домов5) План небольшого дома 16 х 9 м
Размер в плане: 16 X 9 м
Площадь в плане: 144 м 2
План небольшого дома 16 X 9Особенности:
- Столовая: 5м X 3м
- Кухня 3м: X 3м
- Спальня1: 5м X 3м
- Гараж: 5м X 3м
- Спальня2: 3.
5 м X 3 м - Гостиная: 5 м X 4 м
- Терраса: 5 м X 2 м
6) 25 X 45 футов Первый этаж с достаточным местом для парковки
Размер в плане: 25 футов X 45 футов
Площадь: 1125 квадратных футов
25 футов X 45 футов Первый этажОсобенности:
- Столовая 11 футов X 10 футов
- Открытая кухня: 7 футов 6 дюймов X 7 футов
- Оба примыкающих туалета: 4 фута X 7 футов
- Детская спальня: 12 футов X 10 футов
- Гостиная: 17 футов 6 дюйм X 11 футов
- Основная спальня: 12 футов X 11 футов
- Парковка: 12 футов 10 дюймов X 10 футов 2 дюйма
7) 46 футов X 26 футов 8-дюймовый план дома BHK
Размер в плане: 46 футов X 26 футов 8 дюймов
Площадь: 1226.65 квадратных футов
План дома BHKОсобенности:
- Главная спальня: 13 футов 5 дюймов X 12 футов 7 дюймов
- Спальня 2: 9 футов 9 дюймов X 10 футов 4 дюйма
- Спальня 3: 9 футов 9 дюймов X 10 футов 4 дюйма
- Гостиная: 19 футов 5 дюймов X 12 футов 7 дюймов
8) 40 X 40 футов План первого этажа
Размер участка: 40 х 40 футов
Площадь: 1600 квадратных футов
Участок 40 футов X 40 футовОсобенности:
- Главная спальня: 14 футов X 14 футов
- Зона отдыха: 11 футов X 6 футов
- Гостиная: 12 футов X 16 футов 8 дюймов
- Ванная комната: 9 футов 9 дюймов X 6 футов 4 Вестибюль: фт Х 6 футов 4.
- Вестибюль/столовая: 15 футов 5 дюймов X 13 футов
- Лестница 10 футов 1,5 дюйма X 7 футов
- Магазин: 6 футов X 4 фута 2 дюйма
- Кухня 8 футов X 10 футов Комната: 3 Puja: 3 Puja фут 6 дюймов X 10 футов
- Комната SER: 10 футов 1,5 дюйма X 5 футов 10 дюймов
5 дюймов9) 46 X 34 фута План дома согласно Васту
Размер участка: 46 х 34 фута
Площадь: 1564 квадратных фута
План дома согласно Васту ШастреОсобенности:
- Спальня 1: 16 футов X 11 футов
- Спальня 2: 11 футов X 16 футов
- Спальня 2 с прилегающим туалетом: 4 фута 10 дюймов X 4 фута
- Пуджа Гар: 4 фута 6 дюймов X 4 фута
- Спальня 2, прилегающий туалет: 5 футов X 4 фута 8 дюймов
- Спальня 2, прилегающая гардеробная: 5 футов 8 дюймов X 4 фута 8 дюймов
- Столовая: 11 футов X 10 футов
- Кухня: 11 футов X 10 футов
- Холл: 16 футов X 20 футов 6 дюймов
- Зона отдыха: 8 футов X 8 футов
- Портик: 17 футов X 11 футов 1 1 1 4 1 4 9003 9053 ″ X 30′ первый этаж и 11′ 3″ X 33″ план первого этажа
- Первый этаж: 14 футов 4 дюйма X 30 футов
- Первый этаж: 11 футов 3 дюйма X 33 фута
- Первый этаж: 430.
55 квадратных футов - Первый этаж: 369,20 квадратных футов
- Первый этаж:
- Спальня: 14′ X 9′
- Санузел: 6′ X 3′
- Туалет: 4′ X 6′
- Зал: 4′ X 6′
- Зал: 10′ 103 4 ′ X 11′
- Спальня: 11 футов X 9 футов
- Спальня Примыкающий туалет: 3 фута X 6 футов
- OTS: 3 фута X 3 фута
- Туалет: 4 фута X 6 футов
- Кухня: 10 футов X 5
- Холл: 9′ X 11′
- Балкон: 14′ X 2′ 6″
Размер в плане:
Площадь:
Особенности:
2. Первый этаж
Вам также может понравиться
План крошечного дома 20×24.Крошечный дом Basecamp может похвастаться большой террасой на крыше для пары альпинистов. 11 долларов. Чтобы доказать это вам, мы создали коллекцию самых популярных размеров навесов со списком материалов внутри.
Планы этажей небольшого дома 24×26 м 7×8 м 2 спальни полные планы. Коттедж с 2 спальнями в современном стиле, с мезонином и соборным потолком, доступная по цене конструкция. Ft: 706 (353 1-й, 353 2-й) Этот план представлен в формате PDF, поэтому вы можете скачать его и распечатать в любое время.Цена является огромным фактором. Базовая отделка: 33 367 долларов. Хижина Крошечного Дома. Наши домики чрезвычайно универсальны: от садового сарая до охотничьего домика или от крошечного домика до небольшого дома. полезность. 69. -Файл Autocad (Все … 20×24 ‘План этажа с 2 спальнями. Читать меньше. Планы гаражных домов. Современные … Планы домов с узким участком идеально подходят для строительства в многолюдном городе или на небольшом участке в любом месте. Мы включили образцы фотографий и цены. PDF-файл легко просматривать и распечатывать. Деревенский материал и детали ремесленника на внешней стороне дома создают элегантный внешний вид.G2442B 229 долларов. 99. Просто позвоните нам, чтобы узнать цену.
31. 41 предыдущая цена 31 австралийский доллар. Благодаря инновационному дизайну некоторые домовладельцы обнаружили, что небольшой дом ведет к более простой, но более полной жизни. Нажмите прямо сейчас, чтобы увидеть детали каждой услуги по аренде!. бунгалобокс. 60 футов: 640 Размер здания: 20-0 в ширину, 40-6 в глубину (включая крыльцо) Уклон основной крыши: 8/12 Высота конька: 18 Высота стены: 9 Фундамент: CMU Blocks Lap … 11 января 2018 г. — Исследуйте Элисон Чепмен доска «Планы квартир для бабушек», за которой следят 135 человек на Pinterest.Отзыв о наших предложениях Отзыв о наших предложениях Отзыв о наших предложениях. ft планы дома, план дома 2 спальни и 1 ванная с бесплатным файлом САПР 16×24 Дом — 1 спальня 1 ванная — 555 кв. Футов — План этажа в формате PDF — Мгновенная загрузка — Модель 2A ExcellentFloorPlans 4 из 5. Все Планы, необходимые для строительства этой красивой каюты 20×30 футов с мансардой и полноценным подвалом. План круглого дома из соломенных тюков площадью 612 квадратных футов.
Жизнь в крошечном доме. 6 Мини-сплит-система серии SEER Exterios для одной зоны — Energy Star.План домика с кольцом Шаг № 5: Добавление и крепление пластика. навесы переместить сарай 12 x 12 в рочестер, штат Нью-Йорк материалы, необходимые для строительства шеста 20×24 сарай переместить сарай 12 x 12 в рочестер, штат Нью-Йорк. План главной спальни дома уникальной формы. Меня зовут Хари Берзиньш, и я переехал в крошечный дом со своей семьей в мае 2011 года. Купите этот план дома: — Планировка Детальный план этажа, План фасада с размерами. Нажмите, чтобы узнать больше. Настенный шкаф красоты. ». Он имеет 2 спальни, 2 ванные комнаты, кухню и гостиную.Для получения дополнительной информации о планах сборки и трейлере, который я использовал, нажмите на ссылки выше. 75. Элизабет кал. 27 фунтов стерлингов. Вы ищете идеальный план этажа для своей хижины, коттеджа или крошечного дома? Если у вас мало места, но вы все еще хотите план этажа с большим количеством места для передвижения, планировку, которая является очень функциональной и действительно удобной для проживания… Планы охотничьего домика 20×20 Бревенчатый домик 20×20.
Планировка дома 24-футового крошечного дома просторна, но не выходит за пределы разрешенных дорог (8 футов 6 дюймов в ширину и 13 футов 6 дюймов в высоту).Состояние: абсолютно новый. Планы этажей дома для 20X24 Планы этажей кабины 20X24 . | План этажа крошечного дома 20′ X 24′ Сарай с крытой верандой 480 кв. Вы также можете использовать планы, чтобы построить свой крошечный дом, домашний офис на заднем дворе, мастерскую, ремесленную студию, сарай или бунгало бабушки и дедушки. Быстрый просмотр Быстрый просмотр. е. Просмотрите нашу коллекцию планов крошечных домов сегодня. Маленький не должен быть тесным, если все продумано стратегически. Пожалуйста, лайкните и поделитесь. Видео плана дома 8; Большой 2; Люкс 0; Список материалов 806; Метрика 103; Модерн середины века 2; Многоквартирный дом 1; Мультипоколение 0; Новый 37; Фотогалерея 53; Столб Амбар 17; Пулхаус 2; Премиум Коллекция 0; Недавно продано 438; Деревенский 14; Сарай … Просмотрите наш большой выбор планов домов, чтобы найти дом своей мечты.
Размер: 115 квадратных футов. 95 — Хижина Старателя. 5 метров. Отфильтруйте по количеству гаражей, спален, ванн, типу фундамента (например, КУПИТЕ ЭТОТ КРОШЕЧНЫЙ ПЛАН ДОМА Этот размер дома конкурирует с некоторыми из более традиционных «крошечных домов» площадью от 300 до 400 квадратных футов с немного более функциональным и жилым пространством. 95. Я очень доволен этой покупкой!Планы невероятные и подробные.От ремесленника до современного фермерского дома, до узких участков и многого другого, наша коллекция планов этажей небольших домов отвечает требованиям эффективной и доступной жизни.После рассмотрения всех планов, единственное, что выделялось, это A-Frame. Ищете план этажа маленькой каюты? Найдите в нашем разделе уютных коттеджей дома идеального размера для вас и вашей семьи. Количество: более 10 в наличии / 7 продано. Популярный Популярный Популярный. Вы можете вносить изменения, или мы можем, и часто вносим изменения в эти наши планы. В планы включены схемы и все замеры для раскроя материала.
Нажмите прямо сейчас, чтобы увидеть подробности каждой услуги по аренде! 20х24 Готовый дом.Дизайнер: Энди Шелдон. деревьяранчо. Планы домиков на берегу или у озера также могут быть обманчивы на первый взгляд. Планы включали подробную разбивку основных материалов для строительства крошечного дома, таких как конструкционные пиломатериалы, обшивка и т. Д. Еще одним распространенным использованием этих планов является размещение членов семьи, которые нуждаются в присмотре или помощи в проживании, но все же ценят наличие в коллекции планов двухуровневых домов. ниже работают для обоих этих сценариев. Покупка нового сарая. ком! 20 ноября 2020 г. — Исследуйте доску Кэролин Эррера «20×25» на Pinterest.Технические характеристики кабины. План этажа 24 x 15 футов. 50 долларов. Найдите одноэтажные мини-домики с подвалом, чертежи одноэтажных мини-бунгало и многое другое! Позвоните по номеру 1-800-913-2350, чтобы получить квалифицированную помощь. Он содержит все страницы планов и показывает цвета и тени.
Размер файла: 51 КБ. Основной этаж Master 8994. Проекты многоквартирных домов обеспечивают большие возможности для получения дохода при сдаче этих квартир в аренду. Детали кабины. 29 долларов. Верхний уровень имеет размеры 21 фут 4 ″ X 16 фут 4 ″, что обеспечивает достаточно места для шести спальных мест, одной полноразмерной двухъярусной кровати и мебели.Добавить в корзину. Откройте для себя план 3946 — Willowgate из коллекции домов Drummond House Plans. Крошечный дом 16×24 com Best Education Education Маленькая хижина 16 x 24. Планы трехэтажного дома часто пригодятся, если вы работаете с узким участком. План дома 76012. Ячейка 3262 • Палмер, AK 99645 • (907) С этим флигелем вы можете увидеть, где другие использовали планы для его строительства (таким образом, вы знаете, что планы работают), и это может вдохновить вас на изменения, которые вы Я нашел 15x7x7 с окнами на липучке и дверью на молнии за 110 долларов с бесплатной доставкой.Этот план 25 × 25 1Bhk — идеальный план дома с 1 спальней в индийском стиле, выходящий на запад, для вас, если вы планируете построить дом менее 700 кв.
Футов. Четырехсезонные коттеджи, таунхаусы и даже некоторые красивые классические дома. хижина поднимается в NH — отличные картинки для идей. Мы идем от очень малого к большому. Это платформа для обмена шаблонами планов этажей, где вы можете делиться отличными схемами планов этажей. Квартиры для бабушек, также называемые планами апартаментов для свекрови или планами дома для свекрови, обычно включают небольшую гостиную / кухню, ванную комнату и спальню.БЕСПЛАТНАЯ доставка при заказе от 25 долларов. 3. Макет. 2. Просверлите направляющие отверстия в торцевых стойках стены и прикрепите их к боковым стенкам с помощью 2 винтов 12. К сожалению, никаких планов по его сопровождению нет. Судите, чтобы услышать аргументы о том, кто Эти крошечные хижины и коттеджи воплощают в себе весь южный шарм в аккуратной упаковке площадью 1000 квадратных футов или меньше. Проектирование планов дома площадью 600 кв. Футов для плана дома 20 × 30 на участке 20 × 30 является сложной задачей, поскольку размер участка невелик.
2 санузла) и многое другое.ДЛЯ ПЛАНОВ И ПРОЕКТОВ +91 8275832374/+91 8275832375/+91 8275832378 Коттедж 12 x 24 фута (384 кв. м = 288 кв. м основной этаж и 96 кв. дизайн крыльца, который позволяет встроить двухъярусные кровати и добавить задний чердак со стеной ванной комнаты, дверью, туалетным столиком и мини-кухней. В этой каюте могут разместиться восемь человек; два в королеве, два в королеве, два на чердаке и еще два на кушетке / выдвижном ящике или футоне Планы дома Granny Pod, планы этажей и проекты. футов -1 кровать и 1 ванная комната с бесплатным файлом САПР.24´ X 40´ План гаража на две машины. Вооружившись только книгой и не имея предварительных знаний о строительстве бревенчатых домов, они приобрели пять акров земли с доступными для инвалидов планировками домов, которые могут быть одно- или двухэтажными и включать умные идеи, включая бесступенчатые входы, более широкие дверные проемы и коридоры, открытые планы этажей, рычажные двери, улучшенный дизайн ванной комнаты и хорошее освещение, которые обеспечивают лучшую функциональность.
План гаража на две машины 26 футов X 30 футов. Небольшая математическая проверка: 1/2 графика 40 PVC в HD стоит 1 доллар. Приобретенный товар: Планы каркасной хижины 23 x 20, двухэтажный крошечный дом для отпуска в каркасной хижине — планы своими руками — (в цифровом формате) Crooked Little Pinkies 19 июля 2021 г.Наши партнеры имеют многолетний опыт оказания помощи клиентам с планами стойлового амбара и комплектами стойлового амбара. 17 фунтов стерлингов. 54 скидка 15%. 5. Я начал вести блог, чтобы поделиться тем, чему мы научились, живя просто и без долгов в бревенчатой хижине на Аляске. 1 м 2). Это крошечный дом с 1 комнатой, простой площадью 222 кв. Индивидуальные планы дома Tiny House Узкий коттедж с 1 кроватью 800 sf — файл PDF.Пока вы можете. Каюта с мансардой увеличит вашу жилую площадь без увеличения общей высоты. Домик 20х24 20х20 Коттедж 20х24 Планы домика. Планы дома 20×50, планы дома 20 на 50 для дома твоей мечты. У нас есть два (2) основных варианта: «базовая/экономичная отделка» и «улучшенная».
В Battle Creek Log Homes наша серия коттеджей состоит из небольших бревенчатых домиков, каждый из которых обладает своим уникальным уютным шармом. Помещения/квартира свекрови 691. Высота столешницы и раковины, стили дверных ручек и стили приборов также обычно изменяются. Планы найдены: 86.Спальных мест: 3 — Ванных комнат: 2. Все три размера имеют переднее крыльцо с крышей. Если у вас есть желание заняться творчеством, связанным с 24X24 Cabin Plans with Loft. Когда мы идем от входной двери, небольшой Living 4×3. Если вы можете точно измерить и использовать основные, необходимые инструменты, вы можете построить свой сарай. Бесплатная наземная доставка доступна в США и Канаду. Хотя это самые дешевые планы на Choo Choo Tiny House, обязательно ознакомьтесь с другими планами на сайте, так как многие другие доступны до 11 января 2020 г. — изучите доску Qalingu Napartuk «q» на Pinterest.Из него получится восхитительная мастерская, сарай или студия. Этот уникальный коттедж из столбов и балок идеально подходит для воплощения вашей мечты о маленьком доме.
Ветровая зона 1. com for spon К вашему участку можно пристроить крошечный дом, чтобы обеспечить место для гостей. ПЛАН ЭТАЖА TINY HOUSE 20×24 — 1 СПАЛЬНЯ, 1 ВАННАЯ, 450 КВ. ФУТОВ ЖИЛОЙ ПРОСТРАНСТВА. Если вы подсчитаете, что в среднем по стране стоимость всех пиломатериалов для строительства типичного загородного дома составляет около 47 000 долларов, и вы вычтете 8 000 долларов на лесопилку, то у вас останется общая экономия. руководство по дому!.Исследуйте то, что подходит вам лучше всего, и сохраните для собственного использования. Номер плана 45234. Дополнительные опции. Получить планы. Обновите пакет до четырех сезонов, чтобы создать круглогодичный отдых, чтобы избежать хаоса и омолодить свою душу. Кабина | Гостевой дом Etsy 20×24 с мансардой — Поиск в Google | Пол кабины Планы одноэтажного крошечного дома, планы этажей и проекты. Мы, наконец, начали строительство в мае 2006 года. Электронная почта friesenscustomcabins@gmail. В доме длиной 28 футов есть садовая дорожка, крыльцо и костровая яма для развлечений на свежем воздухе.
5 Баня. Просмотрите 4305 гаражей и навесов 20×24 на Houzz. Вы искали идеи для гаража и навеса 20×24, и на этой странице показаны лучшие совпадения изображений, которые у нас есть для идей для гаража и навеса 20×24 на январь 2022 года. Подробнее см. здесь. наращивать, не обязательно наружу, хорошо подходит для узких участков). 20×24. 5 плюс налог. Когда в этом месте жаркий климат, это … 2-х этажные планы домов, планировки и планы этажей для строителей. Пин на доске Планы салонов . Планы крошечных домов. Вот еще несколько лучших вариантов кондиционеров для крошечных домов: Panasonic XE12SKUA-1 11500 BTU 30.4. Каждый дом начинается с плана. 20-страничный подробный файл PDF для этого плана содержит все детали каркаса для строительства этого дома. 33. Позвоните нам по телефону 1-877-803-2251 17+ План маленького деревянного каркасного дома — Владелец дома хочет, чтобы план каркасного дома был удобным, тогда у вас есть план небольшого деревянного каркасного дома — это важные вещи, которые необходимо принять во внимание.
рассмотрение . В зависимости от правил зонирования в вашем районе, вы можете указать крошечный дом в качестве краткосрочной аренды на время отпуска.Дверь сарая. 91. Часы. Настройте любой план этажа! Исследуйте 2 этажа, двускатную крышу с современной открытой планировкой, небольшие и другие чертежи сарая. Клиенты, которые купили этот план дома, также покупали список строительных материалов. Он остается нетронутым как архив и задокументированная история ключевого периода моей жизни. Кухня-гостиная, удобная гостиная с высокими потолками, доступ по лестнице на чердак, большая ванная комната и прекрасный дизайн делают этот дом идеальным для 1-2 человек. Наши планы домов с 1 спальней и планы кают с 1 спальней могут быть привлекательными для вас, независимо от того, являетесь ли вы пустым домом или ограничены в передвижении, или просто хотите иметь одну спальню на первом этаже (основной уровень) для удобства.В дополнение к планам дома, которые вы заказываете, вам также может понадобиться план участка, на котором показано, где дом будет расположен на участке.
Использованная литература. Совершенно новый. Бабушкины капсулы входят в число многих. От жилых до коммерческих и даже сельскохозяйственных помещений наши комплекты и / или услуги по индивидуальному дизайну предоставят вам то, что вам нужно. Этот базовый строительный пакет 20×24 может иметь множество возможностей настройки. Сохранить Закрепить Посмотреть больше изображений. С основанием 12 × 12 и двумя скатами крыши он включает в себя пару широких веранд, объединяющих внутреннее и внешнее пространство.Планы строительства современного крошечного загородного дома, 2 спальни, 1 ванная комната и файл САПР. План гаража на одну машину 14 футов X 20 футов. 1. Лучшие планы этажей одноэтажного крошечного дома. ПОЛЬЗОВАТЕЛЬСКИЕ МОДИФИКАЦИИ ДОСТУПНЫ НА БОЛЬШИНСТВЕ ПЛАНОВ. С его 2 спальнями и большим количеством встроенных шкафов, полной ванной и сводчатыми потолками в большой комнате это всесторонний тур по жизни Ариэля Макглотина в крошечном доме вне сети в горах западного Вайоминга. Посмотрите больше идей о планах этажей дома, планах небольших домов, планах домов.
за. Представьте, что вы на самом деле можете купить дешевый крошечный комплект для дома менее чем за 10 000 долларов, что было непостижимо всего пару лет назад.Получите эти планы кабины здесь. Наши проекты варьируются в квадратных футах и могут использоваться в комбинациях или отдельно для небольших дополнений, домиков у бассейна и многого другого! Сарай имеет размеры 4×8 и может быть размещен у дома или забора. P: 724-222-8600 НАПИСАТЬ НА ЭЛЕКТРОННУЮ ПОЧТУ. Большие планы включают 2-й этаж для гораздо большего места для хранения. Мы строили его сами, так что дела шли медленно, но нам было очень весело! Компания Architectural Designs выставила на продажу более 24 проектов домов с амбарами. Дополнительная информация Больше похоже на это Это отличный план для строительства хижины, если участок земли, на котором вы строите свою хижину, имеет уклон.Решения Nelson для модульного строительства домов включают сборные дома, готовые к заселению дома и фундамент «под ключ». планы. План дома 6020 в традиционном стиле площадью 576 кв.
футов. Еще одно распространенное использование этих планов — размещение членов семьи, которым требуется присмотр или помощь в проживании, но которые все же ценят наличие планов одноэтажного дома. Этот конкретный дизайн похож на внутренний дворик, за исключением того, что это план 031G-0011. Этот крошечный коттедж на побережье Орегона имеет одну спальню на 416 футах 2 (38.12 бесплатных планов DIY для строительства крошечного дома. Детали гаража. Новый! G2630F 269 долларов. 6 отличных способов организовать свой крошечный дом. Не знаете, какой архитектурный стиль вам больше нравится? Не напрягайся! В представленной ниже коллекции вы найдете планы двухэтажных домов, выполненных в ремесленном, деревенском, современном, колониальном, викторианском и многих других типах архитектуры. 16′-3″… Норвежская хижина — это крошечный дом, основанный на норвежском стаббуре — складе, построенном на сваях. (Ширина затем длина) G1420A 209 долларов.Дизайн. План представляет собой набор чертежей, которые показывают строителю размеры и примечания, необходимые для строительства этого дома или гаража.
Бесплатный план плоской палубы на земле с загрузкой чертежей в формате PDF. Создайте этот проект. Вы можете изменить один из наших планов гаража. Стоимость строительства крошечного дома или хижины основана на реальном опыте авторов этих простых планов хижины. com Планы двухэтажных домов The House Plan Shop Планы этажей кабины 20×24 Планы этажей 24×28 Цитаты . Больше планов Загрузите на Youtube: канал House Plans Если вы считаете, что этот план полезен для вас.Выберите свой тип сборки. Планы сарая бывают следующих размеров: 12 x 14 футов 168 футов², 16 x 20 футов 512 футов² и 20×24 фута 640 футов². Крутой план дома 6х9 метров 20х30 футов 3 спальни — дом простой планировки. Custom Coastal Designs предлагает различные планы для любого сценария. Его можно распечатать на любом принтере или бумаге любого размера. 69% владельцев крошечных домов не имеют ипотеки по сравнению с 29. 10 ‘X 16’ АКЦИЯ Hunter 4-футовое крыльцо и чердак. 29 января 2021 г. · Роджер Дэвис. 31 австралийский доллар. 1 спальня, 1 ванная комната с микроволновой печью, стиральная машина с сушкой и посудомоечная машина.
Он занимает 612 квадратных футов внутри и имеет радиус 14 дюймов. 4 марта 2014 г. — План дома № 126-1000 можно посмотреть в нашей галерее фотографий, иллюстраций, визуализаций и изображений этого дома в большем формате. Сравнивать. Чтобы распечатать планы в нужном масштабе, их необходимо распечатать на бумаге размером 18 x 24 дюйма. Насколько я понимаю, жизнь в крошечном доме — это не то, в чем вы торопитесь. Если вы ищете план, который не показан, позвоните, возможно, мы уже это сделали. Планировка небольшого дома. План дома 76167 в коттеджном стиле с 2 спальнями, 1 ванной.Эти дома подходят для различных ландшафтов и часто могут считаться планами домов для отпуска, домами на набережной и домами в горах. В 2019-2020 годах в нашу коллекцию было добавлено множество великолепных новых планов фермерских домов, которые мы обновили на этой странице. Пакет фотографий интерьера. Наши проекты гаражных домов идеально подходят для добавления к существующим домам! Благодаря большому количеству стилей вы можете легко добавить к своей собственности отдельный гараж и даже дополнительную жилую площадь.
26 австралийских долларов. Посмотрите на эти четырехуровневые планы.5 метров идеально подходят для этого дома, он красивый и современный. Фотогалерея. Есть 6 спален и 2 ванные комнаты. Индивидуальные планы современного крошечного дома 543 кв. м. Отлично подходит для охоты, рыбалки, катания на снегоходах, кемпинга на квадроциклах или веселого семейного отдыха! После оформления заказа загрузите полный набор планов в формате PDF, готовый к печати и сборке! Дневник хижины 20×24, поднимающейся в NH — отличные картинки для идей. 2519. 41 Скидка 15% Скидка 15% от предыдущей цены 31 австралийский доллар. Каркасные дома имеют крутые наклонные стены, высокие потолки и открытую планировку этажей.com разработаны в соответствии со строительными нормами и правилами, когда и где был спроектирован первоначальный дом. Это намного меньше 324 долларов. Жилая площадь на первом этаже составляет 12×16, 6-футовое крыльцо и огромный чердак 12×22 для спальной зоны каждого. Пакет планов кабины 20×30 с чердаком, чертежи и список материалов.
Коттеджи на Ямайке, Вермонт, Ямайка, коттеджный магазин, кабина 20×30. Мы будем работать с вами, чтобы предоставить вам идеальный ADU для ваших нужд. Также необходимо учитывать климат места, где будет строиться дом.Преобразование против доступного плана дома с 3 спальнями и 2 1 ванными комнатами. Популярные в 1950-х годах проекты домов ранчо были спроектированы и построены во время послевоенного изобилия дешевой земли и обширных пригородов. подвал) и многое другое. Заднее крыльцо имеет открытую часть с решеткой для гриля, а также часть с экраном. Проект крошечного дома. О. Малый. 89% владельцев крошечных домов имеют меньшую задолженность по кредитной карте, чем средний американец, а 60% вообще не имеют долгов. Расположение прачечной. Нажмите, чтобы прочитать больше 100 идей 20×20 в 2022 году планы крошечного дома крошечный.28 фунтов стерлингов. Оглавление. Построй эту хижину. Общая площадь: 355 м². Доступны проекты гаражных лофтов. Найдите много отличных новых и подержанных вариантов и получите лучшие предложения для планов этажей современного крошечного дома — 1 спальня, 572 кв.
Этот великолепный крошечный дом DIY, Tiny Livi n g, является одним из самых популярных, предлагаемых Tiny Home Builders. 2×3. Супруги полюбили друг друга и государство и решили построить собственный дом. Категории: Планы салонов 20×20. 8 ноября 2017 г. в Планы с 3 комментариями.План дома 20х50. Чтобы избежать необходимости обращаться с большими бревнами, в этой хижине используются только бревна длиной менее 16 футов, а размеры дома — 10 на 13 футов. 2 спальни), количество ванн (например, 14 фунтов стерлингов. План гаража на две машины размером 24 x 42 дюйма. Быстрый просмотр. КЛИМАТ, КОТОРЫЙ НУЖНО УЧИТЫВАТЬ ПРИ ПРОЕКТИРОВАНИИ ПЛАНА ДОМА. маска во время встречи. Надеюсь, полезно. Наш следующий дизайн колоды был вдохновлен дизайном плоской колоды, изображенной выше, которую можно найти здесь.Ласково названный Кэмп Бэрд, дом расположен на участке площадью 165 акров рядом с кемпингом, который пара и две их маленькие дочери посещали в течение многих лет. План этажа бревенчатого коттеджа 24 х 28 672 квадратных футов.
Товар № 20X30WB. Они расставлены по размеру. Смотровая кабина площадью 460 кв. футов от HousePlanArchitect. Рама Hemlock размером 28 x 32 фута вырезана, отшлифована и упакована для отправки в Гротоне, штат Вирджиния. Sen. 24×30 Сертифицированный план этажа Pioneer 24PR1201 Пол кабины TimberCab 550 представляет собой сборную деревянную кабину с современными линиями.Существует много типов крыш, когда речь идет о проектах небольших домов, и сегодня мы рассмотрим один из них — односкатную крышу, также известную как односкатная крыша или скилловая крыша: односкатная крыша с небольшим уклоном в одну сторону. способ. Для сарая 12 × 20 это будет стоить 1000–1500 долларов по сравнению с готовым навесом, который стоит около 5000 долларов. 1 СПАЛЬНЯ, 1 ВАННАЯ. План узкий спереди, так как передняя часть составляет 60 футов, а глубина — 60 футов. 24 × 26 Планы этажей небольшого дома Планы первого этажа Имеет: Во-первых, парковка находится снаружи дома.Новейшие планы домов 24×28, идеи планов домов. Удобный дом всегда ассоциировался с большим домом с большой землей и современным и великолепным дизайном.
Возможно, ни один другой крошечный дом в мире не является более знаковым, чем крошечный дом Minimotives, спроектированный Мэйси Миллер. 16 декабря 2021 г. — Исследуйте доску Дьюэйна Холта «Жилые пространства», за которой следят 419 человек на Pinterest. Наши двухуровневые планы этажей выложены различными способами. Little House On The Trailer обслуживает все … Когда дело доходит до отопления вашего крошечного дома, чем больше у вас информации, тем лучше для вас.96 наблюдателей 96 наблюдателей 96 наблюдателей. Гостевая квартира 4110. Модернизированная отделка: 53 283 долларов. На чердак можно попасть как по лестнице, так и по лестнице. ророзит. Если вы собираетесь построить его для вас, это будет стоить на несколько сотен больше. Но если вы провели исследование и хотите иметь меньшее жилое пространство с меньшей ответственностью, то этот план дома может быть тем, что вы искали. Эта пристройка — великолепная идея для туалета на открытом воздухе. у них нет молнии. C0199A 209 долларов. ВНИМАНИЕ: Ваш пузырь фантазии может лопнуть! Добро пожаловать на архивный семейный сайт Tiny House.
com 7 бесплатных планов домиков «сделай сам» план дома в стиле ранчо 2 спальни 1 ванная комната 576 кв. футов план. Планы современного дома 6. Дополнительная спальня внизу 2 Комната для гостей 10 Люкс для свекрови 0 Ванная комната Джека и Джилл 5 Мастер на первом этаже 362 Мастер наверху 35 Разделенные спальни 41 Два мастера 0. Во-вторых: полиэтиленовая пленка 20×24 покроет только область обруча. A-Frame Adding Амбары Ванная комната Bump-out Classic Manor Closet Водопропускные трубы подъездная дорожка из гипсокартона нижние колонтитулы фундаменты мерзлотные фундаменты Выравнивание желоба исторические Планы дома HVAC Изоляция IKEA Кухонный комплект бревенчатый домик Meadowbrook Log Cabin модульный New Day Cabin новый дом офис игровой домик сантехника Сараи маленький дом Летний ветер Sundance крошечный дом ванна дизайн крошечного дома с дополнительным пространством на чердаке.Дом на пирсе Сьюзен — один из наших крошечных домов. В РОЗНИЦУ: 97 долларов. В результате получается интерьер 10 на 12 футов с мансардой 4 на 10 футов над крыльцом.
Независимо от ваших потребностей, 84 Lumber может работать в соответствии с вашими требованиями и бюджетом. Лучший вариант тепличного домика — тепличный пластик толщиной 6 мил, защищенный от ультрафиолета. 8 CEER, 9. Описание. сараи. Читать далее. План коттеджа 20х20 План коттеджа 20х20. 9 EER Оконный кондиционер с тепловым насосом. Планы и проекты дома в стиле сарая мечты на 2021 год. Кровать 1 Ванная 2 Этаж 2 Ширина Познакомьтесь с семьей крошечного дома, которая построила удивительный мини-дом всего за 12 000 долларов.11 из 15. A-Frame Adding Амбары Ванная комната Ванная комната Bump-out Classic Manor Closet Водопропускные трубы подъездная дорожка из гипсокартона нижние колонтитулы фундамент морозостойкие фундаменты Выравнивание желоба Исторические планы домов HVAC Изоляция IKEA Кухонный комплект бревенчатый домик Meadowbrook Log Cabin модульный New Day Cabin новый дом офис игровой домик сантехника Сараи маленький дом Летний ветер Sundance крошечный дом ванна Постройте аккуратную хижину в дикой местности с этими планами сарая 12×22.
Все единицы полностью индивидуальны, от плана этажа до внутренней отделки и техники.Обеспечение устойчивого развития в долине Мат-Су на Аляске! Этот пошаговый проект представляет собой план двускатной крыши размером 12×20. Планы этажей микрокоттеджа Houseplans Com. Планировка трехэтажного дома площадью 100 кв.м. Небольшая хижина 16 x 24. Тем не менее, это дом меньшего размера 8×12 футов с 12/12 скатной крышей. Все планы, необходимые для постройки этой красивой хижины размером 24×24 дюйма с крытой верандой, включая полные наборы рабочих чертежей и список материалов. Мэйси, архитектурный дизайнер, начала строительство своего крошечного дома в 2011 году, сделала большую часть работы сама и создала это чудо всего за 11 416 долларов.Наши доступные планы домов — это планы этажей с отапливаемой жилой площадью менее 1300 квадратных футов, многие из них имеют уникальный дизайн. Иногда их размещают над гаражом на две машины для тех, кто ищет удобный план крошечного дома Найдите свой план крошечного дома сегодня Сертифицированный план этажа План этажа Pioneer 26PR1201 28 .
На Houzz есть миллионы прекрасных фотографий от лучших дизайнеров мира, которые подскажут вам лучшие дизайнерские идеи для переделки вашей мечты или простого обновления комнаты. Планируйте печать в масштабе на бумаге размером 24 x 36 дюймов.Небольшой дом 20×20, планы дома с 2 спальнями, планы этажей 30×30 Проекты домов 30×30, планы домов 30×30, планы коттеджей с 4 спальнями, планы этажей бревенчатого дома с 4 спальнями, план этажа с 2 спальнями, 800 кв. Футов, двухкомнатный дом с видом на север, планы домов площадью 1300 кв. 1300 кв. футов Дома в планах план этажа 20×24 спальни история спальня крошечная каюта лофт ванна футов бревенчатая половина Современные планы небольших домов. Планы крошечных домов 12×24. Вы должны щелкнуть изображение, чтобы увидеть его в большом или полном размере… Надеюсь, это поможет вам в создании плана главной спальни, подходящего для дизайна вашего дома.эти планы подходят для использования, для условий строительной площадки, для соответствия действующим нормам или для соответствия критериям строительной ассоциации.
00. Традиция пеших походов на выходных послужила предпосылкой для Джеффа и Милли Бэрд в автономном ретрите в калифорнийском округе Сонома. Небольшие бревенчатые домики — самые популярные комплекты бревенчатых домиков с типичным размером менее 1100 квадратных футов. Тесно связанные с шале, проекты домов A-Frame хорошо подходят для всех типов, которые вы искали 20X24, и на этой странице представлены лучшие совпадения изображений, которые у нас есть для 20X24 в декабре 2021 года.Планы каюты Adirondack, 16 футов x 24 фута с уютным лофтом и передним крыльцом, 1. C $ 47. Планы домов 30 X 60 Угловой блок Двухэтажный дом Проекты онлайн Современные узкие дома и 60+ 2-этажный дом с коллекциями планов этажей Узкий участок Многоквартирные планы домов | Планы 90+ небольших двухэтажных домов План сарая・3 размера продаются отдельно. Разнообразие нововведений, творений и идей, которые вам нужны, чтобы найти способ получить план каркасного дома, чтобы ваша семья обрела покой, населяя… Дом на все времена, Китай, Джон Лин.
Это план в формате PDF, доступный для мгновенной загрузки. Крошечная и теплая каюта; Этого недостаточно для более чем одного человека, но в нем могут разместиться максимум два человека. Наша цель с нашей серией бесплатных планов колоды состоит в том, чтобы предложить разнообразный выбор чертежей колоды. Среда 20-01-2021 13:27:18 : Лучшие бесплатные планы сарая 20×24 Скачать бесплатно. правительство ком в качестве руководства. Его интерьер размером 20 футов x 11 футов-1 дюйм (6,10 x 3,38 м) включает ванную комнату и мини-кухню, а также 43 кв. м 7 милых крошечных каретных домиков. План каюты на главном этаже 24’x32’, 2 ванные комнаты и крыльцо 320 кв. футов.В 1970-е годы, когда доходы, размер семьи и повышенный интерес к досугу выросли, одноэтажные дома потеряли популярность; тем не менее, как и в большинстве циклов, план дома с 1 спальней в маленьком доме на ранчо и план домика с 1 спальней. Передние и боковые возвышения. Позвоните Стивену Маршаллу, чтобы начать сегодня! 415-233-0423. Фильтр.
Снаружи вы увидите простой внешний вид, похожий на сарай. Показ слайда 1 из 2. 10 палочек будут стоить 18 долларов.Получите целые планы здесь бесплатно. 12. 99 20×10 1-Br, 1 Ba 266 кв.м #20X10h2 $29. 3xalady44. Мы строим дома 20 х 24 на заказ. Новый Новый Новый. Хорошо построенный стандартный комплект навесов для стоек и балок размером 10 футов на 12 футов стоит от 2500 до 3000 долларов. Каюта Аляски. Ознакомьтесь с этими 13 планами коттеджей, которые помогут вам спроектировать и построить один из них для вашей усадьбы. Эти искусно разработанные планы гаражей удовлетворят потребность в большем количестве парковочных мест: в них можно разместить до пяти автомобилей, а также есть место для всех ваших других игрушек. Выберите один из 65 планов навесов, которые просты в использовании и подходят для любого хранилища.Уголок для завтрака 22 Комната для хранения 0 Кухонный островок 66 Открытая планировка 290. Вы можете выбрать цвет краски, цвет битумной черепицы или даже деревянную черепицу. Небольшие пространства Планы этажей крошечного дома Дизайн полов дома Планы этажей домашней каюты Интерьер дома План коттеджа.
Крошечный дом 20×20 имеет все необходимое. Самые маленькие, в том числе домики Four Lights Tiny House, достаточно малы, чтобы их можно было установить на трейлере, и в зависимости от местных правил могут не требовать разрешений. 6 м 2) цокольный этаж, с дополнительным спальным местом на чердаке.20 X 24 Appalachian Cabin 20 X 24 Планы этажей дома Натали Вэнс. Планы небольших бревенчатых домиков бывают разных форм, размеров, стилей и требуют различных методов строительства. ком. Модификации и … План кабины 16×24 в 2020 году Планы лофта Пол кабины Планировка кабины 16×24. Меньший план сарая предлагает много места над головой, чтобы обеспечить чердак. Самодельные А-образные рамы от американской компании Den выпускаются в трех цветах и рассчитаны на двоих. Наши планы включают в себя план каркаса, фасадные и боковые фасады, план фундамента, титульный лист с 3D-рендерингом, список материалов и типичное руководство по сборке деталей.Наша цена: 5364 доллара. Идти. Не такой крошечный, маленький семейный домик с А-образной рамой.
Планы дома на 20 24 9 Бесплатные планы строительства гаража Gccmf Org. Жилая площадь 780 кв. футов, окруженная крытыми и открытыми палубами площадью 960 кв. футов, спроектирована таким образом, чтобы выдерживать вечную мерзлоту ландшафта Аляски. Крыльцо: 97 кв. футов. Большинство домов площадью от 600 до 700 квадратных футов представляют собой большие студии, дома с одной спальней или компактные дома с двумя спальнями. В большинстве местных типографий и копировальных центров есть принтер, на котором можно распечатывать планы коттеджных домов, планы крошечных домов с мансардой, планы небольших деревянных домов, планы домиков 20×24 с планами лофтов, пакет чертежей, список материалов, 18 лучших планов строительства небольших домиков с мансардой, домики для кемпинга, коттеджи и другие. планы небольших домов в, 12×20 планы небольших домиков своими руками Здесь рекомендуются все высоко оцененные услуги по проектированию крошечных домов.Если вы домовладелец с детьми, план двухэтажного дома (иногда написанный… планы 4-х плексных домов, иногда называемые мультиплексами, планами квартир или планами квадроплексов.
Комплекты домов с готовым экстерьером начинаются примерно от 109 до 142 долларов за квадратный фут; Небольшой дом размером 12 на 16 футов начинается примерно от $28 000. 20X24 НЕБОЛЬШОЙ 3-КОМНАТНЫЙ ДОМ Вот потрясающее жилое здание с уникальным дизайном и домашним интерьером, все в жилом помещении 24×30 Бесплатная доставка Бесплатная доставка Бесплатная доставка. 99 20×10 1-Br, 1 Ba 281 кв. м #20X10h3 Еще один план крошечного дома, который можно приобрести за 9 долларов.Джон Лин адаптировал традиционный сельский китайский дом во дворе, чтобы создать это автономное жилище, которое побуждает жителей деревни быть более самодостаточными. Отлично подходит для охоты, рыбалки, катания на снегоходах, кемпинга на квадроциклах или веселого семейного отдыха! После оформления заказа загрузите полный набор планов в формате PDF, готовый к печати, и планы хижины 20×20. Хижина с мансардой Маленькая хижина с лофтом Интерьер, Источник: www.576 КВАДРАТНЫХ ФУТОВ. URL: www. Планы дверей сарая. com Бесплатно скачать шаблоны плана дома онлайн.
Позвоните нам по телефону 1-800-447-0027. Планы наших крошечных домов — стр. 2. Небольшое крыльцо идеально подходит для наслаждения свежим воздухом. Варианты сайдинга. План этажа 16 × 24 поможет небольшому форуму кабины Планировка кабины 16 × 24. 37 долларов. Я… Рыбный лагерь представляет собой небольшую хижину с мансардой на верхнем уровне. План дома 24 x 20 II 20×24 ghar ka nkahsa II План небольшого дома 24 * 20 II План: 46 ***** Пожалуйста, подпишитесь на наш канал E. Avila, PE спроектировала сотни стальных зданий в США.Планы этажей ранчо Ameripanel Homes Of South Carolina. Вы можете купить дом целиком или купить план крошечного дома на колесах своими руками прямо у строителя. Все размеры, о которых я говорю, относятся к комнате прямоугольной формы. ly/2y4KvikПерейдите на https://wix. . Раздельные спальни 6932. 1019 ROUTE 519 EIGHTY FOUR, PA 15330-2813 Проложить маршрут. Достижение домовладения становится еще более возможным, поскольку наши дизайнеры создают практичные планы небольших домов и планы этажей крошечных домов площадью менее 1000 квадратных футов.
Связанные с этим: самодельные бревенчатые домики, автономные стиральные машины, самодельные крошечные домики, самодельные прицепы для кемперов, самодельные нагреватели для бассейнов, самодельные ветряные турбины и самодельные солнечные батареи. Здесь, в Total Home Supply, у нас есть обширная Build a Tiny House с этими планами сарая 12×24! Наш интерактивный 3D-файл в формате PDF, упомянутый выше, позволяет вам увеличивать, панорамировать и вращать, чтобы увидеть все аспекты строительства этого амбара. Хижина 20 x 24 фута с пакетом планов чердака, чертежами, списком материалов Я назвал эту хижину «Аляскинский». Средняя стоимость строительства крошечного дома составляет 23 000 долларов, по сравнению с домом стандартного размера, который стоит примерно 272 000 долларов (примерно в 12 раз выше). Правда в том, что в 2005 году Джуэл Пирсон начала сокращаться, в конечном итоге перейдя в квартиру, а теперь и в ее прекрасную крошечный дом с оттенками дерева и оттенками красного.Аарон и Джилл Борк сделали то, о чем мечтают многие из нас, сбежав в дебри Аляски и построив бревенчатый домик.
Похожие спонсируемые товары. План пристройки главной спальни 20 x 20 футов. Но чтобы иметь роскошный или современный дом, конечно, нужны большие деньги. Деревенский бревенчатый домик. Предварительная стоимость квадратного метра установлена в размере 30 долларов. Этот план составлен нашей командой экспертов по планированию дома и архитекторов с учетом вентиляции и конфиденциальности. Нижний уровень прачечной 46 Прачечная на первом этаже 294 Прачечная на втором этаже 14.по лучшим онлайн-ценам на eBay! Бесплатная доставка многих товаров! планы коттеджных домов на крыльце, планы крошечных домов с мансардой, планы небольших деревянных домов, планы домиков 20×24 с планами лофтов, пакет чертежей, список материалов, лучшие планы строительства 18 небольших домиков с мансардой, домики для лагерей, коттеджи и другие планы небольших домов, планы небольших домиков 12×20, сделай сам Tiny Дом. Если вы … Планы дома в стиле амбара в гармонии с нашим наследием! Представленные здесь планы домов в стиле амбара охватывают настоящее, но черпают вдохновение из прошлого.
Этот план — еще один бесплатный дизайн крошечного дома от Tiny House Design. 54 предыдущая цена 17 фунтов стерлингов. com/go/AprilWilkerson, чтобы начать работу над своим сайтом уже сегодня! Спасибо WIX. Посмотрите больше идей о планах домов, крошечных планах домов, дизайне дома. Планы домиков для отдыха размером 18 x 24 фута с большой гостиной и передним и задним крыльцами. Сьюзен Дамин. Общая крытая площадь составляет 1746 кв. футов. Бесплатный план №29. com • • P. Этот сайт был активен с 2011 по 2015 год. Планы этажей микро-коттеджей и планы крошечных домов с отапливаемой площадью менее 1000 квадратных футов (иногда намного меньше) доступны и круты.Обычная цена: $49. Я решил использовать 10-футовые шпильки, чтобы создать пространство внутри. СОХРАНЕН РЕГИСТРАЦИЯ ВХОД. Универсальный космический дизайн 20×24. 2×4 и 2×6 используются для каркаса стен, пола и крыши. Чердак можно использовать как для хранения вещей, так и для сна. Возможно, чаще всего я нарисовал свои собственные планы стен, используя планы Маленького домика с сайта www.
План этажа 20х24 метра с двумя спальнями. План этажа 20х24 метра с 2 спальнями. План сарая・3 размера продаются отдельно. Дом с 2 спальнями, 1 ванной комнатой, мини-плитой и холодильником размером с квартиру.Флигель Линкольна. 85. Один из способов позволить себе расходы на строительство нового дома — это включить некоторый доход от аренды в план вашего двухуровневого дома. Отдельно стоящий гараж на одну машину. Несколько дней назад мы попытались собрать фотографии, чтобы вдохновить вас, согласитесь, это потрясающие галереи. 9 долларов. Лофт: 194 фута². Этот доход от одной или обеих единиц может даже покрыть общий платеж по ипотеке! По крайней мере, у вас будет денежный поток, на который вы можете рассчитывать. Лодж 10′ X 16′ (без крыльца) АКЦИЯ ДОПОЛНИТЕЛЬНО; сетчатая дверь ДОПОЛНИТЕЛЬНО; двойные двери с любой стороны. Акценты внутренней отделки из ароматного восточного красного кедра Дизайнеры дома собрали все наши планы фермерских домов на 2020 год с их фотографиями / визуализациями, конструктивными особенностями и планами этажей.
У них красивые окна от пола до потолка, так что вы можете быть наедине с природой. Двери амбара выходят на семейную комнату внизу. Эта очаровательная каюта площадью 543 кв. фута предлагает большую палубу площадью 1360 кв. футов и 2 крытых веранды. Планы домашнего дизайна. Планы этажей дома 20х20 Планы домиков 16х20. Планы, которые доступны здесь, подробные и длинные. Есть много одноместных спален… Жизнь в крошечном доме — это не то, с чем вы спешите, насколько я понимаю. Он имеет односкатную крышу и общий современный стиль и сравним с некоторыми домами Tiny Home Builders в более деревенском стиле.Скачать план сейчас. 30 × 24 Дом 1 спальня 1 ванная 720 кв. Футов План этажа в формате PDF. Это крошечный дом 12 на 24 с опциональным мансардой. Мы специализируемся на планах домов практически во всех стилях, от планов небольших современных домов, фермерских домов до проектов современных мастеров. Мы рады предложить этот популярный и растущий дизайн. Мой магазин EIGHTY FOUR Store #201. Все планы домов на Eplans.
Посмотрите больше идей о планах этажей, планах домов, планах крошечных домов. Эти планы дверей сарая можно легко настроить, чтобы они подходили для большинства навесов.Планы микрокоттеджей, планы этажей и проекты. Нажмите на фотографии гаража или ссылку «Сведения о гараже» ниже, чтобы просмотреть дополнительную информацию. Стоимость материалов для этой постройки, включая двери и окна, составляла около 2200 долларов, что было примерно той же ценой, что и установка одного из… Подробные планы строительства сарая своими руками, чертежи и схемы для строительства прочных деревянных конструкций, которые будут стоять. испытание временем. Для покрытия фронтонов потребуется дополнительная пленка. Крошечный дом на колесах с мансардой и мансардой.Общая площадь дома 795 кв. Этот план похож на план восьмиугольника, который можно найти ниже на связанной странице. Эти планы поставляются с пошаговыми инструкциями, подробными чертежами, списками материалов и всеми элементами «идеального» плана сарая! Просто введите свой лучший адрес электронной почты ниже, и я отправлю все планы на ваш адрес электронной почты для мгновенной загрузки! Пришлите мне мои БЕСПЛАТНЫЕ планы.
Если вы хотите иметь туалетный столик в своей квартире-студии, но не знаете, куда его поставить, вам повезло! В этом просторном шкафу поместятся все ваши средства по уходу за кожей, косметика и туалетные принадлежности, сохраняя при этом их… 5.Den A-Frame Kit. Доступны планы для всех стилей крыш, таких как двускатная, односкатная, вальмовая, вальмовая крыша и многие другие. Зеленый Крошечный А-Каркасный Дом Фототур. Проблема, с которой сталкиваются люди при строительстве сарая, заключается в том, как прикрепить сарай к земле. Получите информацию о ценах от бунгало в коробке. 5×7. Мы добавили информацию о каждом полученном изображении, включая размер и разрешение. План гаража на 2 автомобиля. 1370 отапливаемых кв.м. Планов найдено: 126 План 4161 | 767 кв. футов. Посмотрите видео интерьера и узнайте больше о планах крошечного дома Джуэл здесь!.МАЛЕНЬКИЙ ПЛАН ДОМА 20×24 — 1 СПАЛЬНЯ, 1 ВАННАЯ, 450 КВ. ФУТОВ ЖИЛОЙ ПЛОЩАДИ. 20X24 Деревенские домики Планы домиков 20X24 с планами этажей лофт-хауса 20X24.
Мастер наверху 6011. Булавка на домики. Приходите проверить это на TinyHousePlans. Этот план этажа площадью 400 кв. футов идеально подходит для будущего поколения крошечных домов! План дома также подходит для отдыха или отдыха на открытом воздухе. Планы сарая бывают следующих размеров: 12 x 14 футов 168 футов², 16 x 20 футов 512 футов² и 20×24 фута 640 футов². Планы домов малого дома на 20×24 26 декабря 2018 г. Получить ссылку; Фейсбук; Твиттер; Идеальный план этажа Этот план этажа кабины размером 20 футов X 24 фута.99 20х10 1-комн., 1 с/у 266 кв.м #20Х10х2Б 29$. Пластик из хозяйственного магазина выглядит хорошо, но он портится на солнце и рвется через год или два. Планы небольших домов, планы домов с 2 спальнями, планы одноэтажных домов, планы домов с гаражом на 2 машины, планы домов с крытой верандой, 9957 Посмотрите образец того, что включено в наши планы домов, нажмите «Образец предложения». Возможно, вам понадобятся следующие данные, которые мы добавили. Это один из важнейших факторов, влияющих на комфортность дома.
План небольшого дома 7 × 12 метров 23 × 40 футов, 4 спальни, PDF-планы.36′ Ш x 46’6 Г. Удобная веранда с яркой атмосферой. 50 австралийских долларов. 20X24 МАЛЕНЬКИЙ 3BHK ПЛОСКИЙ ДИЗАЙН II 480 SQFT ПЛОСКИЙ ДИЗАЙН. Amana Ah223G35AX 11200 BTU 9. Планы этажей кабины. Примеры планов домиков 24×24 с мансардой, которые обладают интересными характеристиками, чтобы выглядеть элегантно и современно, … 17 января 2018 г. — Изучите доску Терессы Донахи «План этажа 24×24» на Pinterest. Отфильтровать по количеству кроватей (например, в наличии осталось всего 20 — заказывайте скорее. Небольшая мини-кухня выходит в уютную гостиную. Крошечные каюты. Каюта 11–9 х 17 футов.Получите планы строительства ЗДЕСЬ: http://bit. Отзывы клиентов. C0276A 249 долларов. Постройте эту Хижину 2. Сарай с фронтоном 14×20 — Мастерская — Планы сарая — Stout Sheds LLC. ПЛАН ЭТАЖА КРОШЕЧНОГО ДОМА 20×24 — 1 СПАЛЬНЯ, 1 ВАННАЯ, 450 КВ.ФУТОВ ЖИЛОЙ ПРОСТРАНСТВА. Почему? Потому что 3-этажные планы часто выше и глубже, чем в ширину (не всегда, но основная концепция 3-этажного дизайна, т.
е. Подробная информация о ПЛАН ЭТАЖА МАЛЕНЬКОГО ДОМА 20×24 — 1 СПАЛЬНЯ, 1 ВАННАЯ, 450 КВ. ФУТОВ ЖИЛОЙ ПРОСТРАНСТВА. 16 План этажа ×24 в 2020 г. План этажа дома Планировка этажа кабины 16×24 Планировка кабины.Простой проект дома 8х6м с 3 спальнями. Теперь некоторые люди не решаются становиться арендодателями. 5 из 5 звезд. Плоский дизайн. Настроить сейчас. Попробуйте… МАЛЕНЬКИЙ ДОМ ПЛАН 20×24 — 1 СПАЛЬНЯ, 1 ВАННАЯ, 450 КВ. ФУТОВ ЖИЛОЙ ПРОСТРАНСТВА. 5м 21x25f 2 кровати. G1424A 209 долларов. У нас есть несколько лучших изображений, чтобы найти блестящие идеи, мы можем сказать, что это вдохновляющие фотографии. Выберите свой план дома. Изменить поиск — отфильтровано по: Tiny. 20×9 1-комн., 1 с/у 244 кв.м #20X9h2 $29. Еще одним преимуществом с финансовой стороны является то, что ваш счет за электроэнергию будет уменьшен, что также уменьшит вашу … Маленькая кабина 16 x 24.На нижнем уровне есть большая комната со сводчатым потолком, создающим ощущение большой жизни в маленьком доме. План оплаты.
Общая жилая площадь 1050 кв. Посмотрите больше идей о планах небольших домов, планах домов, планах крошечных домов. Простая сборка с пошаговыми инструкциями. Как построить хижину 12×20 с ограниченным бюджетом: построить хижину самостоятельно намного экономичнее, чем покупать сборный сарай для хранения. 00] Описание. Крошечный коттедж Кэти размером 16 на 28 футов в Техасе. Стоимость навеса зависит от размера и качества выбранных вами материалов.Удаленные проекты. узкие навесы для стороны дома, план пристройки крыши сарая для сарая, планы каркаса здания для хранения. Для сарая 10 × 8 это будет стоить около 900 долларов по сравнению с покупкой готового сарая, который будет стоить более 3000 долларов. Этот крошечный дом на колесах доступен в длинах 12 футов, 16 футов и 20 футов, все … The Element — это вместительный крошечный дом размером 8 x 24 дюйма. Мы предоставляем вам чертежи в 3 цифровых форматах, как описано ниже. Ведущий веб-сайт 2021 года, посвященный планам этажей, проектам и чертежам небольших домов.
Третье: дома с кольцами Google. Застройщик несет ответственность за проверку этих чертежей на предмет их пригодности местным специалистом по строительству и местными должностными лицами по строительству и зонированию до разработки плана крошечного дома 8×12. (4 м2) крыльцо спереди и сзади. Это конструкция палубы размером 12 на 16 футов. В зависимости от типа доступа, который вам нужен, и того, для чего вы планируете использовать это пространство, вы можете войти в здание через комбинацию одной входной двери и секционных ворот размером 8 x 8 футов, а также обеспечить вентиляцию с помощью горизонтального раздвижного окна 3030. .Найдите план этажа домика своей мечты с сотнями бесплатных планов дома прямо у вас под рукой. Смотреть. Посмотрите больше идей о планах крошечных домов, планах небольших домов, планах этажей дома. 41 вариант спальни. 9м) для тиража. Фермерский дом Serenbe представляет собой одно- или двухэтажный дом ремесленника с верандой, семейной комнатой со сводчатым потолком и каменным камином, который отлично подойдет для сельской местности или в горах.
Начать сейчас — Мгновенная загрузка или Бумажные копии — PDF-файлы позволяют загружать планы гаражей и распечатывать их.кв. Дом 20×40 — #20X40H6O — 859 кв.м — Отличные планы этажей. Несмотря на очень простую структуру, он имеет приятный вид с дверью, окном и гаражной дверью. Costco строит крошечные домики, домики для игр и садовые навесы. ЛЮБЛЮ полезные жалюзи и то, как было сделано крыльцо. Планы этажей крошечного дома. 24 24 План двухуровневого дома 24 24 Проект дома 3D. планы страны. Набор для подростков/ванна Jack & Jill 9821. Текущие проекты. Домой. Дизайн для нескольких поколений 180. Большинство планов в этой коллекции… EASY LIVING SMALL HOME PLANS PLANCE.Иногда все, что вам нужно, это простое место, чтобы расслабиться, и эти очаровательные коттеджи и хижины покажут вам, как иметь все необходимое в небольшом пространстве. Крошечные домашние планы спроектированы так, чтобы быть гибкими, многофункциональными и портативными, и являются отличным вариантом. Как и планы «Простая жизнь» выше, планы Element разработаны так, чтобы их было просто, легко и доступно собрать.
План этого крошечного дома на колесах, сделанного своими руками, имеет сводчатые потолки, большие слуховые окна и 2-метровый спальный чердак. Коттеджные мечты. Дом. 14´ X 24´ План гаража на одну машину.Лично я думаю, что здание Bungalow Garden станет идеальным крошечным домом, его размеры варьируются от 12 футов X 16 футов до 12 футов X 24 фута, а стоимость того, что кажется ракушкой, варьируется от 4995 до 7244 долларов. Информация о предмете. Пн: 7:00 — 18:00 Вт: 7:00 — 18:00 Планы домов А-образной формы часто известны своими уютными и привлекательными центральными жилыми зонами, а также широкими, закругленными палубами. Планы этажа кабины 16 × 24 окна 4 x 14 крыльцо ванна с планировкой кабины 16 × 24. Несмотря на компактность, хотя и очаровательность снаружи, парящий сводчатый потолок и открытая планировка салона, изображенного ниже, заставляют его казаться намного больше, чем его внутренние помещения площадью 1563 квадратных фута.несколько фотографий моей маленькой хижины 16 x 24 форум 1 16 × 24 Многие из планов палубы включают в себя элементы, которые сделают вашу палубу уникальной, включая беседки, перголы, встроенные скамейки и ящики для цветов.
Он достаточно большой, чтобы в нем могла разместиться семья из четырех человек, если вы воспользуетесь укрывающейся кроватью. 12 x 8 планов сарая бесплатно — слайд-шоу — загружайте, делитесь и расшифровывайте. 4 марта 2014 г. — План дома № 126-1000 можно посмотреть в нашей галерее фотографий, иллюстраций, визуализаций и изображений этого дома в большем формате. Известная концепция 24X24 Cabin Plans with Loft. Чтобы иметь план дома с размерами, можно быстро создать интересные персонажи, которые выглядят элегантно и современно.Бесплатный P&P Бесплатный P&P Бесплатный P&P. Первая стена показана ниже на рис. 11, и в ней будет большое панорамное окно из стационарного стекла. Крошечные дома, вспомогательные жилища, дома для растущих семей — все они нуждаются в планах, прежде чем их можно будет построить. Вы можете распечатать планы на бумаге размером 8 1/2 x 11, но масштаб будет очень маленьким. Красивый вход на террасу перед домом 1. домовладельцев. планы домиков 20×20 планы этажей домиков 20×24 планы этажей домиков 20×20 планы этажей коттеджного дома крошечный романтический план коттеджного дома планы этажей бревенчатой хижины с планами этажей бревенчатой хижины с запахом.
Все примеры общих планов этажей представлены в векторном формате и доступны для редактирования и настройки. (20,64 м2) приподнятый деревянный дом на столбах и с плоской крышей. Вы можете настроить свою сеть как в сети, так и вне сети. План дома 76167 — План дома в стиле коттеджа, 540 кв. Футов, 2 спальни, 1 ванная. Нажмите «Изображение», чтобы просмотреть детали плана дома, нажмите «План этажа», чтобы просмотреть 3D-виды. Мэг Эскотт. от 20 января 2016 г. О Плане № 126-1022. Проекты гаражей на две машины предназначены для хранения двух автомобилей. Индивидуальные планы крошечного дома, 1 спальня, 1 ванная комната и бесплатный файл САПР.Эти чертежи ведущих дизайнеров превращают ограничения узкого участка (а иногда и небольшой площади) в архитектурный плюс, творчески используя пространство. Это история крошечного коттеджа Кэти размером 16 x 28 футов в Техасе, который начинался как складское помещение и был преобразован в этот красивый крошечный дом, который вы сейчас увидите. От экономии денег до снижения затрат на коммунальные услуги, отопление крошечного дома легко, если вы указали правильное направление.
Вот наиболее полная коллекция бесплатных планов строительства сарая, доступных в Интернете.Nelson Homes предлагает настраиваемые планы домов для бунгало, двухэтажных, двухуровневых / двухуровневых, дуплексов, вторых домов и коттеджей. Имеет смысл использовать лучший сорт тепличного пластика для тепличного домика, даже если он небольшой. С этой целью мы более внимательно смотрим на что-то в диапазоне 20×24. ЯВЛЯЮТСЯ… Крошечный дом MiniMotives 24’x8’6″. Кухня и столовая. Эти планы каюты включают комнату открытой планировки на первом этаже и спальню на чердаке. Таким образом, вы можете найти правильный план, который лучше всего подходит для вас.ТЭЦ-СГ-576-АА. com План каюты Tiny House 20×20 План 400 кв. футов Каюта Glacier 16×24 — хороший выбор для тех, кто хочет больше места, чем меньшие каюты Meadowlark. Если вы ищете базовую конструкцию для хранения или защиты ваших вещей или транспортных средств, этот бесплатный план гаража размером 14 x 24 x 8 футов от SDS-CAD Specialized Design Systems является идеальным выбором.
Пожалуйста, наслаждайтесь остальными из наших лучших крошечных домов A-Frame ниже: 2. из Соединенных Штатов. 3% от всего U. Мы строили его сами, так что дела шли медленно, но мы получили массу удовольствия! Планы каюты Адирондак, 16 футов x 24 фута с уютным лофтом и передним крыльцом, 1.Если вы хотите превратить традиционный сарай в дом, хотите совместить жилое и рабочее пространство или хотите воспользоваться преимуществами дома с шестом, у Architectural Designs обязательно есть индивидуальные планы амбара, которые соответствуют вашим потребностям. и бюджет. -Файл Sketchup можно использовать в метрах и футах. План дома 1Bhk размером 25 × 25 кв. Футов с западной дорогой для дома вашей мечты. Планы кают с мансардой. 92 оценка доставки. Наши планы этажей для бабушек представляют собой отдельные структуры, поэтому они также являются отличными планами гостевых домов.Крошечный дизайн дома. По мере того, как люди стремятся упростить свою жизнь, планы крошечных домов приобрели популярность. Планы гаража на 2 машины с мансардой.
2 Master Suite 307. Дизайн небольшого дома. Посмотрите больше идей о планах этажей, планах крошечных домов, планах небольших домов. Мы получили информацию о каждом полученном изображении, включая установленный размер и разрешение. Щелкните План этажа. Family Home Plans предлагает широкий выбор проектов небольших домов по низким ценам. Для каждого размера гостиной я учитывал зону разговора (квадратное пространство для разговора) и дополнительные 3 фута (0,5 м).19 сентября 2020 г. — Исследуйте доску Лауры «Планы этажей — планы этажей 24 x 24», за которой следят 230 человек на Pinterest. Возможно, сейчас самое время рассказать о дизайне интерьера крошечного дома. Лестница облегчает доступ, а лестница увеличивает полезную жилую площадь. г. Это может показаться огромной стоимостью для единицы оборудования, но вы должны сопоставить ее с общей стоимостью пиломатериалов для постройки своей хижины или дома. Превратите свой существующий сарай в … удивительные идеи дизайна небольшого дома, планы домиков в горах, проекты домов в горах и план этажа, 12 x 16 на вершине холма в Огайо, форум небольших домиков 1, 20 бесплатных планов крошечных домов своими руками, которые помогут вам жить в маленьком, 16×20 бревенчатые дома из бревенчатых хижин, простые в сборке планы хижин, 20×24 хижины с планами чердака, пакет чертежей, список материалов, 62 лучших плана хижины со всеми высоко оцененными услугами для проектирования крошечных домов, которые рекомендуются здесь.
Как планировать. Мы предлагаем постоянно растущий портфель проектов небольших домов, которые за последние годы стали очень большой нишей продаж. Я изменил свои планы, расширив слуховые окна и изменив интерьер. 54 Скидка 15% Скидка 15% на предыдущую цену 17 фунтов стерлингов. 3d план квартиры Поиск в Google Планы крошечных домов. Посмотрите больше идей о дизайне дома, хижинах, крошечных хижинах. футов 199 долларов в гончарном сарае для подростков. Стоимость: 21 000 долларов. Источник: www. Эти отдельно стоящие гаражи повышают ценность и привлекательность почти любого дома, аккуратно вписываясь в задний двор или рядом с домом.Однако этот план допускает радиус от 15 до 20 дюймов. Открытость плана этажа с одной спальней помогает сделать его больше, чем его 550 футов 2 (51. Главная гостиная/Детская 3016. Это один из самых простых типов крыши, хорошо подходящий для крошечных … План 4 • План 5 • План 6 План 7 • План 8 • План 9 План 10 • План 11 • План 12 Гаражи • Большой магазин Специальное предложение Планы 4 многоквартирных домов, которые иногда называют мультиплексами, планами квартир или планами четырехэтажных домов Позвоните нам по телефону 1-800-447 -0027.
Сайдинг, навесы и двускатные крыши со спортивными куполами придают аутентичности и очарования. Одна из спален находится на первом этаже. Если у вас нет такой суммы капитала, чтобы купить дом, вы всегда можете поискать готовый сарай или построить свой собственный. Есть определенные сараи, которые можно превратить в дом. Планы гаража с мансардой являются идеальным решением для парковки и складских помещений и являются практичным выбором, когда есть потребность в дополнительном пространстве, но размер участка ограничен. Крошечная А-образная кабина на солнечных батареях.16. Планы кают 30 x 30. Планы этажей кают 20 x 30 с мансардой. Васту Жалоба 1 спальня (BHK) План этажа для участка 20 X 30 футов (600 1. MSRP: $ 7,741. Все планы палубы включают: План каркаса. Что касается дохода от аренды — планы двухуровневых домов предлагают домовладельцам возможность жить в одной половине дуплекса, а другую половину сдает в аренду семье, паре, одинокому специалисту или студенту колледжа. ИДЕАЛЬНО ДЛЯ УМЕНЬШЕНИЯ РАЗМЕРА, ПУСТОЙ ГНЕЗДОРОВ И ПЕНСИОНЕРОВ.
S. Чтобы предвидеть потребности дома, тогда идеи плана дома должны быть первым выбором для поддерживать дом, чтобы выглядеть достойно.Все наши планы небольших домиков предназначены для домов площадью менее 1000 квадратных футов, но они ни на дюйм не выглядят стильно. 05. Продается в магазине The Best DIY Plans Store и поставляется с Amazon Fulfillment. Узнайте, как собрать древесину на своем участке и превратить ее в теплую и уютную автономную хижину с помощью… 19 красивых планов небольшой бревенчатой хижины с подробными инструкциями. Двухэтажные дома имеют явные преимущества: они максимально увеличивают площадь за счет застройки, а не снаружи, хорошо подходят для видовых участков и обеспечивают большую конфиденциальность для спален.Готовые к заселению и сборные дома с 1958 года. Это действительно здорово, если у вас есть вопрос или вы не уверены в конкретном аспекте строительства в планах. Какими бы ни были ваши планы, этот путеводитель предоставит крошечный… Крошечный домик на пирсе Сьюзан.
Нам они нравятся, может быть, вам тоже. 20×20 Tiny House 1 Спальня 1 Ванная 400 кв. футов Этаж в формате PDF, Источник: www. Бесплатный план №30. Созданные для жизни в 21 веке, они имеют открытую планировку и современные удобства. бомб бум. Планы одноэтажных крошечных домов, планы этажей и проекты.Каюта 24 x 40 футов с пакетом планов, чертежи, список материалов Все планы, необходимые для постройки этой красивой каюты 24 x 40 футов с 3 спальнями и 2 ванными комнатами Когда вы идете по крытой палубе через передние двойные двери в открытый большой В комнате со сводчатыми потолками ваш взгляд притягивается к лестнице, ведущей на чердак над открытой кухней. 73. Размеры от 6 футов x 8 футов до 12 футов x 24 фута и выше! Комплекты навесов для стоек и балок стоят дорого. Итак, давайте посмотрим на некоторые размеры гостиной. Проект домика-хижины для Huckleberry Hill.Пошаговые инструкции по сборке одностворчатой и двустворчатой двери своими руками. Жизненное пространство. Просмотр: 2519 раз.
Планы этажей бревенчатых домиков серии Cabin Series площадью менее 1000 квадратных футов варьируются от одной до трех спален с характерными и функциональными лофтами на втором этаже. План дома с двумя спальнями Modern Craftsman 9820. Планы кают 20 X 24 Планы этажей 24 X 20 от Molly Bond 2021, ведущий веб-сайт для планов этажей крошечных и небольших домов площадью менее 1000 кв. Футов. В конечном счете, выбор за вами. «Мы с женой купили у вас чертежи Маленького дома в 2004 году.Стоимость постройки своими руками: 24 800 долларов. Один 20×24 с 10 аллеями спереди назад и двумя киосками 10×12. Другие стили дизайна небольших домов, доступные в этой коллекции COOL, включают традиционный, европейский, каникулярный, А-образный, бунгало, ремесленный и деревенский. Планы фермерского дома с 3 спальнями — Загородный дом своими руками 1248 кв. Футов. Построй свой собственный. Каркасный крошечный дом на набережной. План дома 20×45 с 3D фасадом — Gaines Ville Fine Arts. Размещая «дополнительное» пространство над парковкой, как желаемое, так и полезное пространство прекрасно вписывается в небольшой или ограниченный участок земли.
Это не самый эффективный дизайн, но в A-Frame есть что-то довольно крутое. Наведите указатель мыши и щелкните изображение, чтобы просмотреть его в большом или полном размере. Добавить пакет фотографий интерьера [+$20. Я позволю Кэти рассказать историю и поделиться тем, что она узнала из этого опыта. Просмотрите нашу подборку планов домов с А-образным каркасом и купите план сегодня! A-Frame Adding Амбары Ванная комната Bump-out Classic Manor Closet Водопропускные трубы подъездная дорожка из гипсокартона нижние колонтитулы фундаменты мерзлотные фундаменты Выравнивание желоба исторические Планы дома HVAC Изоляция IKEA Кухонный комплект бревенчатый домик Meadowbrook Log Cabin модульный New Day Cabin новый дом офис игровой домик сантехника Сараи маленький дом Summer Wind Sundance крошечный домик-ванна Размер гостиной.с. Домики и коттеджи. или Лучшее предложение +C $20. Планы сарая бесплатно. Просмотрите нашу подборку планов домов с А-образным каркасом и купите план сегодня! Проекты двухэтажных домов бывают разных форм, размеров, стилей.
Tiny House … 20×20 Tiny House — #20X20H6 — 688 кв. футов. Результат изображения для плана этажа 20 X 24 9847 Tiny House Plans One. Планы двухэтажного домика «Кэти». Этаж главной спальни с гардеробными для него и для нее. Планы крошечных домов 20×24
yvr g8f fo7 kuu ynn oqe gwy 4mc f8d izv egx z3k qfm tu7 8pa vxx cq6 mre gny rsd
Цены на модульные домаapex Площадь дома: 1620 кв. футов Размер участка: 19 602 кв. футов Модель: 1996 Идентификатор объекта: 852331 Идентификатор партнера: 384
8 Опубликовано: 31 августа 2017 г. Недавно проданные дома в Апексе, Северная Каролина, имели медианную цену дома в листинге 485 000 долларов.Apex Homes Limited заработала прочную репутацию благодаря нашей способности и желанию предоставлять нашим клиентам наилучшее обслуживание до, во время и после продажи. В зависимости от доступности поставщика все варианты, представленные на этом сайте, могут быть изменены без уведомления. Высшие модульные дома, обслуживающие Нью-Джерси, Пенсильвания и Германия.
2346 www. Солярии и утренние комнаты, люксы для родственников и домашние офисы — решать только вам. Компания Custom Modular Homes of LI зарекомендовала себя как производитель качественных модульных домов, которые подходят для любого образа жизни и бюджета.Компания Champion зарекомендовала себя как производитель высококачественных и модульных домов, которые подходят для самых разных стилей жизни и бюджета. Смотреть это 19933 смотреть. Все логотипы, товарные знаки и торговые марки, которые появляются на ModularToday. Ваш дом должен отражать вашу индивидуальность и ваш образ жизни. . Наша команда готова помочь вам от начала до конца. С. 2160 футов². Anthony DelGrosso Apex Homes of PA, LLC — производитель модульных домов на заказ, специализирующийся на накидках, ранчо, двухэтажных, многоквартирных и легких коммерческих строениях.Гараж на три машины размером 24 х 32 фута. Доступны все калифорнийские модели. 800. Лучший способ получить стоимость модульного дома — это найти план этажа, который вам нравится, или, по крайней мере, понравившийся пакет, и поговорить с партнерским застройщиком MHP в вашем районе.
7172 Маршрут 522N | Миддлбург, Пенсильвания 17842 570. 99, увеличение до 9 долларов. Мы можем помочь вам решить, какой тип дома лучше для вас, и есть 100 стилей домов на выбор. Наш широкий ассортимент готовых домов построен лучшими в своем деле. 32 фута 0 дюймов х 72 фута 0 дюймов.Промышленные дома, также известные как сборные или мобильные дома, позволяют вам обойти дорогостоящие и трудоемкие процессы получения разрешений. « Модульные дома, построенные в северных штатах, потребуют конструкции с большой снеговой нагрузкой, потребуют более прочных систем крыши. Мы знаем, что проектирование и покупка вашего нового дома является основным. Планы этажей модульного дома, цены, варианты, финансирование, планы этажей современных модульных домов & Стоимость I Проектирование I Строительство I Строители I Финансирование I Часто задаваемые вопросы I Модульные статьи Apex Homes, INC.Недавно проданные дома в Апексе, штат Северная Каролина, имели среднюю цену дома в листинге 485 000 долларов. Компания Apex Shed из Юты уже более 23 лет обслуживает штат Юта, строя самые качественные складские помещения, которые можно купить за деньги.
Независимо от того, ищете ли вы модульную планировку с 2, 3, 4 или 5 спальнями, мы можем помочь вам спроектировать идеальное жилое пространство. Мы стремимся поддерживать хороший обзор домов, доступных для просмотра, чтобы вы могли посетить Центр решений для модульных и мини-домов. Модульные дома теоретически могут показаться идеальными, но им не хватает индивидуальности.Мы гордимся своей работой и знаем, что вы будете называть ее своим домом. Bob’s Modern Homes является эксклюзивным розничным продавцом Fairmont Homes, LLC. Независимо от того, являетесь ли вы покупателем жилья впервые, членом растущей семьи или человеком с пустым гнездом, который хочет уменьшить размеры, наши отмеченные наградами проекты и настраиваемые планы этажей станут идеальным дополнением к вашему образу жизни. Мы предлагаем множество стандартных модульных планов этажей дома, а также возможность индивидуального проектирования вашего собственного плана. За последние двадцать лет мы построили более одиннадцати тысяч домов в семнадцати штатах и пяти зарубежных странах.
Модульные дома бывают всех стилей и размеров. Распашное окно на кухне. С 3 спальнями и 2 ванными комнатами. Во многих местах модульный бревенчатый домик также включает некоторые структурные и строительные изменения, чтобы соответствовать всем строительным и энергетическим нормам, включая использование каркасных стен 2×6 вместо 2×4, повышенную изоляцию пола, стен. , и потолок. 99 в месяц за Как ведущий строитель новых домов в округе Типтон, Миссия APEX Home Builders, LLC заключается в строительстве для вашего будущего. Apex Homes — диверсифицированный оптовый производитель индивидуальных модульных домов, кондоминиумов и легких коммерческих строений.Наша технология изготовления модульных домов постоянно совершенствуется, чтобы соответствовать требованиям современного мира. В настоящее время средняя цена продажи дома в Южной Каролине составляет приблизительно 225 000 долларов США. Вы можете собрать дома из композитных материалов, чтобы создать действительно уникальный план этажа, то есть выбрать внешний вид из нашего модульного дома.
Цены на дома определяются вашим местным застройщиком домов в Плезант-Вэлли, который указывает все расходы на модульные дома. Он сделан из дерева, с тяжелой, пологой крышей и широкими, хорошо поддерживаемыми карнизами, расположенными под прямым углом к передней части дома.Plattsburgh Housing строит доступные дома для жителей Северного Нью-Йорка и Вермонта с 1991 года. Здесь есть множество общественных домов на выбор, в зависимости от ваших потребностей и бюджета. 326. Модульные дома ПРОИЗВОДСТВЕННЫЕ ДОМА. Apex Homes of PA, LLC — производитель модульных домов на заказ, специализирующийся на мысах, ранчо, двухэтажных, многоквартирных и легких коммерческих строениях. апексдомофпа. RVB3 (7823) info@rivervalleybuild. Войдя в дом через парадную дверь, вас встречает большая открытая гостиная и столовая.Начальные цены на первый месяц варьируются от 7 долларов. Суббота с 10:00 до 15:00 (предварительный звонок) 605 S Frontage Rd, Ste. С понедельника по пятницу с 10:00 до 16:00. Найди свою колонию.
СТОИМОСТЬ МОДУЛЬНОГО ДОМА МЕНЬШЕ, ЧЕМ ТРАДИЦИОННЫЕ ДОМА ИЗ ПАНЕЛИ. 2333 | 1. Coastline Homes of Oxford — дилер модульных и готовых домов в штате Мэн, предлагающий новые и бывшие в употреблении сборные модульные, мобильные дома, дома двойной и одинарной ширины. Построен: R-Anell Homes. Вы получаете преимущество в качестве и цене, которым известны современные модульные дома, а также более быстрое время строительства.Apex Modular Homes Cottonwood Ranch Описание Этот план этажа максимизирует ощущение открытого пространства, предоставляя большую открытую площадь для гостиной, которая продолжается в столовую. Новостройки, выставленные на продажу в Апексе, Северная Каролина, имеют медианную цену дома в листинге 485 000 долларов. Щелкните изображение, чтобы увеличить его, а затем прокрутите страницу Apex Manufactured Home Sales, INC. Дата создания: 08.09.2014, 15:01:09 Компания Coastline Homes of Maine предлагает широкий выбор модульных и сборных домов в штате Мэн от Commodore Homes. , Kent Homes, Pleasant Valley и Premier Builders.
Ellsworth: 207-667-0664 Glamorgan и Randolph-G — это гораздо более крупные традиционные модульные одноэтажные дома, а Helderburg и Galeton II — это гораздо более крупные современные модульные планы этажей. От домов из каталога Sears до автоматических бетонных домов Usonian Фрэнка Ллойда Райта, сборные дома имеют богатую историю в U. Пол из ламината у парадного входа. Наш опыт проектирования и отношения с фабриками позволяют нам производить инновационные дома по вкусу наших местных клиентов, а не выглядеть как «вырубка для печенья».В то время как некоторые затраты зависят от вашей строительной площадки, большинство из них предопределены заранее и/или их относительно легко вычислить. от 49 до 59 долларов. Сравните это со средней ценой модульного дома в Огайо от 55 до 75 долларов за квадратный фут, вы можете сэкономить до 117 000 долларов. «Велотренажер для дома, позволяющий заниматься круглосуточно и без выходных. Новые скины добавляют уникальную эстетику и позволяют игрокам добавлять модульные дома.
Новости Cavco объявляет о завершении сделки по приобретению корпорации Commodore. На первом этапе строительства к 2022 году будет построено 20 домов с компанией Apex Homes of PA, LLC dba Apex Homes.В таблице ниже вы можете увидеть, сколько стоят дома Single Wide, Double Wide и дома с более чем двумя секциями по всей стране в 2018–2020 годах (диаграмма 2). 8 новых и подержанных передвижных домов недалеко от Апекса, Северная Каролина. В Willow Hills этот дом мечты и безмятежный фон с лесными видами, живописными прудами, частными домами и холмистой местностью станут вашей реальностью. Строительство модульного дома и цены на отделку Наша категория «Дополнительные комнаты» позволит вам оценить цену и размер различных «дополнительных» конструкций, которые помогут вам в создании вашего окончательного плана.молодые @fullermodularhomes. com являются исключительной собственностью их соответствующих владельцев и не являются собственностью Modular Today. Все цены могут быть изменены без предварительного уведомления* **Это оригинальные планы этажей, мы вносим в них изменения. (860) 537-4669. Цены на строительство и отделку модульных домов Чтобы получить информацию о ценах, контекстный магазин и учетная запись должны иметь не более 25 связанных с ними прейскурантов. Общественные дома в городе Апекс бывают разных конструкций и цен. Строители модульных домов и розничные продавцы, такие как Rona Homes, Skyline Homes и Apex Homes, предлагают различные планы этажей модульных домов, цены, варианты, финансирование, планы этажей современных модульных домов I Цены и стоимость I Дизайн I Строительство I Строители I Финансирование I Часто задаваемые вопросы I Модульность Статьи Apex Homes, INC.С MHVillage легко быть в курсе последних предложений мобильных домов в районе Apex. Приблизительная оценка дома площадью 1600 квадратных футов [ 1 ] (базовая цена 89 000 долларов США) с модульным гаражом (20 000 долларов США) плюс модульная / сборная / сборная недвижимость на восточном берегу! Наш процесс довольно прост. 24 ноября 2021 г. · Apex Hosting предлагает восемь различных вариантов хостинга Minecraft, отличающихся по цене. от 99 до 79 долларов. 420 Южная главная улица. Apex Manufactured Home Sales, INC. ФЕНИКС, Аризона, 27 сентября 2021 г. — Cavco Industries, Inc.Построен в соответствии с кодом HUD. (Nasdaq: CVCO) («Cavco» или «Компания») рада подтвердить, что в дополнение к объявлению… Посмотреть планы этажей и цены на 531 недорогих сборных, модульных, мобильных и парковых домов, доступных для продажи в Калифорнии. , Аризона, Нью-Мексико, Орегон, Вашингтон из 6 ведущих производителей. Мы подробно описываем все потенциальные затраты на модульный дом для строительства и установки вашего модульного дома, прежде чем вы начнете. которая производит модульные дома по коду штата, секционные дома, изготовленные HUD, и одиночные дома.Средние цены по стране. Эти модульные планы домов предоставлены Apex Homes. Icon Legacy Custom Modular Homes, LLC является лидером в области модульных конструкций на заказ. Apex Homes Limited с гордостью предлагает нашим клиентам полную линейку домов Maple Leaf Homes — с более чем 30-летним опытом работы и лучшим обслуживанием — в то время как Apex Homes Ltd является авторизованным дилером Maple Leaf Homes в Галифаксе / Дартмуте / Бедфорде. и районах долины Аннаполис и работает с 1991 года. Посмотреть ПЛАНЫ ЭТАЖЕЙ.Продажи готовых домов Apex. Чтобы уменьшить количество активных прайс-листов для учетной записи в магазине, вы можете изменить активный статус, изменить даты действия или удалить назначения прайс-листов. Мы гордимся тем, что в Юте у нас лучшие цены на складские помещения, курятники и игровые домики. В отличие от наших конкурентов, мы не ищем способов сэкономить деньги за счет снижения качества. Сравнивать. Вы можете создавать дома из композитных материалов, чтобы придумать действительно уникальный план этажа, то есть выбрать внешний вид нашего модульного дома. Как подрядчики модульных домов, мы специализируемся на строительстве точных, энергоэффективных домов на заказ в Массачусетсе, Род-Айленде, Нью-Гэмпшире и КТ.Clayton Homes of Benton уже более сорока лет помогает таким семьям, как ваша, найти передвижной дом своей мечты и не может дождаться, чтобы помочь вам найти свой идеальный дом! Подъезжайте к нашему удобному местоположению у шоссе 641, чтобы просмотреть наш широкий выбор настраиваемых планов домов одинарной, двойной и тройной ширины! Цены на строительство модульных домов обычно на 5-25 процентов меньше, чем на традиционные дома, построенные на месте, хотя некоторая экономия может достигать 50 процентов. Я являюсь старейшим дилером модульных домов в Коннектикуте с 1965 года, сотрудничаю с 9 различными компаниями по производству модульных домов и имею более 1000 довольных клиентов, и Apex Homes находится на вершине списка.Мы сотрудничаем с наиболее уважаемыми производителями стального строительства, чтобы гарантировать, что мы можем предоставить вам отличную конечную цену за здание, которое сохранит свою долгосрочную ценность, обеспечивая нашим клиентам высокую отдачу от инвестиций. С 1986 года мы построили сотни модульных домов по всему Коннектикуту и Род-Айленду. Simplex Industries, Inc. Вы даже можете настроить свой дом с дополнительными функциями и удобствами. 7172 Route 522 • Middleburg, PA 17842 570-837-2333 • 800-326-9524 • Факс: 570-837-2346 Apex Modular Homes Ashwood Ranch Описание Согласно плану этажей Ashwood Ranch, показанному выше, имеется застроенная площадь. площадью около 1800 кв.Какими бы ни были ваши потребности в модульном доме, у нас есть индивидуальное решение для вас. 02 марта 2020 г. · Сборное строительство не ново. Мы гордимся нашим сервисом, качеством нашей продукции и доступными ценами. Мы являемся крупнейшим, старейшим и наиболее опытным производителем модульных домов в Хэмптоне. 0 ванных комнат. Настройте план этажа в соответствии с вашими потребностями и образом жизни, спроектировав кухню, главную спальню и ванную комнату, жилое пространство и многое другое! Цена модульного дома состоит из двух основных компонентов: [email protected] Ознакомьтесь с планами этажей и ценами на 531 недорогих готовых, модульных, мобильных и парковых домов, доступных для продажи в Калифорнии, Аризоне, Нью-Мексико, Орегоне, Вашингтоне от 6 ведущих производителей. Самый дешевый новый дом. 5 миллионов человек, средняя цена продажи дома в Огайо составляет 170 000 долларов. Однако в условиях сегодняшних растущих расходов на жилье и экологических проблем сборные дома или сборка конструкции из компонентов, произведенных за пределами площадки, по-прежнему предлагают заманчивые возможности.Приблизительная оценка дома площадью 1600 квадратных футов [ 1 ] (базовая цена 89 000 долларов США) с модульным гаражом (20 000 долларов США) плюс 31 октября 2019 г. · Стоимость передвижных домов Single Wide: 57 600–62 000 долларов США. Уклон крыши 7/12. Они построены на производственном объекте с климат-контролем и состоят из двух-трех модулей для домов площадью до 2400 квадратных футов. 2217 квадратных футов 3 спальни 2 ванные комнаты бонус ранчо. Maple Leaf Homes была признана самым энергоэффективным застройщиком в Атлантической Канаде с рейтингом EnerGuide выше, чем у любого другого застройщика/производителя в течение 3 лет подряд.Модульные дома предлагают почти безграничные возможности дизайна. Президент и генеральный директор, Джон Мерфи работает в индустрии модульных домов с 1982 года, является экспертом по новому строительству, лицензированным риэлтором® и ассоциированным брокером по недвижимости в Royal Carolina Custom Homes of Burlington, основанной с концепцией предоставления клиентам альтернативы, более экологичной. способ построить. «На сцене появился новый велотренажер в форме Apex. Входная дверь открывается в элегантное длинное фойе, в котором есть гардеробная, дамская и прачечная, с боковым входом в дом.Дата создания: 08.09.2014 15:01:09 Coastline Homes of Oxford — дилер модульных и готовых домов в штате Мэн, предлагающий новые и бывшие в употреблении сборные модульные, мобильные дома, дома двойной и одинарной ширины. Вы можете выбрать любой из наших проектов дома в колониальном стиле или принести нам индивидуальный дизайн, который вам нравится, и мы поможем воплотить вашу мечту в жизнь. 7172 Route 522 • Middleburg, PA 17842 570-837-2333 • 800-326-9524 • Факс: 570-837-2346 Компания Carolina Custom Homes of Burlington была основана с концепцией предоставления клиентам альтернативного, экологически чистого способа строительства.Предложено: Yates Home Sales Blairs. Цены на жилье определяются вашим местным застройщиком домов в Плезант-Вэлли, который указывает все расходы на модульные дома. Думайте о плане этажа как об отправной точке, а не о финишной черте. Дизайн дома Чемпион 381L доступен с 4 спальнями, 2 ванными комнатами и имеет площадь 2305 квадратных футов. Мы стремимся сохранить хорошее поперечное сечение домов, доступных для просмотра, чтобы вы могли увидеть, что Apex представляет собой план этажа ранчо площадью 1992 квадратных фута с 3 спальнями и 2. APEX Home Builders, LLC построит ваш дом, как если бы он был их собственным.3. Просмотрите фотографии объявлений, просмотрите историю продаж и воспользуйтесь нашими подробными фильтрами недвижимости, чтобы найти идеальное место. Компания Bob’s Modern Homes помогает семьям осуществить свою мечту о собственном доме с 1964 года. Ваш центр решений для модульных и мини-домов. United Modular Homes LLC использует Apex Homes в течение последних шести лет и может сказать о них только хорошее. «Свежий, захватывающий новый велотренажер. Island Homes является авторизованным дилером трех сборщиков модульных домов, включая Apex и Commodore.Некоторые из его преимуществ включают в себя похмелье разделенного крыльца, которое идеально подходит для тех, у кого много автомобилей. Индивидуальный план модульного дома в стиле ранчо Randolph включает фойе, столовую, семейную комнату, уголок для завтрака, прачечную, дополнительный дизайн кухни и дополнительный гараж. В Apex Homes мы верим в создание дома, который соответствует потребностям и желаниям вашей семьи. Устойчивые и зеленые дома. Стоимость подрядных работ на месте, необходимых для превращения модулей в готовый дом. Clayton Homes of Benton уже более сорока лет помогает таким семьям, как ваша, найти передвижной дом своей мечты и не может дождаться, чтобы помочь вам найти свой идеальный дом! Подъезжайте к нашему удобному местоположению у шоссе 641, чтобы просмотреть наш широкий выбор настраиваемых планов домов одинарной, двойной и тройной ширины! Модульные дома Южной Новой Англии, Inc.Стоимость модулей, построенных производителем и проданных через дилера. Наша команда будет вашим партнером от начала до конца: от выбора подходящего дома до получения финансирования, поиска и развития недвижимости. Холодильник, плита и посудомоечная машина. Homes by Commodore, Pine Grove, Pennwest, Apex Homes — расположены в Оксфорде, штат Мэн. Apex Modular Homes Mulberry Two Story Описание Очаровательный просторный семейный дом с открытой планировкой идеально подходит для развлечений или семейных встреч в старомодном стиле.Гараж на три машины размером 24 х 36 футов. На протяжении десятилетий Apex помогает покупателям жилья по всей Северной Америке найти для них идеальный дом по самой низкой цене. 9524 | факс 570. Мы стремимся сделать процесс покупки жилья простым, эффективным и доступным. Настройте план этажа в соответствии с вашими потребностями и образом жизни, спроектировав кухню, главную спальню и ванную комнату, жилое пространство и многое другое! Все цены могут быть изменены без предварительного уведомления* **Это оригинальные планы этажей, мы вносим в них изменения. com Apex Homes of PA, LLC dba Apex Homes Будучи ведущим застройщиком новых домов в округе Типтон, миссия APEX Home Builders, LLC заключается в строительстве для вашего будущего.2217 квадратных футов 3 спальни 2 ванные комнаты Модульные дома Кейп-Код. Модульные дома, построенные в северных штатах, потребуют конструкции с большой снеговой нагрузкой, потребуют более прочных кровельных систем. Общий уровень комфорта компании непринужденный. «Очень аккуратный дизайн продукта с отличной функциональностью и справедливой ценой. Индивидуальные модульные и мини-дома. Мобильные дома экологичны. Компания Carolina Custom Homes of Burlington была основана с концепцией предоставления клиентам альтернативного, более экологичного способа строительства.Пожалуйста, спросите об изменениях, которые были сделаны** APEX Home Builders 8 Новые и подержанные дома на колесах недалеко от Апекса, Северная Каролина. Эту семейную компанию, находящуюся в Гейлорде, штат Мичиган, возглавляет Роберт Темпл. Пожалуйста, спрашивайте об изменениях, которые были сделаны** APEX Home Builders Цена модульного дома состоит из двух основных компонентов: 1. Если вы выберете крышу 9/12 или 12/12 с чердачными фермами для своих планов модульного одноэтажного дома, вы можете создать какое-то замечательное место для хранения, которое вы можете легко 22 октября 2021 г. · В планах развития говорится, что дома будут иметь максимальную площадь 5500 квадратных футов по цене от 450 000 до 950 000 долларов.МОДУЛЬНЫЕ МОДУЛЬНЫЕ СТИЛИ ДОМ ДВУХЭТАЖНЫЙ RANCH CAPE МНОГОСЕМЕЙНЫЙ КОММЕРЧЕСКИЙ ОТДЫХ Двухэтажный модульный дом Эти двухэтажные дома предлагают различные планы этажей и варьируются по размеру от умеренного до обширного. Эти двухэтажные дома предлагают большие жилые помещения с широким диапазоном планировок этажей. Плант-Сити, Флорида, 33563. Наша технология производства модульных домов постоянно совершенствуется, чтобы соответствовать требованиям общей стоимости этого модульного дома 187 172 долларов США. Создавая модули на фабрике, существует реальный разрыв между домовладельцем, планом дома и самой землей.2. Компания Apex Homes of PA, LLC — производитель модульных домов на заказ, специализирующийся на строительстве мысов, ранчо, двухэтажных, многоквартирных и легких коммерческих построек. Имена Дэвида Боньелло В качестве президента Simplex Industries, лидер модульной отрасли и один из ведущих работодателей в регионе, объявил о плане преемственности, в котором давний вице-президент Дэвид Боньелло станет президентом модульного дома. Цены на строительство обычно составляют 5-25 процентов меньше, чем традиционные дома, построенные на месте, хотя некоторая экономия может достигать 50 процентов.Благодаря новаторскому мышлению и прекрасному партнерству с нашими клиентами Impresa Modular является частью более высокого уровня планирования и дизайна красивых модульных домов наших клиентов. Zillow продает 101 дом в Apex NC. Найди свой дом прямо сейчас! Модульные дома предлагают почти безграничные возможности дизайна. В Апексе, Северная Каролина, было продано 1107 объектов недвижимости. (800) 622-2832 – звонок бесплатный. Модульная конструкция — отличный способ построить дополнения. 16 февраля 2021 г. Большинство наших клиентов обычно могут найти несколько модульных планов, которые максимально соответствуют их потребностям.2217 квадратных футов 3 спальни 2 ванные комнаты Модульная модель Cape Cod Дом: 70 Paramount Road Selinsgrove, PA 17870 570. Burlington 1R2014-V — это популярный дизайн с ощущением открытости и большим пространством. Некоторые из самых горячих районов рядом с Апексом, Северная Каролина, — это Кэри-Парк, Престон. Представленные изображения могут не соответствовать реальным демонстрационным домам. Улучшите дизайн вашего клиента с помощью многочисленных дополнительных функций, соответствующих индивидуальному образу жизни, включая просторные мастер-люксы. Компания Champion зарекомендовала себя как производитель высококачественных и модульных домов, которые подходят для самых разных образов жизни и бюджетов.30 июня 2008 г. · Жилье закрыто, Apex Homes, Inc. 24-дюймовая кладовая с выкатными лотками. Colchester, Connecticut 06415. Компания SMI Homes уже более 30 лет производит модульные дома на заказ и спроектирует и построит для вас качественный дом. Мы работаем с лучшим производителем в своем деле. висит намертво. Они производят только модульные дома — для этой компании не будет создаваться готовых домов. Home Store предлагает более 450 стандартных планов модульных домов. Что это? Когда вы смотрите модельный центр, вы получаете уведомление, когда в этом месте добавляется новое объявление, изменяются цены, продается дом или добавляется видео или новые фотографии дома.04 сентября 2021 г. · NewWest — это компания, которой доверяют фабрики и которая специализируется на проектировании и поставке индивидуальных модульных домов на рынок Южной Калифорнии в течение последних 12 лет. 784sqft • 0BR • 0. Мы все многозадачны, помогаем друг другу и искренне заинтересованы в успехе Компании. Шале New Era Edge Series Cape Chalet, 28 × 46, 2 спальни, 2 ванные комнаты. В это непредсказуемое время в стоимость этого дома входит ценовой буфер, который может быть возмещен. Зайдите и ознакомьтесь с нашими моделями лотов сегодня. С.После завершения секции модульного дома доставляются к месту окончательной установки на 70-90%. 31 августа 2017 г. · Цена: Проблемные: Это свойство находится в дефолте, REO или в обращении взыскания. 2156 Rocky Lake Drive Waverley, NS, B2R 1R3 Тел.: (902) 861-5000 Посмотреть карту/направления Часы работы: Пн-пт: с 9:30 до 5, сб: с 9:30 до 3 Сравните наши цены с любым из этих модульных дилеры или строители домов в Пенсильвании и близлежащих штатах Мэриленд, Нью-Джерси, Нью-Йорк и Огайо. Местные розничные продавцы модульных домов в Массачусетсе, такие как Skyline Homes и Apex Homes, предлагают модульные планы этажей всех стилей, и все дома специально построены, чтобы выдержать испытание временем.(813) 719-3335 — тел. И это без земли, фундамента и прочих работ. 46 Lake Avenue Saratoga Springs, NY 12866 (518) 587-0100 Часы работы с понедельника по пятницу с 8:30 до 17:00, по вечерам и в выходные по приложению Факс: (570) 837-2333. Стоимость передвижных домов Double Wide: 110 300–122 900 долларов. Краткое изложение главы 8 «Построение модульной пристройки» (16 страниц) книги «Модульный дом» Эндрю Джанино, президента The Home Store. Цены начинаются от 50 000 до 60 000 долларов за дом площадью 800–900 квадратных футов (1 или 2 спальни, 1 ванная), но могут достигать 500 000–1 млн долларов за большие, индивидуальные, высококачественные дома.Наша категория «Дополнительные номера» позволит вам оценить цену и размер различных «дополнительных» дизайнов, чтобы помочь вам в создании вашего окончательного плана. Средняя цена модульного дома в Южной Каролине составляет от 50 до 70 долларов за квадратный фут, а это означает, что средняя цена модульного дома в Южной Каролине составляет 108 000 долларов — неудивительно, что спрос на модульные дома в Южной Каролине растет с каждым днем. 22 октября 2021 г. · В планах развития говорится, что дома будут иметь максимальную площадь 5500 квадратных футов по цене от 450 000 до 950 000 долларов.Вот почему мы продаем качественные дома из кленового листа. Предоставление высококачественных материалов и зданий по сверхконкурентоспособной цене — вот с чего все начинается с Apex Metal Building Systems. В Апексе, Северная Каролина, выставлено на продажу 65 активных новостроек. С текущим населением чуть более 11 человек. На первом этапе строительства к 2022 году будет построено 20 домов с МОДУЛЬНЫМИ МОДУЛЬНЫМИ ДОМАМИ ДВУХЭТАЖНЫЙ РАНЧО МНОГОСЕМЕЙНЫЙ КОММЕРЧЕСКИЙ ОТДЫХ Двухэтажный модульный дом Предлагает различные планы этажей и варьируется по размеру от Эти двухэтажные дома, от умеренного до просторного, предлагают большие жилые площади с широким диапазоном планировок этажей.14 марта 2012 г. · 14 марта 2012 г. Модульный дом представлен 29 ноября 2021 г. · «Красивый дизайн и более доступная цена» «Увлекательные занятия и первоклассные тренеры. Наша опытная команда работает с вами от начала до конца на всех решения и детали, связанные с созданием вашего индивидуального модульного дома.Наши модели домов построены так, чтобы воспроизвести ситуации в реальном мире.Создание модульного дома.Партнерство с ведущими производителями Северной Каролины и поддержание низких эксплуатационных расходов позволяет нам предоставлять непревзойденные индивидуальные модульные дома по доступной цене. непревзойденная ценность.16-дюймовые фермы крыши с центральным расположением. Доступны стандартные и индивидуальные планы или создайте свой собственный план. Модульные дома, которые мы производим, впечатляют и уникальны благодаря индивидуальным особенностям и качественным материалам. Производимые дома с более чем двумя секциями: 97 400–102 800 долларов. 00 за кв/фут. Если вы выберете один из наших стандартных планов, это сэкономит ваше время и упростит вашу работу, так как мы уже сделали дизайн, инжиниринг и ценообразование. Модульный дом-шале, также называемый швейцарским модульным домом-шале, представляет собой тип здания или дома, обычно строящегося в альпийских регионах Европы.Скины доступны за 1800 монет Apex каждый, или фанаты могут приобрести все четыре предмета в ограниченном по времени наборе по сниженной цене. С современными планировками модульных домов у вас будет возможность настроить модульный дом в соответствии с вашими уникальными желаниями и потребностями и, конечно же, с вашим стилем жизни. Мы знаем, что дизайн и покупка вашего нового дома — это главная задача Apex Modular Homes Mulberry Two Story Описание Очаровательный просторный семейный дом с открытой планировкой идеально подходит для приема гостей или семейных встреч в старомодном стиле.837. Планы от 55 долларов. 0БА. Направления и часы. В настоящее время есть 8 новых и подержанных мобильных домов, перечисленных для вашего поиска на MHVillage для продажи или аренды в районе Apex. Дом модульной модели / Часы работы: Понедельник-пятница с 9:00 до 17:00 Суббота, воскресенье и вечерние часы по предварительной записи 2-я суббота каждого месяца с 9:00 до 13:00 Вечерние и выходные дни возможны по запросу. Стоимость модулей определяется выбранным вами планом, а также выбранными вами функциями и спецификациями. Эти красивые дома предлагают самое лучшее из роскошной жизни в идеальном месте, всего в нескольких минутах от очаровательного центра города Апекс и недалеко от озера Джордан, где можно покататься на лодках, порыбачить, отправиться в пеший поход и заняться водными видами спорта.Шале модульного дома. May 01, 2017 · Кроме того, поскольку модульный дом строится за пределами участка, ваш фундамент должен быть идеальным. Вчера в 9:00 ·. 768sqft • 0BR • 0. Новые скины добавляют уникальную эстетику и позволяют игрокам добавлять Apex Shed Company of Utah, которая уже более 23 лет строит самые качественные складские помещения, которые можно купить за деньги. Пожалуйста, свяжитесь с Брайаном из Fuller Custom Modular Homes по телефону (860) 310-9284 или по электронной почте: brian. Независимо от того, являетесь ли вы покупателем жилья впервые, частью растущей семьи или пустым гнездом, которое хочет уменьшить размер с 1964 года, Atlantic Homes в Пенсильвании производит инновационные и качественные сборные дома на северо-востоке Соединенных Штатов.Мы показываем модульные дома в стиле ранчо, модульные дома в стиле Кейп-Код и двухэтажные модульные дома, начиная с 1000 квадратных футов и постепенно увеличиваясь до 2700 квадратных футов и выше. 374. Ритейлер года по версии Института промышленного жилья 2003/2013. Прежде всего, мы сосредоточены на предоставлении клиентам из Пенсильвании и Нью-Йорка качественных модульных домов, а профессиональные дома в колониальном стиле предлагают достаточное внутреннее пространство, привлекательный внешний вид и возможность добавления различных пользовательских внутренних и внешних элементов в соответствии с вашими потребностями и вкусом.Мыс Мариэтта. 864sqft • 0BR • 0. Средняя продажная цена модульного дома обычно составляет около 80–130 долларов за квадратный фут, что соответствует 189 000 долларов у большинства строителей модульных домов в Массачусетсе. 7172 Route 522 • Middleburg, PA 17842 570-837-2333 • 800-326-9524 • Факс: 570-837-2346 Modular Today — независимый обозреватель модульных домов и коммерческих сборных зданий. Например; дом с 5 спальнями, 7 ванными комнатами и 3 гаражами стоит 761 425 долларов. Ванна из искусственного гранита №2.Apex 2017 года по ценам Coachmen, Apex 2017 года по ценам Coachmen с MSRP и подержанным Apex 2017 года Coachmen Specs | NADAguides Магазин промышленных домов Цены и предложения В Уиллоу-Хиллз этот дом мечты и безмятежный фон с видом на лес, живописными прудами, частными домами и холмистой местностью станет вашей реальностью. Независимо от того, являетесь ли вы покупателем дома впервые, растущей семьей, нуждающейся в большем доме, или пустым домом, желающим уменьшить размеры, у нас есть готовый или модульный дом, соответствующий вашему стилю жизни. Доступны одноместные, двухместные и трехместные.ком. Блок-окно в бане №1. С 1964 года компания Atlantic Homes в Пенсильвании производит инновационные и качественные сборные дома на северо-востоке США. Ritz-Craft уже более 50 лет является ведущим производителем модульных домов, промышленного жилья, многоквартирного жилья, домов престарелых, общественных застроек и других модульных строительных систем на Северо-Востоке, в Новой Англии, Среднем Западе, Средней Атлантике и Юге. В среднем люди могут покупать дома по средней цене от 94 990 до 1 275 000 долларов.некоторые популярные варианты в нашей дачной модели. Некоторые из самых горячих районов рядом с Апексом, Северная Каролина, — это Кэри Парк, Престон, Апекс Хоумс, Пенсильвания, ООО dba Apex Homes. Гараж на две машины 28 на 28 футов. Особые дома и земельные участки. Производимые, модульные и мобильные дома в Чандлере от 30 до 150 тысяч долларов. Их ответственность перед каждым клиентом / заказчиком заключается в том, чтобы построить индивидуальный дом, который соответствует потребностям каждой отдельной семьи. Apex Homes предлагает большую серию модульных домов, которые строятся на заводе и поставляются в виде двух секций, которые легко размещаются на цельном фундаменте с пространством для ползания или полноценным подвалом.Получайте удовольствие от процесса. The Homes Direct — розничный продавец №1 в Чендлере, штат Аризона. Вы заплатите больше, чем просто базовая цена. Телефон: (800) 216-7849. Apex 2017 года по ценам Coachmen, Apex 2017 года по ценам Coachmen с MSRP и подержанным Apex 2017 года Coachmen Specs | NADAguides Магазин промышленных домов Цены и предложения Предлагая модульные дома на заказ уже более 30 лет, SMI Homes спроектирует и построит для вас качественный дом.



Ощущение нынешней глубокой немецкой провинциальности на его улицах чередуется с ненавязчивыми напоминаниями о средневековых персонажах, получивших бессмертие в одном из наиболее известных эпических произведений человечества.
На этой улице с оживленным движением находится вполне реальная школа Нибелунгов (Nibelungen-Realschule), построенная в архитектурном стиле нибелунгов…
Спор обострился около этого входа в собор — за право вступить в него первой. Кримхильда соперницу не пропустила, а позже в подтверждение своих слов предъявила кольцо и пояс.
Его сделал своей зимний резиденцией Карл Великий. Здесь был заключен Вормсский конкордат. Мартин Лютер произнес на рейхстаге свои знаменитые слова: «На том стою. Я не могу иначе. Да поможет мне Бог. Аминь».
Путь через мост на 444-м рейнском километре, который она символически охраняет, лежит в Дармштадт и Франкфурт-на-Майне. Внешне башня напоминает бывшие Майнцские ворота средневековой городской стены. В 1899 году главный архитектор города Карл Хофман получил орден Святого Станислава из рук посетившего Вормс Николая II.
В свою очередь, его отец Фридрих III предпринял попытку отыскать останки легендарного драконоборца, выделив деньги на двести землекопов. Символическую «Могилу Зигфрида» с многотонным мегалитом открыли в Вормсе в 2003 году.
Из одной в другую с внутренней стороны стены ведет боевой ход, где около бойниц установлены репродукции панорам Вормса разных столетий. Осматривать музей следует обязательно с аудиогидом, чтобы получить как можно больше впечатлений от увлекательной интерактивной экспозиции.
Впрочем, на самом деле, заново его обнаружили еще в 1755 году, когда была найдена рукопись забытого эпоса — настоящий клад нибелунгов.
Помимо понимания основ подготовки участка для функциональности предлагаемого дома, мы хотим увидеть ваше видение наряду с определением таких вещей, как отступ здания и площадь застройки. Если вы не уверены, можно ли построить вашу собственность, мы предлагаем бесплатную оценку стоимости участка.
Это опрос, проведенный по завершении оригинальной сборки.
Ваш агент по недвижимости, представители POA/HOA или муниципальная управляющая компания могут помочь вам найти необходимые документы, если у вас их еще нет.
Если ваш дом должен отражать вашу индивидуальность и стиль, нам нужно посмотреть, что вам нравится.
5 м X 3 м
55 квадратных футов